Votre courriel a été envoyé.
3097 Piedmont Rd NE 3 665–25 542 pi² d'espace disponible • Atlanta, GA 30305



Certaines informations ont été traduites automatiquement.
Faits saillants
- Circulation automobile intense jour et nuit
- Circulation piétonnière intense en provenance des restaurants avoisinants
- Deux coupes sur les bordures
- Beaucoup de places de stationnement
Disponibilité des espaces (3)
Afficher les taux de location en
- Espace
- Taille
- Terme
- Taux de location
- Type de loyer
| Espace | Taille | Terme | Taux de location | Type de loyer | ||
| 1er étage | 8 600 pi² | Négociable | 82,07 $ CAD/pi²/an 6,84 $ CAD/pi²/mois 705 805 $ CAD/an 58 817 $ CAD/mois | Loyer hypernet | ||
| 1er étage | 3 665 pi² | 10 ans | 82,07 $ CAD/pi²/an 6,84 $ CAD/pi²/mois 300 788 $ CAD/an 25 066 $ CAD/mois | Loyer hypernet | ||
| 1er étage - E | 13 277 pi² | Négociable | 27,36 $ CAD/pi²/an 2,28 $ CAD/pi²/mois 363 216 $ CAD/an 30 268 $ CAD/mois | Loyer hypernet |
1er étage
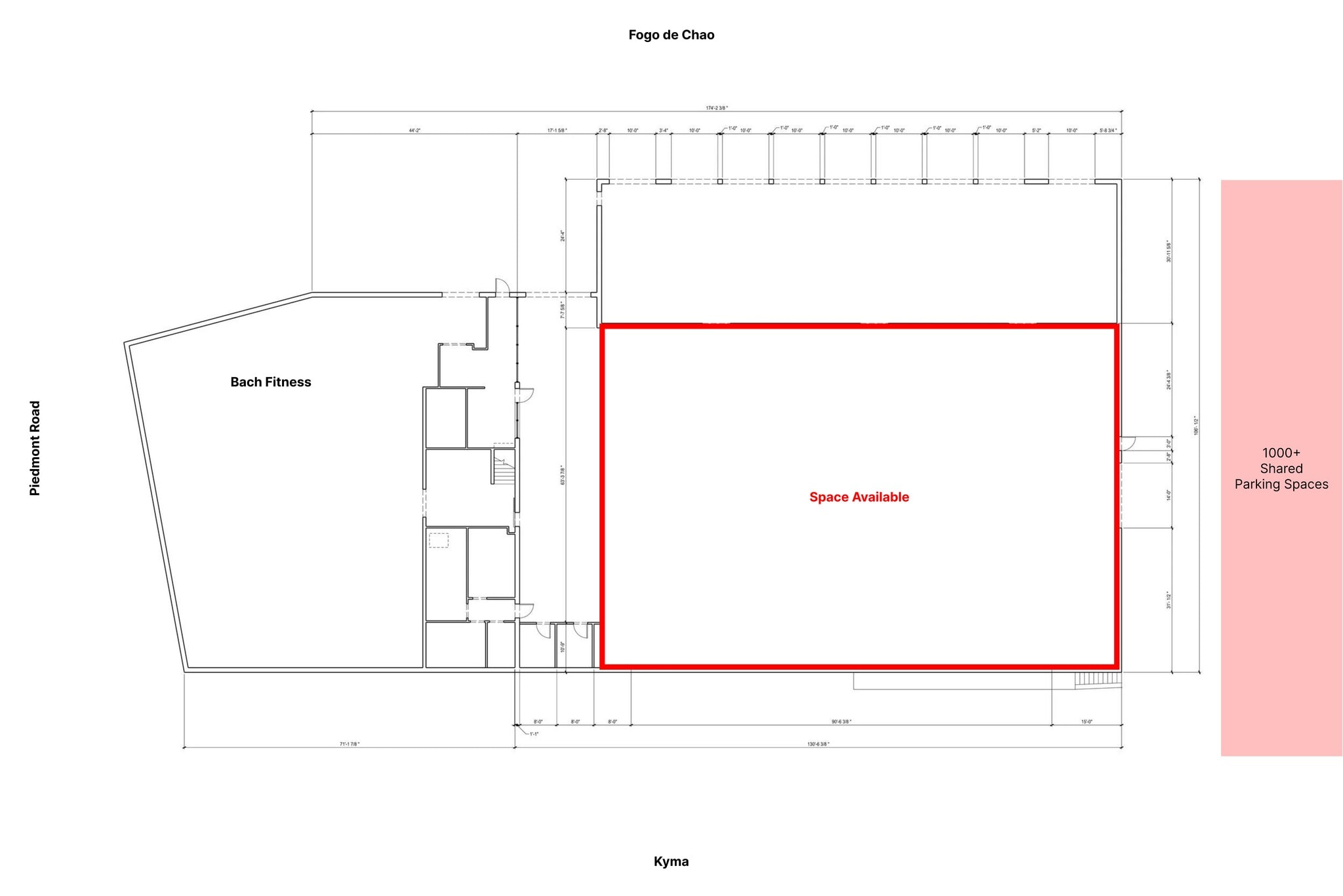
Flagship-quality corner space with rare Piedmont Road frontage directly adjacent to Fogo de Chão, one of Atlanta’s highest-traffic restaurants. The ±8,200 SF interior features tall ceiling heights, expansive open-plan areas, and premium visibility along one of Buckhead’s most traveled corridors. Modern façade, abundant natural light, and flexible floor plate make it ideal for a showroom, lifestyle brand, wellness concept, or experiential retail. Strong co-tenancy and constant vehicle flow ensure exceptional brand exposure day and night. Private rear access and dedicated parking enhance convenience for both customers and staff. Highlights • Prominent Piedmont Rd frontage with signage visibility to 35,000+ cars per day • Adjacent to Fogo de Chão and surrounded by premier Buckhead destinations • ±8,200 SF clear-span layout adaptable for retail, studio, or showroom use • High ceilings and modern finishes supporting premium brand presentation • Private entry and parking with easy access to Lenox, Buckhead Village, and 400
- Le taux de location ne comprend pas les services publics, les services de bâtiment ou les dépenses immobilières.
- Espace nécessitant des rénovations
- Peut être associé à un ou plusieurs espaces supplémentaires pour obtenir jusqu’à 12 265 pi² d’espace adjacent.
- Hauts plafonds
1er étage
- Le taux de location ne comprend pas les services publics, les services de bâtiment ou les dépenses immobilières.
- Peut être associé à un ou plusieurs espaces supplémentaires pour obtenir jusqu’à 12 265 pi² d’espace adjacent.
1er étage - E
±13,277 SF total commercial space consisting of approximately 8,239 SF main-level open space with ±5,038 SF mezzanine suitable for office, studio, support, or storage use. $22,128 / month even if you don't use or remove the mezzanine. Main level offers clear-span flexibility with strong ceiling height, ideal for showroom, fitness/wellness, creative studio, or flex commercial users. Mezzanine provides functional secondary space for offices, private rooms, editing suites, storage, or back-of-house support. Property benefits from on-site parking, excellent access to Piedmont Road, and a Buckhead location well-suited for customer-facing or brand-forward uses. Space is not suitable for industrial, logistics, or distribution uses. Ideal for: • Luxury showroom or design studio • Boutique fitness or wellness concept • Creative / media production studio • Office + flex headquarters • Experience-driven or appointment-based commercial use Offered as a single full-premises lease.
- Le taux de location ne comprend pas les services publics, les services de bâtiment ou les dépenses immobilières.
- High ceilings
Types de loyers
Le type et le montant du loyer que le locataire (preneur) est tenu de payer au propriétaire (bailleur) sur la durée du bail sont négociés avant la signature du bail par les deux parties. Le type de loyer varie selon les services fournis. Par exemple, le prix d’un loyer hypernet est habituellement inférieur à celui d’un bail à service complet puisque le locataire est tenu d’assumer des dépenses additionnelles par rapport au loyer de base. Contactez le courtier inscripteur pour tout connaître sur les frais connexes et additionnels associés à chaque type de loyer.
1. Service complet: Un taux de location qui comprend des services standards liés à l’immeuble fournis par le propriétaire dans le cadre d’une location annuelle de base.
2. Loyer supernet: Le locataire paie seulement deux des frais de l’immeuble. Le propriétaire et le locataire déterminent ces frais spécifiques avant la signature du bail.
3. Loyer hypernet: Un bail en vertu duquel le locataire est responsable de tous les frais liés à sa part proportionnelle d’occupation de l’immeuble.
4. Brut modifié: Le loyer brut modifié désigne un type général de taux de location dans lequel le locataire est habituellement responsable de sa part proportionnelle d’un ou de plusieurs frais. C’est le propriétaire qui paie les frais restants. Considérez les structures tarifaires courantes suivantes applicables aux loyers bruts modifiés: 4. Plus les services: Un type de bail brut modifié suivant lequel le locataire est responsable de sa part proportionnelle des coûts des services publics, en plus du loyer. 4. Plus le nettoyage: Un type de bail brut modifié suivant lequel le locataire est responsable de sa part proportionnelle des coûts de nettoyage, en plus du loyer. 4. Plus l'électricité: Un type de bail brut modifié suivant lequel le locataire est responsable de sa part proportionnelle des coûts d’électricité, en plus du loyer. 4. Plus l’électricité et le nettoyage: Un type de bail brut modifié dans lequel le locataire est responsable de sa part proportionnelle des coûts d’électricité et de nettoyage, en plus du loyer. 4. Plus les services publics et le nettoyage: Un type de bail brut modifié dans lequel le locataire est responsable de sa part proportionnelle des coûts des services publics et de nettoyage, en plus du loyer. 4. Bail industriel brut: Un type de bail brut modifié dans lequel le locataire paie un ou plusieurs des frais, en plus du loyer. Le propriétaire et le locataire déterminent ces frais spécifiques avant la signature du bail.
5. L’électricité est à la charge du locataire: Le propriétaire paie pour tous les services et le locataire est responsable de sa propre utilisation de l’éclairage et des prises électriques dans l’espace qu’il occupe.
6. Négociable ou sur demande: Cette option est utilisée lorsque le contact de location ne précise pas le type de loyer ou de service.
7. À déterminer: À déterminer ; utilisé pour les immeubles dont le type de services ou de loyer n’est pas connu, souvent quand l’immeuble n’est pas encore construit.
Sélectionner des locataires à 3097 Piedmont Rd NE, Atlanta, GA 30305
- Locataire
- Description
- Emplacements US
- Portée
- BACH Fitness
- Entraînement physique
- 2
- Local
- Orangetheory Fitness
- Entraînement physique
- 1 550
- International
| Locataire | Description | Emplacements US | Portée |
| BACH Fitness | Entraînement physique | 2 | Local |
| Orangetheory Fitness | Entraînement physique | 1 550 | International |
Faits sur la propriété
| Superficie totale disponible | 25 542 pi² | Superficie commerciale brute | 26 278 pi² |
| Max. contigu | 12 265 pi² | Année de construction | 1965 |
| Type de propriété | Commerce de détail | Ratio de stationnement | 3,81/1 000 pi² |
| Sous-type de propriété | Immeuble de commerce |
| Superficie totale disponible | 25 542 pi² |
| Max. contigu | 12 265 pi² |
| Type de propriété | Commerce de détail |
| Sous-type de propriété | Immeuble de commerce |
| Superficie commerciale brute | 26 278 pi² |
| Année de construction | 1965 |
| Ratio de stationnement | 3,81/1 000 pi² |
Caractéristiques et commodités
- Ligne d'autobus
- Affichage
- Accessible aux fauteuils roulants
- Climatisation
- Détecteur de fumée
Principaux détaillants à proximité
Présenté par
Keen Apps
3097 Piedmont Rd NE
Hmm, il semble y avoir eu une erreur lors de l’envoi de votre message. Veuillez réessayer.
Merci! Votre message a été envoyé.








