Se Connecter/S’inscrire
Votre courriel a été envoyé.
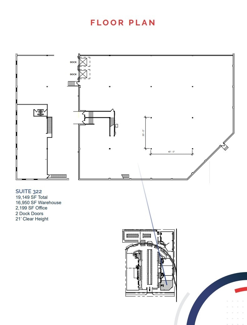
Bldg II 310-322 W 86th St 19 149 pi² d'espace disponible • Industriel • Bloomington, MN 55420



Certaines informations ont été traduites automatiquement.
Faits saillants
- Convenient access it I-35W and I-494 makes this an ideal distribution space.
- Flexible space plans to accommodate a variety of uses.
Caractéristiques
Hauteur libre
21’
Baies d’entrée
2
Portes de quai de chargement extérieures
4
Niveleurs
4
Places de stationnement standard
200
Tous les espaces disponibles(1)
Afficher les taux de location en
- Espace
- Taille
- Terme
- Taux de location
- Utilisation de l’espace
- État
- Disponible
Negotiable net rental rates.
- Comprend 2 199 pi² d’espace de bureau dédié
- Visibility from Penn Ave (9,900 VPD).
- 2 quais de chargement
| Espace | Taille | Terme | Taux de location | Utilisation de l’espace | État | Disponible |
| 1er étage - 322 | 19 149 pi² | Négociable | Sur demande Sur demande Sur demande Sur demande | Industriel | construction complète | 30 jours |
1er étage - 322
| Taille |
| 19 149 pi² |
| Terme |
| Négociable |
| Taux de location |
| Sur demande Sur demande Sur demande Sur demande |
| Utilisation de l’espace |
| Industriel |
| État |
| construction complète |
| Disponible |
| 30 jours |
1 de 1
Vidéos
Visite extérieure 3D Matterport
Visite 3D Matterport
Photos
Vue depuis la rue
Rue
Carte
1er étage - 322
| Taille | 19 149 pi² |
| Terme | Négociable |
| Taux de location | Sur demande |
| Utilisation de l’espace | Industriel |
| État | construction complète |
| Disponible | 30 jours |
Negotiable net rental rates.
- Comprend 2 199 pi² d’espace de bureau dédié
- 2 quais de chargement
- Visibility from Penn Ave (9,900 VPD).
Aperçu de la propriété
Installation de bureaux-entrepôt en remplissage sur la rue W 86th à Bloomington.
Faits sur l’installation distribution
Taille du bâtiment
67 116 pi²
Taille du lot
10,51 AC
Année de construction
1979
Construction
Maçonnerie
Zonage
Lt Ind
Sélectionner des locataires
- Étage
- Nom du locataire
- Secteur
- 1ᵉʳ
- Griffin And Company Logistics
- Transport et entreposage
- 1ᵉʳ
- Hot Spring Spas
- Détaillant
- 1ᵉʳ
- Lakes Recycling
- Services de gestion des déchets et d’assainissement
- 1ᵉʳ
- Moving Equipment Sales, Inc.
- Transport et entreposage
1 1
1 de 5
Vidéos
Visite extérieure 3D Matterport
Visite 3D Matterport
Photos
Vue depuis la rue
Rue
Carte
1 de 1
Présenté par
Bldg II | 310-322 W 86th St
Vous êtes déjà membre? Connectez-vous
Hmm, il semble y avoir eu une erreur lors de l’envoi de votre message. Veuillez réessayer.
Merci! Votre message a été envoyé.
Votre message a été envoyé !
Activez votre compte LoopNet dès maintenant pour suivre les propriétés, recevoir des alertes en temps réel, gagner du temps sur vos demandes futures et bien plus encore.


