Votre courriel a été envoyé.
BELOW MARKET RENT - SUBLEASE! 3110 45th St 7 500 pi² d'espace disponible • Flex • West Palm Beach, FL 33407



Certaines informations ont été traduites automatiquement.
Faits saillants de la sous-location
- Centrally Located in PB County
- Sublease thru July 2027
- Glass Block Windows
- Under-market Gross Rent
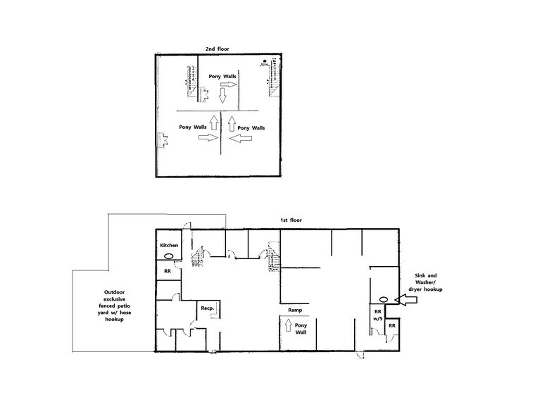
- Exclusive Fenced Outdoor Patio/Yard w/ Hose
- Quiet Setting off Main Road
Caractéristiques
Tous les espaces disponibles(1)
Afficher les taux de location en
- Espace
- Taille
- Terme
- Taux de location
- Utilisation de l’espace
- État
- Disponible
Centrally located just west of I-95 on 45th Street. The building is positioned in a quiet setting behind National Auto Care at 3100 45th Street. Ample reserved surface parking at no additional charge. This is a sublease available through July of 2027, however, the Owner would most likley be willing to extend past that date. The property is zoned within the City of West Palm Beach as Industrial. Please find attached document showing the permitted uses "P" and highlighted. Subject to Owner's approval. Here are a few examples out of many! * Apparel & Accessory Retail Sales Rental Stores * Business and Commercial Machine Sales * Catering, Deli, Bakeries and Commissary uses * Funeral Home * Interior Decorators * Marine, Retail Sales * Martial Arts Studios * Motor Vehicles Parts and Accessories * Music and Dance Studios * Office - Government Administrative * Pet Grooming * Veterinary Clinics and Hospitals * Photocopy Services * Print and Type Setting Services * Public Safety operated by Public Agencies * Radio and Television Broadcasting Studios * Recreation, Indoor * Household Appliance Repairs * Research and Development * Upholstery, Cloth & Canvas Product Fabrication including Awnings * Veterinary Clinics and Hospitals, Animal Shelters * Warehousing and Storage
- Espace de sous-location disponible auprès du locataire actuel
- Climatisation centrale
- Plafond suspendu
- Espace en coin
- Le taux inscrit peut ne pas comprendre certains services publics, les services de bâtiment et les dépenses immobilières.
- Salle de bains privée
- CVCA disponible après les heures de travail
| Espace | Taille | Terme | Taux de location | Utilisation de l’espace | État | Disponible |
| 1er étage - D | 7 500 pi² | Juil. 2027 | 22,93 $ CAD/pi²/an 1,91 $ CAD/pi²/mois 172 012 $ CAD/an 14 334 $ CAD/mois | Flex | construction complète | Maintenant |
1er étage - D
| Taille |
| 7 500 pi² |
| Terme |
| Juil. 2027 |
| Taux de location |
| 22,93 $ CAD/pi²/an 1,91 $ CAD/pi²/mois 172 012 $ CAD/an 14 334 $ CAD/mois |
| Utilisation de l’espace |
| Flex |
| État |
| construction complète |
| Disponible |
| Maintenant |
1er étage - D
| Taille | 7 500 pi² |
| Terme | Juil. 2027 |
| Taux de location | 22,93 $ CAD/pi²/an |
| Utilisation de l’espace | Flex |
| État | construction complète |
| Disponible | Maintenant |
Centrally located just west of I-95 on 45th Street. The building is positioned in a quiet setting behind National Auto Care at 3100 45th Street. Ample reserved surface parking at no additional charge. This is a sublease available through July of 2027, however, the Owner would most likley be willing to extend past that date. The property is zoned within the City of West Palm Beach as Industrial. Please find attached document showing the permitted uses "P" and highlighted. Subject to Owner's approval. Here are a few examples out of many! * Apparel & Accessory Retail Sales Rental Stores * Business and Commercial Machine Sales * Catering, Deli, Bakeries and Commissary uses * Funeral Home * Interior Decorators * Marine, Retail Sales * Martial Arts Studios * Motor Vehicles Parts and Accessories * Music and Dance Studios * Office - Government Administrative * Pet Grooming * Veterinary Clinics and Hospitals * Photocopy Services * Print and Type Setting Services * Public Safety operated by Public Agencies * Radio and Television Broadcasting Studios * Recreation, Indoor * Household Appliance Repairs * Research and Development * Upholstery, Cloth & Canvas Product Fabrication including Awnings * Veterinary Clinics and Hospitals, Animal Shelters * Warehousing and Storage
- Espace de sous-location disponible auprès du locataire actuel
- Le taux inscrit peut ne pas comprendre certains services publics, les services de bâtiment et les dépenses immobilières.
- Climatisation centrale
- Salle de bains privée
- Plafond suspendu
- CVCA disponible après les heures de travail
- Espace en coin
Aperçu de la propriété
Centrally located just west of I-95 on 45th Street. The property is zoned within the City of West Palm Beach as Industrial. Please find attached document showing the permitted uses "P" and highlighted. Subject to Owner's approval. Here are a few examples out of many! * Apparel & Accessory Retail Sales Rental Stores * Business and Commercial Machine Sales * Catering, Deli, Bakeries and Commissary uses * Funeral Home * Interior Decorators * Marine, Retail Sales * Martial Arts Studios * Motor Vehicles Parts and Accessories * Music and Dance Studios * Office - Government Administrative * Pet Grooming * Veterinary Clinics and Hospitals * Photocopy Services * Print and Type Setting Services * Public Safety operated by Public Agencies * Radio and Television Broadcasting Studios * Recreation, Indoor * Household Appliance Repairs * Research and Development * Upholstery, Cloth & Canvas Product Fabrication including Awnings * Veterinary Clinics and Hospitals, Animal Shelters * Warehousing and Storage
Faits sur la propriété
Présenté par
BELOW MARKET RENT - SUBLEASE! | 3110 45th St
Hmm, il semble y avoir eu une erreur lors de l’envoi de votre message. Veuillez réessayer.
Merci! Votre message a été envoyé.



