Votre courriel a été envoyé.
3114 E Garvey Ave S Lot • Terrain commercial • 0,37 Acres • 2 323 497 $ CAD • West Covina, CA 91791



Certaines informations ont été traduites automatiquement.
FAITS SAILLANTS DE L'INVESTISSEMENT
- High -Visibility location along freeway I-10
- Walking/Driving access to popular amenities -including McDonald's / In-N-Out Burger/ Eastland Center / IKEA/ LA Fitness
- High-Visibility location along busy commercial corridor
- Potential Large electronic billboard for Freeway I-10
RÉSUMÉ DE L'ANNONCE
Potential large electronic billboard for I-10 Visible .
FAITS SUR LA PROPRIÉTÉ
1 LOT DISPONIBLE
Lot
| Prix | 2 323 497 $ CAD | Taille du lot | 0,37 AC |
| Prix par AC | 6 331 054,51 $ CAD |
| Prix | 2 323 497 $ CAD |
| Prix par AC | 6 331 054,51 $ CAD |
| Taille du lot | 0,37 AC |
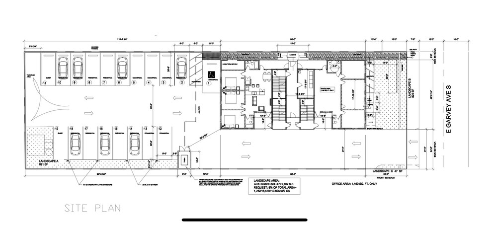
Lot Size : 16,272 SQFT Zoning: City upgrade to NMU (Commercial or Mix-USE ) All Civil Engineering report is ready Summit to city planning department : 5 units Residential and 1 office (Mix-use project )
DESCRIPTION
Prime land opportunity in the highly desirable city of West Covina. Located at 3114 E. Garvey Ave S, this parcel offers excellent visibility and convenient access near major freeways, retail centers, and established commercial corridors. The lot provides a versatile development opportunity with strong traffic exposure and close proximity to shopping, dining, and local amenities. Ideal for investors, developers, or owners looking to build a custom project. Buyer to verify zoning, permitted uses, and all development requirements with the city. Don’t miss this rare chance to secure land in a thriving and well-connected location.
Impôts fonciers
| Numéro de lot | 8480-002-049 | Évaluation des bâtiments | 0 $ CAD |
| Évaluation du terrain | 1 594 430 $ CAD | Évaluation totale | 1 594 430 $ CAD |
Impôts fonciers
Présenté par
Aitop Investment LLC
3114 E Garvey Ave S
Hmm, il semble y avoir eu une erreur lors de l’envoi de votre message. Veuillez réessayer.
Merci! Votre message a été envoyé.
