Se Connecter/S’inscrire
Votre courriel a été envoyé.
312 4th Street St
Kremmling, CO 80459
312 N 4th Street · Local d'activités Propriété À vendre


Certaines informations ont été traduites automatiquement.
Résumé de l'annonce
Church? Multifamily? Community Center? Lounge? This property has endless uses, zoned commercial and ready for your vision. With just 1/2 block off Hwy 40 in the center of Kremmling, the property has ample interior storage, room for garage and/or 35+ parking spaces.
Faits sur la propriété
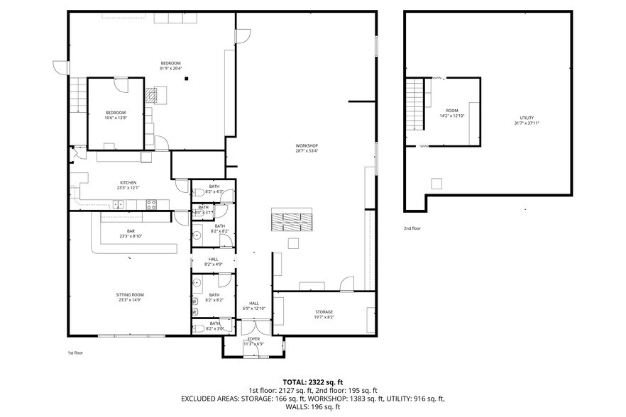
| Type de vente | Investissement ou propriétaire utilisateur | Aire du bâtiment louable | 3 888 pi² |
| Type de propriété | Local d'activités | Nombre d’étages | 1 |
| Sous-type de propriété | Manufacture légère | Année de construction | 1965 |
| Classe d’immeuble | C | Location | Unique |
| Taille du lot | 0,20 AC | ||
| Zonage | Commercial | ||
| Type de vente | Investissement ou propriétaire utilisateur |
| Type de propriété | Local d'activités |
| Sous-type de propriété | Manufacture légère |
| Classe d’immeuble | C |
| Taille du lot | 0,20 AC |
| Aire du bâtiment louable | 3 888 pi² |
| Nombre d’étages | 1 |
| Année de construction | 1965 |
| Location | Unique |
| Zonage | Commercial |
1 de 41
Vidéos
Visite extérieure 3D Matterport
Visite 3D Matterport
Photos
Vue depuis la rue
Rue
Carte
