Se Connecter/S’inscrire
Votre courriel a été envoyé.
Certaines informations ont été traduites automatiquement.
Faits saillants de l'investissement
- Tremendous Build Opportunity
- Entitled for 6,509 Sq Foot Building
- Fully Entitled for 3 Condo Units with Roof Deck and Garage
Résumé de l'annonce
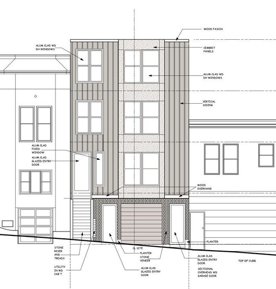
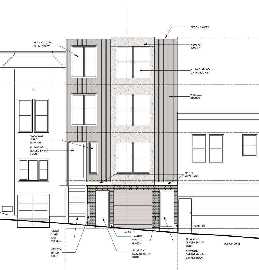
312 Utah Street is a fully entitled development opportunity on the Potrero Hill and Mission border. Approved plans call for a new four-story, three-unit building totaling 6,509 square feet of gross area, including 4,958 square feet of net livable space. The design features a 2,032 square foot full-floor residence with patio, a 910 square foot residence with balcony, and a 2,016 square foot two-level penthouse with private deck and roof deck. The project includes a two-car garage, bicycle storage, and a landscaped shared yard. Zoning is RH-3 with an approved building height of 40 feet.
Faits sur la propriété
| Prix | 1 635 528 $ CAD | Sous-type de propriété | Résidentiel |
| Type de vente | Investissement | Utilisation proposée | |
| Nombre de lots | 1 | Taille totale du lot | 0,05 AC |
| Type de propriété | Terrain |
| Prix | 1 635 528 $ CAD |
| Type de vente | Investissement |
| Nombre de lots | 1 |
| Type de propriété | Terrain |
| Sous-type de propriété | Résidentiel |
| Utilisation proposée | |
| Taille totale du lot | 0,05 AC |
1 Lot disponible
Lot
| Prix | 1 635 528 $ CAD | Taille du lot | 0,05 AC |
| Prix par AC | 30 908 004,09 $ CAD |
| Prix | 1 635 528 $ CAD |
| Prix par AC | 30 908 004,09 $ CAD |
| Taille du lot | 0,05 AC |
1 1
Walk Score®
Un paradis pour un marcheur (96)
Transit Score®
Excellent transport en commun (79)
Bike Score®
Très cyclable (85)
Impôts fonciers
| Numéro de lot | 3961-001A | Évaluation des bâtiments | 0 $ CAD |
| Évaluation du terrain | 1 681 843 $ CAD | Évaluation totale | 1 681 843 $ CAD |
Impôts fonciers
Numéro de lot
3961-001A
Évaluation du terrain
1 681 843 $ CAD
Évaluation des bâtiments
0 $ CAD
Évaluation totale
1 681 843 $ CAD
1 de 3
Vidéos
Visite extérieure 3D Matterport
Visite 3D Matterport
Photos
Vue depuis la rue
Rue
Carte
1 de 1
Présenté par
312 Utah St
Vous êtes déjà membre? Connectez-vous
Hmm, il semble y avoir eu une erreur lors de l’envoi de votre message. Veuillez réessayer.
Merci! Votre message a été envoyé.


