Se Connecter/S’inscrire
Votre courriel a été envoyé.
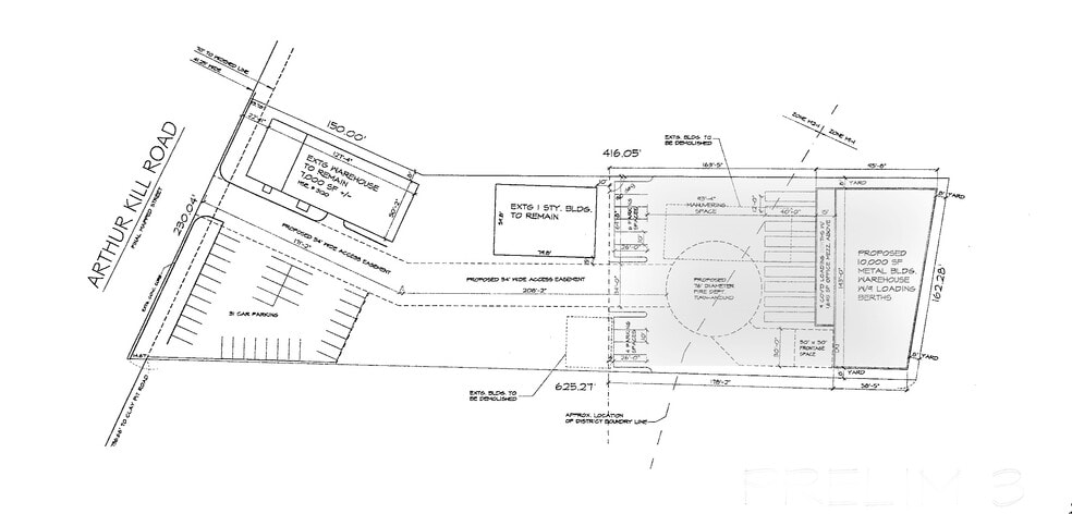
3120 Arthur Kill Rd
Staten Island, NY 10309
Terrain À louer


Certaines informations ont été traduites automatiquement.
Aperçu de la propriété
DES TERRAINS DE STATIONNEMENT DE 40 416 PC QUI SE PRÊTENT NATURELLEMENT BIEN À DE MULTIPLES TYPES D'ENTREPRISES AVEC UN ACCÈS PRATIQUE AUX ARRONDISSEMENTS AVOISINANTS. DISPONIBLE IMMÉDIATEMENT VOUS ÊTES INTÉRESSÉ, VEUILLEZ APPELER MELSA SKRAPALLIU RJM REALTY EMPIRE INC. 718-568-2256 347-675-3056
Faits sur la propriété
| Superficie totale disponible | 0,92 AC | Sous-type de propriété | Terrain commercial |
| Type de propriété | Terrain |
| Superficie totale disponible | 0,92 AC |
| Type de propriété | Terrain |
| Sous-type de propriété | Terrain commercial |
1 de 14
Vidéos
Visite extérieure 3D Matterport
Visite 3D Matterport
Photos
Vue depuis la rue
Rue
Carte
