Votre courriel a été envoyé.
Certaines informations ont été traduites automatiquement.
Faits saillants
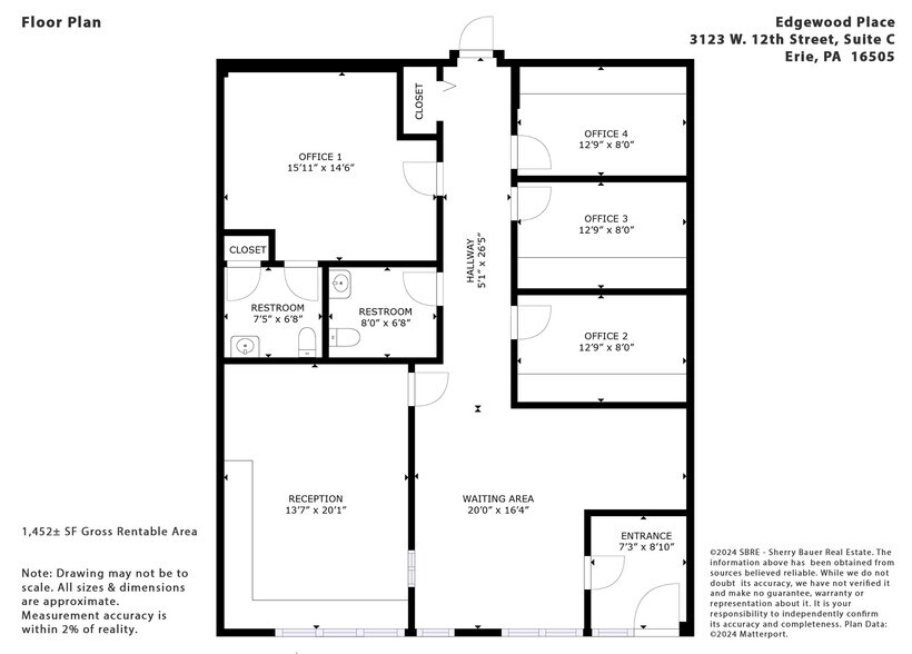
- Suite de bureaux 1 452 ± SF à louer à Edgewood Place - Ancien cabinet médical
- 3 salles d'examen et grand bureau avec toilettes attenantes
- Incitatifs aux locataires, y compris l'allocation de peinture et de revêtement de sol - Visite 3D et plan d'étage disponibles
- Aire d'attente et bureau de réception avec fenêtre
- Salle de bain et placard de rangement ADA
- Joignez-vous à Key Note Guitar, au Pearson Professional Center et à Trilogy Wellness
Tous les espaces disponibles(1)
Afficher les taux de location en
- Espace
- Taille
- Terme
- Taux de location
- Utilisation de l’espace
- État
- Disponible
1,452± SF office for lease at Edgewood Place. Former medical office. Layout includes waiting area, reception with window to waiting area, 3 exam rooms, large office with en-suite restroom, ADA restroom & storage closet. 3D tour & floor plan available. Landlord offering tenant incentives for paint & flooring allowance. Excellent signage & visibility with 18,000 average daily traffic (PennDOT – 2023 count year). Abundant parking. Zoned MU-2, Corridor Mixed Use, in Millcreek Township offering many potential uses: retail, office & more. Offered at $14.00/SF/YR + CAM + utilities. CAM estimated at $3.80/SF based on 2024. Tenant pays approximately $2,154/month (base rent & CAM) plus utilities. Join Key Note Guitar, Pearson Professional Center & Trilogy Wellness at Edgewood Place!
- Le taux de location ne comprend pas les services publics, les services de bâtiment ou les dépenses immobilières.
- Disposition intensive du bureau
- Aire d'attente et réception avec fenêtres
- Grand bureau avec salle de bain attentive
- Propriétaire offrant une indemnité pour peinture et revêtement de sol
- Entièrement construit comme Espace médical standard
- 1 452 ± Suite de bureaux SF à louer
- 3 salles d'examen et toilettes ADA
- Visite 3D et plan d'étage disponibles
| Espace | Taille | Terme | Taux de location | Utilisation de l’espace | État | Disponible |
| 1er étage, ste C | 1 452 pi² | Négociable | 20,50 $ CAD/pi²/an 1,71 $ CAD/pi²/mois 29 769 $ CAD/an 2 481 $ CAD/mois | Bureau/Médical | construction complète | Maintenant |
1er étage, ste C
| Taille |
| 1 452 pi² |
| Terme |
| Négociable |
| Taux de location |
| 20,50 $ CAD/pi²/an 1,71 $ CAD/pi²/mois 29 769 $ CAD/an 2 481 $ CAD/mois |
| Utilisation de l’espace |
| Bureau/Médical |
| État |
| construction complète |
| Disponible |
| Maintenant |
1er étage, ste C
| Taille | 1 452 pi² |
| Terme | Négociable |
| Taux de location | 20,50 $ CAD/pi²/an |
| Utilisation de l’espace | Bureau/Médical |
| État | construction complète |
| Disponible | Maintenant |
1,452± SF office for lease at Edgewood Place. Former medical office. Layout includes waiting area, reception with window to waiting area, 3 exam rooms, large office with en-suite restroom, ADA restroom & storage closet. 3D tour & floor plan available. Landlord offering tenant incentives for paint & flooring allowance. Excellent signage & visibility with 18,000 average daily traffic (PennDOT – 2023 count year). Abundant parking. Zoned MU-2, Corridor Mixed Use, in Millcreek Township offering many potential uses: retail, office & more. Offered at $14.00/SF/YR + CAM + utilities. CAM estimated at $3.80/SF based on 2024. Tenant pays approximately $2,154/month (base rent & CAM) plus utilities. Join Key Note Guitar, Pearson Professional Center & Trilogy Wellness at Edgewood Place!
- Le taux de location ne comprend pas les services publics, les services de bâtiment ou les dépenses immobilières.
- Entièrement construit comme Espace médical standard
- Disposition intensive du bureau
- 1 452 ± Suite de bureaux SF à louer
- Aire d'attente et réception avec fenêtres
- 3 salles d'examen et toilettes ADA
- Grand bureau avec salle de bain attentive
- Visite 3D et plan d'étage disponibles
- Propriétaire offrant une indemnité pour peinture et revêtement de sol
Aperçu de la propriété
Bureau de 1 452 ± SF à louer à Edgewood Place. Ancien cabinet médical. L'aménagement comprend une salle d'attente, une réception avec fenêtre donnant sur la zone d'attente, 3 salles d'examen, un grand bureau avec toilettes attenantes, des toilettes ADA et un placard de rangement. Visite 3D et plan d'étage disponibles. Le locateur offre des incitatifs aux locataires pour l'allocation de peinture et de revêtement de sol. Excellente signalisation et visibilité avec 18 000 véhicules quotidiens moyens (PennDot — année de comptage 2022). Stationnement abondant. Zone MU-2, corridor à usage mixte, dans le canton de Millcreek offrant de nombreuses utilisations potentielles : commerce de détail, bureaux et plus encore. Offert au prix de 15,00 $/SF/AN + utilitaires CAM +. Le CAM est estimé à 3,80 $/pied pied pied pied sur la base de 2023. Le locataire paie environ 2 275 $/mois (loyer de base et frais supplémentaires) plus les services publics. Joignez-vous à Key Note Guitar, au Pearson Professional Center et à Trilogy Wellness à Edgewood Place !
- Ligne d'autobus
- Affichage
Faits sur la propriété
Sélectionner des locataires
- Nom du locataire
- Secteur
- Key Note Guitar
- Détaillant
- Pearson Professional Centers
- Services éducatifs
- Trilogy Wellness
- Soins de santé et assistance sociale
Présenté par
Edgewood Place | 3123 W 12th St
Hmm, il semble y avoir eu une erreur lors de l’envoi de votre message. Veuillez réessayer.
Merci! Votre message a été envoyé.






