Se Connecter/S’inscrire
Votre courriel a été envoyé.
3125 Yankee Rd 10 466 pi² Commerce de détail Immeuble Middletown, OH 45044 617 130 $ CAD (58,97 $ CAD/pi²)



Certaines informations ont été traduites automatiquement.
FAITS SAILLANTS DE L'INVESTISSEMENT
- High Traffic Area
- Can be made into 3 Suites
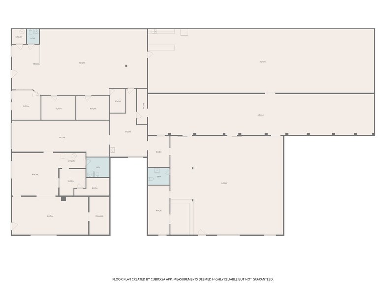
- Customizable floor plan
RÉSUMÉ DE L'ANNONCE
Prime Value-Add Flex Opportunity. Completely Vacant | Can be built into 3 Configurable Suites | Immediate Occupancy & Customization Potential High-Visibility Yankee Rd Building Corner lot on one of Middletowns top retail/commercial arteries. Under 5 miles from I-75 Exit 32, anchored by Walmart, Lowes, Aldi, and Planet Fitness for unbeatable co-tenancy draw.
FAITS SUR LA PROPRIÉTÉ
Type de vente
Investissement ou propriétaire utilisateur
Type de propriété
Commerce de détail
Sous-type de propriété
Taille du bâtiment
10 466 pi²
Classe d’immeuble
C
Année de construction
1948
Prix
617 130 $ CAD
Prix par pi²
58,97 $ CAD
Location
Unique
Hauteur du bâtiment
1 étage
Coefficient d’occupation des sols de l’immeuble
0,53
Taille du lot
0,45 AC
Stationnement
28 places (2,3 places par 1 000 pi² loué)
COMMODITÉS
- Climatisation
Impôts fonciers
| Numéro de lot | Q6542-102-000-012 | Évaluation des bâtiments | 65 690 $ CAD |
| Évaluation du terrain | 10 199 $ CAD | Évaluation totale | 75 889 $ CAD |
Impôts fonciers
Numéro de lot
Q6542-102-000-012
Évaluation du terrain
10 199 $ CAD
Évaluation des bâtiments
65 690 $ CAD
Évaluation totale
75 889 $ CAD
1 de 8
VIDÉOS
VISITE EXTÉRIEURE 3D MATTERPORT
VISITE 3D MATTERPORT
PHOTOS
VUE DEPUIS LA RUE
RUE
CARTE
Présenté par
Brown's Real Estate Solutions
3125 Yankee Rd
Vous êtes déjà membre? Connectez-vous
Hmm, il semble y avoir eu une erreur lors de l’envoi de votre message. Veuillez réessayer.
Merci! Votre message a été envoyé.
