Se Connecter/S’inscrire
Votre courriel a été envoyé.
3153 Rochester Rd
Troy, MI 48083
Commerce de détail Propriété À louer
·
10 825 pi²

Certaines informations ont été traduites automatiquement.
Faits saillants
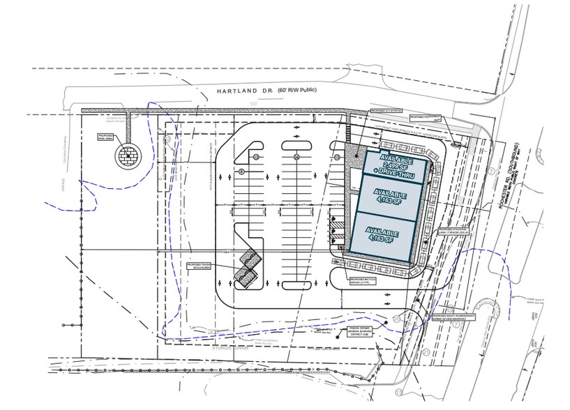
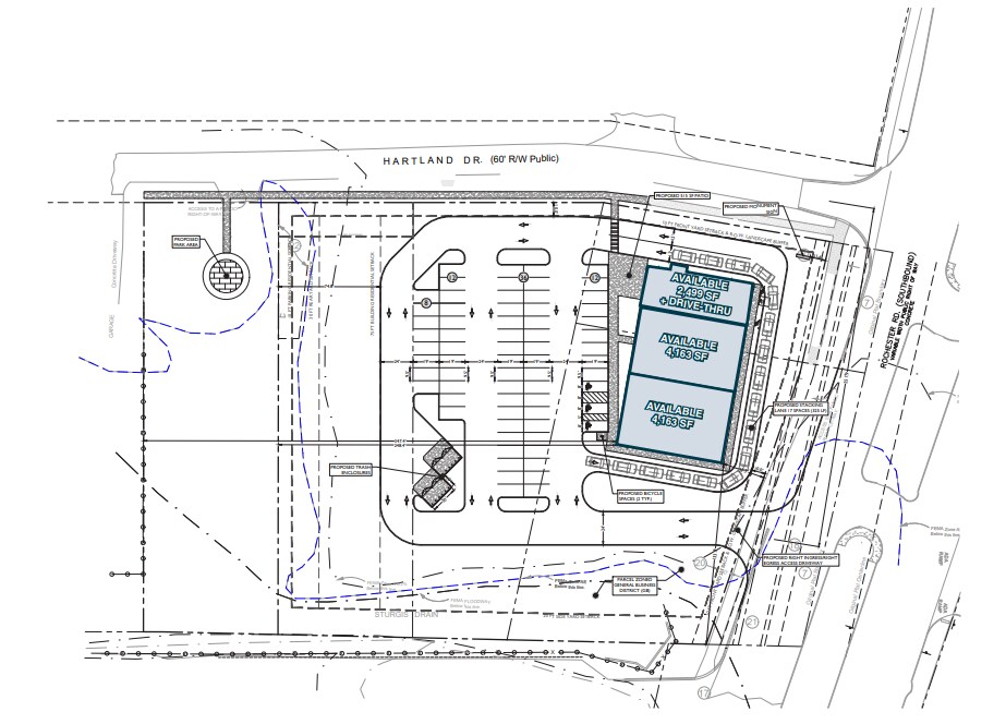
- Possibilités de vente au détail, de restaurant et de terrasse disponibles à la location.
- Des centres électriques ancrés dans le commerce de détail et des besoins quotidiens, plusieurs hôtels et restaurants haut de gamme et de nombreux immeubles de bureaux.
- Zone commerciale très recherchée, car Big Beaver Road abrite le centre commercial Somerset, le plus haut de gamme du Michigan.
Faits sur la propriété
| Superficie totale disponible | 10 825 pi² | Superficie totale du terrain | 2,82 AC |
| Type de propriété | Commerce de détail | Année de construction | 2027 |
| Sous-type de propriété | Restauration rapide | État de la construction | Proposé |
| Superficie commerciale brute | 10 825 pi² |
| Superficie totale disponible | 10 825 pi² |
| Type de propriété | Commerce de détail |
| Sous-type de propriété | Restauration rapide |
| Superficie commerciale brute | 10 825 pi² |
| Superficie totale du terrain | 2,82 AC |
| Année de construction | 2027 |
| État de la construction | Proposé |
À propos de la propriété
Projet d'immeuble de vente au détail à Troy, au Michigan.
1 de 2
Vidéos
Visite extérieure 3D Matterport
Visite 3D Matterport
Photos
Vue depuis la rue
Rue
Carte
