Se Connecter/S’inscrire
Votre courriel a été envoyé.
3184 Pullman St
Costa Mesa, CA 92626
Bldg D · Flex Propriété À louer
·
55 693 pi²


Certaines informations ont été traduites automatiquement.
Faits saillants
- Aéroport John Wayne/Orange County adjacent
- Accès immédiat aux 55 405,5 autoroutes et au 241 route à péage
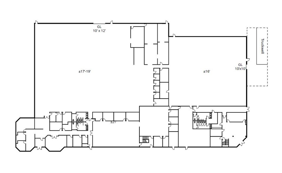
- ±25 260 pieds pieds pieds 2 de zone améliorée existante
- Situé à l'échangeur de l'autoroute 55/405
- 1 poste de chargement à quai haute MP - Zonage de parc industriel 2 portes de chargement au niveau du sol (10'x10' + 10'x12')
- Peut modifier/supprimer des améliorations en fonction de la situation
Caractéristiques
Hauteur libre
19’
Baies d’entrée
2
Places de stationnement standard
145
Aperçu de la propriété
Situé dans le marché prisé de la zone aéroportuaire, le 3184, rue Pullman, est un immeuble industriel à forte image d'entreprise à forte image de ±55 693 pi2 à louer. Cet emplacement privilégié offre un vaste bassin de talents, un accès pratique aux principales artères de transport du sud de la Californie et abrite un grand nombre d'occupants corporatifs. Voir le site Web : www.3184pullman.com
Faits sur la propriété
Taille du bâtiment
55 693 pi²
Taille du lot
1,14 AC
Année de construction/rénovation
1973/2003
Construction
Béton renforcé
Alimentation électrique
Ampères: 2 500 Volts: 277-480
Zonage
MP, Costa Mesa - Zonage du parc industriel
1 de 5
Vidéos
Visite extérieure 3D Matterport
Visite 3D Matterport
Photos
Vue depuis la rue
Rue
Carte
