Se Connecter/S’inscrire
Votre courriel a été envoyé.
Certaines informations ont été traduites automatiquement.
Faits saillants de l'investissement
- Excellent emplacement
- Principales voies de circulation
- Croissance résidentielle
- Nombre de trafic élevé
- Croissance résidentielle
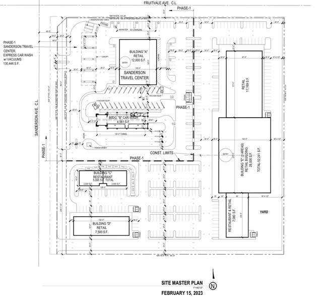
Faits sur la propriété
| Type de vente | Investissement | Sous-type de propriété | Terrain commercial |
| Nombre de lots | 1 | Utilisation proposée | |
| Type de propriété | Terrain | Taille totale du lot | 9,15 AC |
| Zonage | NC - Commercial de quartier | ||
| Type de vente | Investissement |
| Nombre de lots | 1 |
| Type de propriété | Terrain |
| Sous-type de propriété | Terrain commercial |
| Utilisation proposée | |
| Taille totale du lot | 9,15 AC |
| Zonage | NC - Commercial de quartier |
1 Lot disponible
Lot
| Taille du lot | 9,15 AC |
| Taille du lot | 9,15 AC |
9.15 AC vacant
Description
9.15 Terrain AC disponible à la location.
1 1
Plutôt praticable à pied
30/100
Très facile d’accès en voiture
80/100
Transports en commun limités
20/100
Plutôt praticable en vélo
40/100
Impôts fonciers
| Numéro de lot | 444-100-008 | Évaluation des bâtiments | 0 $ CAD |
| Évaluation du terrain | 1 788 015 $ CAD | Évaluation totale | 1 788 015 $ CAD |
Impôts fonciers
Numéro de lot
444-100-008
Évaluation du terrain
1 788 015 $ CAD
Évaluation des bâtiments
0 $ CAD
Évaluation totale
1 788 015 $ CAD
1 de 4
Vidéos
Visite extérieure 3D Matterport
Visite 3D Matterport
Photos
Vue depuis la rue
Rue
Carte
1 de 1
Présenté par
3206 W Fruitvale Ave
Vous êtes déjà membre? Connectez-vous
Hmm, il semble y avoir eu une erreur lors de l’envoi de votre message. Veuillez réessayer.
Merci! Votre message a été envoyé.



