Votre courriel a été envoyé.
32211-32251 Mound Rd 966–7 506 pi² d'espace disponible • Commerce de détail • Warren, MI 48092



Certaines informations ont été traduites automatiquement.
Faits saillants
- Highly visible location along a major commercial corridor.
- Surrounded by dense residential neighborhoods and strong consumer base.
- Prominent signage opportunities for maximum brand exposure.
- Modernized layouts designed for retail, service, or dining concepts.
- Convenient access to arterial roads supporting local and commuter traffic.
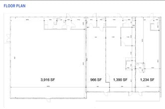
Disponibilité des espaces (4)
Afficher les taux de location en
- Espace
- Taille
- Terme
- Taux de location
- Type de loyer
| Espace | Taille | Terme | Taux de location | Type de loyer | ||
| 1er étage | 3 916 pi² | Négociable | 34,26 $ CAD/pi²/an 2,86 $ CAD/pi²/mois 134 176 $ CAD/an 11 181 $ CAD/mois | Loyer hypernet | ||
| 1er étage | 966 pi² | Négociable | 34,26 $ CAD/pi²/an 2,86 $ CAD/pi²/mois 33 099 $ CAD/an 2 758 $ CAD/mois | Loyer hypernet | ||
| 1er étage | 1 390 pi² | Négociable | 34,26 $ CAD/pi²/an 2,86 $ CAD/pi²/mois 47 626 $ CAD/an 3 969 $ CAD/mois | Loyer hypernet | ||
| 1er étage | 1 234 pi² | Négociable | 34,26 $ CAD/pi²/an 2,86 $ CAD/pi²/mois 42 281 $ CAD/an 3 523 $ CAD/mois | Loyer hypernet |
1er étage
Suite availability ranges from 966 SF to 3,916 SF. Modernized layouts designed for retail, service, or dining. Updated curb appeal with efficient floor plans.
- Le taux de location ne comprend pas les services publics, les services de bâtiment ou les dépenses immobilières.
- Espace embout très recherché
- Espace en excellent état
- Climatisation centrale
- Prominent signage.
- Convenient access and strong daily traffic.
1er étage
Suite availability ranges from 966 SF to 3,916 SF. Modernized layouts designed for retail, service, or dining. Updated curb appeal with efficient floor plans.
- Le taux de location ne comprend pas les services publics, les services de bâtiment ou les dépenses immobilières.
- Situé en ligne avec d’autres commerces de détail
- Espace en excellent état
- Climatisation centrale
- Prominent signage.
- Convenient access and strong daily traffic.
1er étage
Suite availability ranges from 966 SF to 3,916 SF. Modernized layouts designed for retail, service, or dining. Updated curb appeal with efficient floor plans.
- Le taux de location ne comprend pas les services publics, les services de bâtiment ou les dépenses immobilières.
- Situé en ligne avec d’autres commerces de détail
- Espace en excellent état
- Climatisation centrale
- Prominent signage.
- Convenient access and strong daily traffic.
1er étage
Suite availability ranges from 966 SF to 3,916 SF. Modernized layouts designed for retail, service, or dining. Updated curb appeal with efficient floor plans.
- Le taux de location ne comprend pas les services publics, les services de bâtiment ou les dépenses immobilières.
- Espace embout très recherché
- Espace en excellent état
- Climatisation centrale
- Prominent signage.
- Convenient access and strong daily traffic.
Types de loyers
Le type et le montant du loyer que le locataire (preneur) est tenu de payer au propriétaire (bailleur) sur la durée du bail sont négociés avant la signature du bail par les deux parties. Le type de loyer varie selon les services fournis. Par exemple, le prix d’un loyer hypernet est habituellement inférieur à celui d’un bail à service complet puisque le locataire est tenu d’assumer des dépenses additionnelles par rapport au loyer de base. Contactez le courtier inscripteur pour tout connaître sur les frais connexes et additionnels associés à chaque type de loyer.
1. Service complet: Un taux de location qui comprend des services standards liés à l’immeuble fournis par le propriétaire dans le cadre d’une location annuelle de base.
2. Loyer supernet: Le locataire paie seulement deux des frais de l’immeuble. Le propriétaire et le locataire déterminent ces frais spécifiques avant la signature du bail.
3. Loyer hypernet: Un bail en vertu duquel le locataire est responsable de tous les frais liés à sa part proportionnelle d’occupation de l’immeuble.
4. Brut modifié: Le loyer brut modifié désigne un type général de taux de location dans lequel le locataire est habituellement responsable de sa part proportionnelle d’un ou de plusieurs frais. C’est le propriétaire qui paie les frais restants. Considérez les structures tarifaires courantes suivantes applicables aux loyers bruts modifiés: 4. Plus les services: Un type de bail brut modifié suivant lequel le locataire est responsable de sa part proportionnelle des coûts des services publics, en plus du loyer. 4. Plus le nettoyage: Un type de bail brut modifié suivant lequel le locataire est responsable de sa part proportionnelle des coûts de nettoyage, en plus du loyer. 4. Plus l'électricité: Un type de bail brut modifié suivant lequel le locataire est responsable de sa part proportionnelle des coûts d’électricité, en plus du loyer. 4. Plus l’électricité et le nettoyage: Un type de bail brut modifié dans lequel le locataire est responsable de sa part proportionnelle des coûts d’électricité et de nettoyage, en plus du loyer. 4. Plus les services publics et le nettoyage: Un type de bail brut modifié dans lequel le locataire est responsable de sa part proportionnelle des coûts des services publics et de nettoyage, en plus du loyer. 4. Bail industriel brut: Un type de bail brut modifié dans lequel le locataire paie un ou plusieurs des frais, en plus du loyer. Le propriétaire et le locataire déterminent ces frais spécifiques avant la signature du bail.
5. L’électricité est à la charge du locataire: Le propriétaire paie pour tous les services et le locataire est responsable de sa propre utilisation de l’éclairage et des prises électriques dans l’espace qu’il occupe.
6. Négociable ou sur demande: Cette option est utilisée lorsque le contact de location ne précise pas le type de loyer ou de service.
7. À déterminer: À déterminer ; utilisé pour les immeubles dont le type de services ou de loyer n’est pas connu, souvent quand l’immeuble n’est pas encore construit.
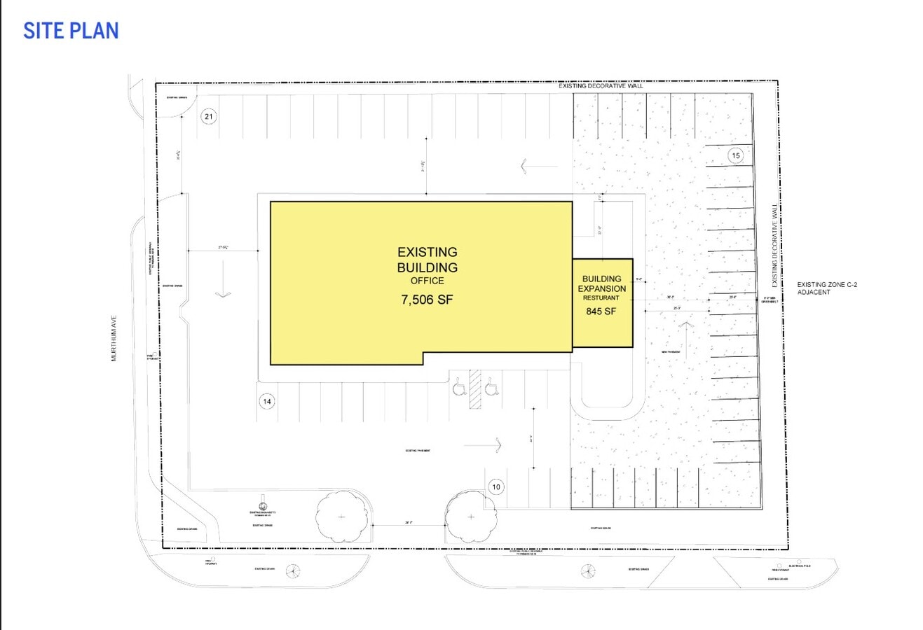
Plan de site
Sélectionner des locataires à 32211-32251 Mound Rd, Warren, MI 48092
- Locataire
- Description
- Emplacements US
- Portée
- M&M LLC
- Services
- -
- -
- Nvision Hair Studio
- Services
- 1
- -
- Pilar's Tamales
- Détaillant
- 1
- -
- Sudden Impact
- Détaillant
- 1
- -
| Locataire | Description | Emplacements US | Portée |
| M&M LLC | Services | - | - |
| Nvision Hair Studio | Services | 1 | - |
| Pilar's Tamales | Détaillant | 1 | - |
| Sudden Impact | Détaillant | 1 | - |
Faits sur la propriété
| Superficie totale disponible | 7 506 pi² | Superficie commerciale brute | 8 351 pi² |
| Type de propriété | Commerce de détail | Année de construction | 2006 |
| Sous-type de propriété | Immeuble de commerce | Ratio de stationnement | 3,95/1 000 pi² |
| Superficie totale disponible | 7 506 pi² |
| Type de propriété | Commerce de détail |
| Sous-type de propriété | Immeuble de commerce |
| Superficie commerciale brute | 8 351 pi² |
| Année de construction | 2006 |
| Ratio de stationnement | 3,95/1 000 pi² |
À propos de la propriété
La Plaza Saint Anne offre une opportunité commerciale de premier choix au cœur de Warren, la ville la plus peuplée du Michigan et un centre commercial florissant du comté de Macomb. Situé le long de Mound Road, l'un des corridors commerciaux les plus fréquentés de la région, ce centre commercial modernisé offre une visibilité exceptionnelle et un accès pratique aux routes artérielles environnantes. Le design actualisé et l'attrait extérieur de la propriété créent un environnement accueillant pour les détaillants, les prestataires de services et les restaurateurs recherchant un emplacement à fort trafic avec une forte demande des consommateurs. Entourée de quartiers résidentiels denses et de commerces établis, la Plaza Saint Anne bénéficie d'un profil démographique robuste, incluant près de 292 000 résidents dans un rayon de cinq miles et un revenu moyen des ménages dépassant 82 000 $. L'emplacement stratégique du site à proximité des principaux centres d'emploi assure un trafic piétonnier constant et une exposition aux navetteurs, tandis que les opportunités de signalisation proéminentes amplifient la présence de la marque. Avec des aménagements flexibles adaptés aux besoins contemporains du commerce de détail, cette propriété est idéale pour les entreprises cherchant à tirer parti du marché dynamique de Warren et de sa croissance économique soutenue.
Principaux détaillants à proximité
Présenté par
32211-32251 Mound Rd
Hmm, il semble y avoir eu une erreur lors de l’envoi de votre message. Veuillez réessayer.
Merci! Votre message a été envoyé.


