Se Connecter/S’inscrire
Votre courriel a été envoyé.
Mixed-Use Retail 324 1st St 4 209 pi² Commerce de détail Immeuble Des Moines, IA 50265 786 387 $ CAD (186,83 $ CAD/pi²)



Certaines informations ont été traduites automatiquement.
Faits saillants de l'investissement
- Property is located within the Historic West Des Moines Boundary for Property Improvement and Regulatory Compliance Funds.
Résumé de l'annonce
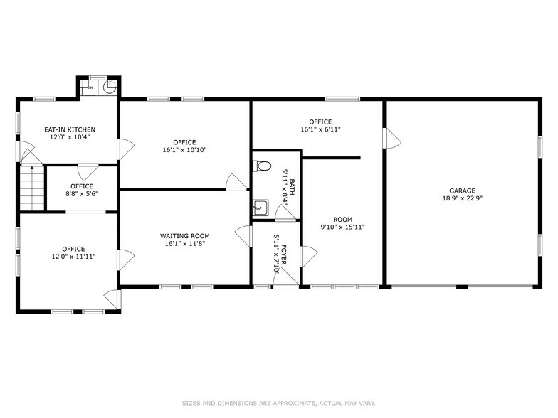
Beautiful Beaverdale Brick Property Located in Valley Junction. This Property includes a Retail building used as a Furnished Rental, a Multi-Unit Office/Retail Building and
a Storage Outbuilding.
a Storage Outbuilding.
Taxes et dépenses d’exploitation (Réel - 2025) Cliquez ici pour accéder à |
Annuel (CAD) | Annuel par pi² (CAD) |
|---|---|---|
| Taxes |
-
|
-
|
| Dépenses d’exploitation |
-
|
-
|
| Total des dépenses |
$99,999
|
$9.99
|
Taxes et dépenses d’exploitation (Réel - 2025) Cliquez ici pour accéder à
| Taxes (CAD) | |
|---|---|
| Annuel | - |
| Annuel par pi² | - |
| Dépenses d’exploitation (CAD) | |
|---|---|
| Annuel | - |
| Annuel par pi² | - |
| Total des dépenses (CAD) | |
|---|---|
| Annuel | $99,999 |
| Annuel par pi² | $9.99 |
Faits sur la propriété
Type de vente
Propriétaire utilisateur
Type de propriété
Commerce de détail
Taille du bâtiment
4 209 pi²
Classe d’immeuble
C
Année de construction
1939
Prix
786 387 $ CAD
Prix par pi²
186,83 $ CAD
Location
Multiples
Hauteur du bâtiment
2 étages
Coefficient d’occupation des sols de l’immeuble
0,22
Taille du lot
0,44 AC
Zone de développement économique
Oui
Zonage
VJC
Stationnement
6 places (1,43 places par 1 000 pi² loué)
Bike Score®
Très cyclable (72)
Principaux détaillants à proximité
Impôts fonciers
| Numéro de lot | 320-04525003000 | Évaluation des bâtiments | 94 871 $ CAD |
| Évaluation du terrain | 300 877 $ CAD | Évaluation totale | 395 748 $ CAD |
Impôts fonciers
Numéro de lot
320-04525003000
Évaluation du terrain
300 877 $ CAD
Évaluation des bâtiments
94 871 $ CAD
Évaluation totale
395 748 $ CAD
1 de 69
Vidéos
Visite extérieure 3D Matterport
Visite 3D Matterport
Photos
Vue depuis la rue
Rue
Carte
Présenté par
Mixed-Use Retail | 324 1st St
Vous êtes déjà membre? Connectez-vous
Hmm, il semble y avoir eu une erreur lors de l’envoi de votre message. Veuillez réessayer.
Merci! Votre message a été envoyé.
Votre message a été envoyé !
Activez votre compte LoopNet dès maintenant pour suivre les propriétés, recevoir des alertes en temps réel, gagner du temps sur vos demandes futures et bien plus encore.
