Se Connecter/S’inscrire
Votre courriel a été envoyé.
33 W Jackson Blvd Unité de condo • Bureau • 1 100 pi² • À vendre 332 899 $ CAD • Chicago, IL 60604



Certaines informations ont été traduites automatiquement.
Faits saillants de l'investissement
- Prime Chicago Loop location surrounded by major financial, legal, and corporate institutions.
Résumé de l'annonce
Propriété de bureaux avec plusieurs condos de bureaux répartis. Les espaces sont entièrement aménagés et offrent beaucoup de lumière naturelle ainsi qu'un accès pratique au centre-ville de Chicago.
1 Unité disponible
Unité 200
| Taille de l’unité | 1 100 pi² | Utilisation du condo | Bureau |
| Prix | 332 899 $ CAD | Type de vente | Propriétaire utilisateur |
| Prix par pi² | 302,64 $ CAD | ID/Numéro de lot | 17-16-234-007-1008 |
| Taille de l’unité | 1 100 pi² |
| Prix | 332 899 $ CAD |
| Prix par pi² | 302,64 $ CAD |
| Utilisation du condo | Bureau |
| Type de vente | Propriétaire utilisateur |
| ID/Numéro de lot | 17-16-234-007-1008 |
Description
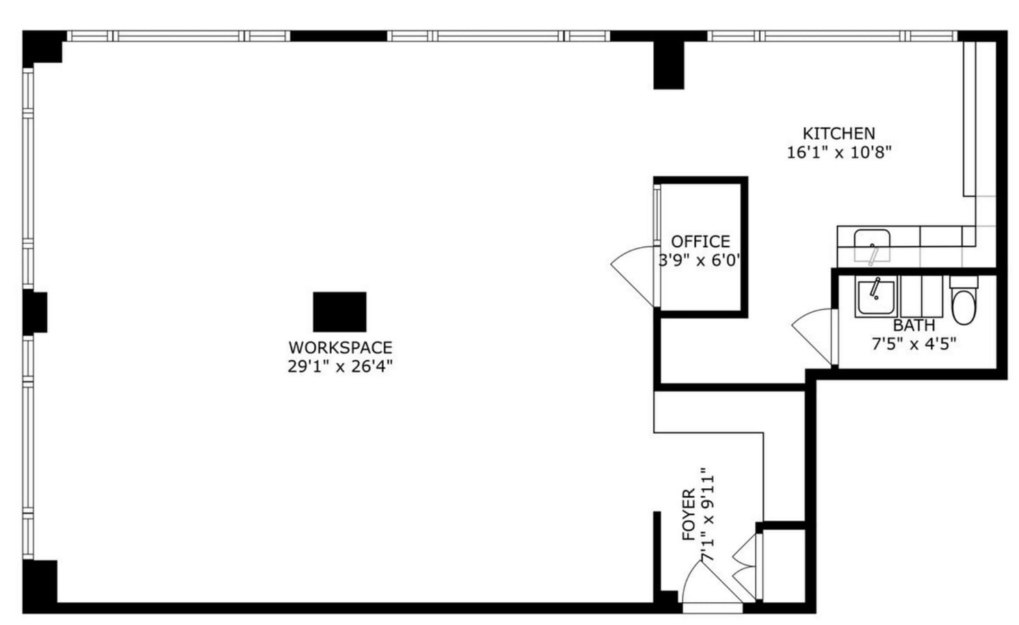
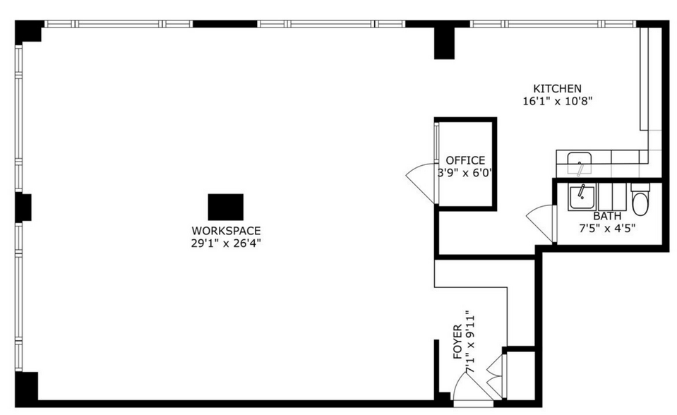
Condo sits above first floor with tons of natural lighting and a downtown Chicago location! Workspace makes of a majority of this suite; however, there is one private office, kitchen, and foyer.
Notes sur la vente
Office condo for sale ideal for legal, consulting, financial, or administrative uses.
Floor Plan
Interior
Interior
Interior
1 de 4
Vidéos
Visite extérieure 3D Matterport
Visite 3D Matterport
Photos
Vue depuis la rue
Rue
Carte
Faits sur la propriété
Les caractéristiques et les équipements suivants s'appliquent à l'ensemble du bâtiment. Les détails relatifs aux unités de copropriété individuelles peuvent varier et figurent dans les informations concernant les unités ci-dessus.
| Taille totale du bâtiment | 17 250 pi² | Planchers | 5 |
| Type de propriété | Bureau (Condo) | Superficie de plancher typique | 3 450 pi² |
| Sous-type de propriété | Loft | Année de construction | 1910 |
| Classe d’immeuble | C | Taille du lot | 0,09 AC |
| Zonage | RBPD, Chicago - DC16 | ||
| Taille totale du bâtiment | 17 250 pi² |
| Type de propriété | Bureau (Condo) |
| Sous-type de propriété | Loft |
| Classe d’immeuble | C |
| Planchers | 5 |
| Superficie de plancher typique | 3 450 pi² |
| Année de construction | 1910 |
| Taille du lot | 0,09 AC |
| Zonage | RBPD, Chicago - DC16 |
Commodités
- Ligne d'autobus
- Train de banlieue
- Service d'alimentation
- Affichage
1 1
Exceptionnellement praticable à pied
100/100
Moyennement facile d’accès en voiture
70/100
Transports en commun exceptionnels
100/100
Exceptionnellement praticable à vélo
90/100
1 de 6
Vidéos
Visite extérieure 3D Matterport
Visite 3D Matterport
Photos
Vue depuis la rue
Rue
Carte
1 de 1
Présenté par
33 W Jackson Blvd
Vous êtes déjà membre? Connectez-vous
Hmm, il semble y avoir eu une erreur lors de l’envoi de votre message. Veuillez réessayer.
Merci! Votre message a été envoyé.

