Votre courriel a été envoyé.
Mariner's Mile Medical Plaza 3300 W Coast Hwy 3 152–7 556 pi² d'espace disponible • Médical • Newport Beach, CA 92663



Certaines informations ont été traduites automatiquement.
Faits saillants
- Proche des autoroutes 1 et 55.
- Building top and monument signage available
- Abundant surface parking
- One block to Hoag Hospital Newport Beach
- 883,000 patients within a 15 minute drive time
Tous les espaces disponibles(2)
Afficher les taux de location en
- Espace
- Taille
- Terme
- Taux de location
- Utilisation de l’espace
- Aménagement
- Disponible
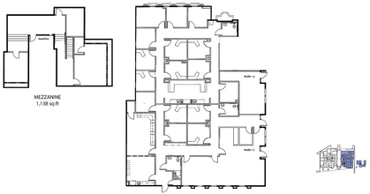
Suite A • Space Available: 3,266 to 4,404 RSF (Contiguous with Suite C) • Lease Rate: $4.95/SF • Lease Type: MG • Suite Description: Ground Floor Suite. Direct access to suite from parking area. Former Urgent Care Suite. Efficient race track loop design. Contiguous with Suite C. Floor Plan: https://medwestrealty.com/wp-content/uploads/2023/03/Suite-A-2.png Additional Mezzanine Area (Available for Lease) 1,138 sq ft
- Le taux inscrit peut ne pas comprendre certains services publics, les services de bâtiment et les dépenses immobilières.
- Disposition du plan d’étage ouverte en général
- Peut être associé à un ou plusieurs espaces supplémentaires pour obtenir jusqu’à 7 556 pi² d’espace adjacent.
- Excellent état
- Entièrement construit comme Espace médical standard
- Espace en excellent état
- Climatisation centrale
- Conçu comme standard médical
Suite C • Space Available: 3,152 SF (Contiguous with Suite A) • Lease Rate: $4.95/SF • Lease Type: MG • Suite Description: Ground Floor Suite. Direct access to suite from parking area. Suite can be designed to utilize large shared lobby, or have private entrance and exit for exclusive access. Contiguous with Suite A. Floor Plan: https://medwestrealty.com/wp-content/uploads/2023/03/Suite-C-1.png Virtual Tour: https://my.matterport.com/show/?m=mwars9Bves9
- Le taux inscrit peut ne pas comprendre certains services publics, les services de bâtiment et les dépenses immobilières.
- Disposition du plan d’étage ouverte en général
- Peut être associé à un ou plusieurs espaces supplémentaires pour obtenir jusqu’à 7 556 pi² d’espace adjacent.
- Plafond suspendu
- Toilettes communes
- Conçu comme standard médical
- Entièrement construit comme Espace médical standard
- Espace en excellent état
- Climatisation centrale
- Entreposage sécurisé
- Excellent état
| Espace | Taille | Terme | Taux de location | Utilisation de l’espace | Aménagement | Disponible |
| 1er étage, ste A | 3 266 à 4 404 pi² | Négociable | 81,38 $ CAD/pi²/an 6,78 $ CAD/pi²/mois 358 389 $ CAD/an 29 866 $ CAD/mois | Médical | construction complète | Maintenant |
| 1er étage, ste C | 3 152 pi² | Négociable | 81,38 $ CAD/pi²/an 6,78 $ CAD/pi²/mois 256 503 $ CAD/an 21 375 $ CAD/mois | Médical | construction complète | Maintenant |
1er étage, ste A
| Taille |
| 3 266 à 4 404 pi² |
| Terme |
| Négociable |
| Taux de location |
| 81,38 $ CAD/pi²/an 6,78 $ CAD/pi²/mois 358 389 $ CAD/an 29 866 $ CAD/mois |
| Utilisation de l’espace |
| Médical |
| Aménagement |
| construction complète |
| Disponible |
| Maintenant |
1er étage, ste C
| Taille |
| 3 152 pi² |
| Terme |
| Négociable |
| Taux de location |
| 81,38 $ CAD/pi²/an 6,78 $ CAD/pi²/mois 256 503 $ CAD/an 21 375 $ CAD/mois |
| Utilisation de l’espace |
| Médical |
| Aménagement |
| construction complète |
| Disponible |
| Maintenant |
1er étage, ste A
| Taille | 3 266 à 4 404 pi² |
| Terme | Négociable |
| Taux de location | 81,38 $ CAD/pi²/an |
| Utilisation de l’espace | Médical |
| Aménagement | construction complète |
| Disponible | Maintenant |
Suite A • Space Available: 3,266 to 4,404 RSF (Contiguous with Suite C) • Lease Rate: $4.95/SF • Lease Type: MG • Suite Description: Ground Floor Suite. Direct access to suite from parking area. Former Urgent Care Suite. Efficient race track loop design. Contiguous with Suite C. Floor Plan: https://medwestrealty.com/wp-content/uploads/2023/03/Suite-A-2.png Additional Mezzanine Area (Available for Lease) 1,138 sq ft
- Le taux inscrit peut ne pas comprendre certains services publics, les services de bâtiment et les dépenses immobilières.
- Entièrement construit comme Espace médical standard
- Disposition du plan d’étage ouverte en général
- Espace en excellent état
- Peut être associé à un ou plusieurs espaces supplémentaires pour obtenir jusqu’à 7 556 pi² d’espace adjacent.
- Climatisation centrale
- Excellent état
- Conçu comme standard médical
1er étage, ste C
| Taille | 3 152 pi² |
| Terme | Négociable |
| Taux de location | 81,38 $ CAD/pi²/an |
| Utilisation de l’espace | Médical |
| Aménagement | construction complète |
| Disponible | Maintenant |
Suite C • Space Available: 3,152 SF (Contiguous with Suite A) • Lease Rate: $4.95/SF • Lease Type: MG • Suite Description: Ground Floor Suite. Direct access to suite from parking area. Suite can be designed to utilize large shared lobby, or have private entrance and exit for exclusive access. Contiguous with Suite A. Floor Plan: https://medwestrealty.com/wp-content/uploads/2023/03/Suite-C-1.png Virtual Tour: https://my.matterport.com/show/?m=mwars9Bves9
- Le taux inscrit peut ne pas comprendre certains services publics, les services de bâtiment et les dépenses immobilières.
- Entièrement construit comme Espace médical standard
- Disposition du plan d’étage ouverte en général
- Espace en excellent état
- Peut être associé à un ou plusieurs espaces supplémentaires pour obtenir jusqu’à 7 556 pi² d’espace adjacent.
- Climatisation centrale
- Plafond suspendu
- Entreposage sécurisé
- Toilettes communes
- Excellent état
- Conçu comme standard médical
Aperçu de la propriété
Le 3300 W Coast Highway est un immeuble de bureaux médicaux d'un étage présentant une architecture classique, un accès inégalé et des finitions haut de gamme. Grâce à ses affiches et à sa démographie aisée, 3300 est la destination de choix pour les médecins, les dentistes et les médecins pour servir leurs patients et faire croître leur pratique médicale. La propriété offre également un grand stationnement gratuit pour les locataires et les patients, et un dépôt pratique pour les patients, ce qui en fait une expérience de meilleure classe pour les locataires et les visiteurs. - Adjacent à l'hôpital Hoag - Panneaux bien en vue sur la route de la côte du Pacifique - Finis de suite haut de gamme - Accessibilité ADA - Beaucoup de places de stationnement en surface et dépôt pratique du patient - Propriété professionnelle et gérée localement
- Ligne d'autobus
- Affichage
Faits sur la propriété
Présenté par
Mariner's Mile Medical Plaza | 3300 W Coast Hwy
Hmm, il semble y avoir eu une erreur lors de l’envoi de votre message. Veuillez réessayer.
Merci! Votre message a été envoyé.






