Se Connecter/S’inscrire
Votre courriel a été envoyé.
One Acre Parking Lot off I-405 3301 Atlantic Ave Terrain à louer de 1,12 acres • Terrain commercial • Long Beach, CA 90807



Certaines informations ont été traduites automatiquement.
LOT Disponible
Afficher les taux de location en
| Taux de location |
|
Taille du lot | 1,12 AC |
| Durée du bail | Négociable |
| Taux de location | |
| Durée du bail | Négociable |
| Taille du lot | 1,12 AC |
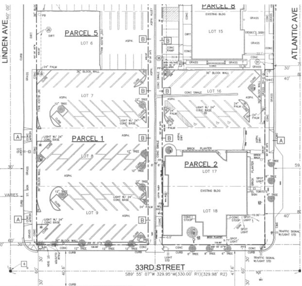
The large parking lot of 3301 Atlantic Avenue is available for rent on a monthly or annual basis. Per the ALTA survey provided, the site contains 85 parking spaces and could accommodate more for certain users. The total lot size is 48,795 SF minus the 5,900 SF structure, which is currently vacant. 3301 Atlantic Avenue is located directly off an I-405 entrance and exit. The site is also one mile west of Long Beach Airport and the numerous logistics, space and aerospace facilities surrounding the runways.
Faits sur la propriété
| Superficie totale disponible | 1,12 AC | Sous-type de propriété | Terrain commercial |
| Type de propriété | Terrain | Utilisation proposée | Parc de stationnement |
| Superficie totale disponible | 1,12 AC |
| Type de propriété | Terrain |
| Sous-type de propriété | Terrain commercial |
| Utilisation proposée | Parc de stationnement |
Moyennement praticable à pied
70/100
Exceptionnellement facile d’accès en voiture
100/100
Bons transports en commun
60/100
Plutôt praticable en vélo
50/100
1 de 4
Vidéos
Visite extérieure 3D Matterport
Visite 3D Matterport
Photos
Vue depuis la rue
Rue
Carte
Présenté par
One Acre Parking Lot off I-405 | 3301 Atlantic Ave
Vous êtes déjà membre? Connectez-vous
Hmm, il semble y avoir eu une erreur lors de l’envoi de votre message. Veuillez réessayer.
Merci! Votre message a été envoyé.

