Votre courriel a été envoyé.
Certaines informations ont été traduites automatiquement.
FAITS SAILLANTS DU PARC
- Sheffield Office Park offre des suites prêtes à emménager avec jusqu'à 21 920 pieds carrés d'espace contigu dans un magnifique cadre semblable à un parc.
- Les équipements supérieurs sur place comprennent une nouvelle déli/Starbucks, un salon des locataires, un accès 24 heures sur 24, un nouveau centre de conférence et un centre de conditionnement physique.
- Abundant Parking
- Le 3250-3310 W Big Beaver Rd est un parc à bureaux de trois bâtiments de 500 000 pieds carrés avec espace de classe A, offrant de nouveaux halls d'entrée et des améliorations à des aires communes.
- Sheffield Office Park offre un accès pratique à l'Interstate 75 pour faciliter les déplacements à destination et en provenance de la propriété.
FAITS SUR LE PARC
| Superficie totale disponible | 112 786 pi² | Type de parc | Parc de bureaux |
| Superficie totale disponible | 112 786 pi² |
| Type de parc | Parc de bureaux |
TOUS LES ESPACES DISPONIBLES(18)
Afficher les taux de location en
- ESPACE
- TAILLE
- TERME
- TAUX DE LOCATION
- UTILISATION DE L’ESPACE
- ÉTAT
- DISPONIBLE
- Le taux inscrit peut ne pas comprendre certains services publics, les services de bâtiment et les dépenses immobilières.
- Disposition du plan d’étage ouverte en général
- Climatisation centrale
- Entièrement construit comme Bureau standard
- Convient pour 3 à 9 personnes
- Taux de location inscrit plus part proportionnelle des coûts de la consommation électrique
- Convient pour 9 à 27 personnes
- Le taux inscrit peut ne pas comprendre certains services publics, les services de bâtiment et les dépenses immobilières.
- Disposition du plan d’étage ouverte en général
- Climatisation centrale
- Entièrement construit comme Bureau standard
- Convient pour 6 à 19 personnes
- Taux de location inscrit plus part proportionnelle des coûts de la consommation électrique
- Disposition du plan d’étage ouverte en général
- Entièrement construit comme Bureau standard
- Convient pour 43 à 138 personnes
- Taux de location inscrit plus part proportionnelle des coûts de la consommation électrique
- Disposition du plan d’étage ouverte en général
- Climatisation centrale
- Entièrement construit comme Bureau standard
- Convient pour 5 à 16 personnes
- Taux de location inscrit plus part proportionnelle des coûts de la consommation électrique
- Disposition du plan d’étage ouverte en général
- Entièrement construit comme Bureau standard
- Convient pour 6 à 20 personnes
- Taux de location inscrit plus part proportionnelle des coûts de la consommation électrique
- Disposition du plan d’étage ouverte en général
- Entièrement construit comme Bureau standard
- Convient pour 7 à 22 personnes
Great opportunity for tenant to occupy the entire north side of the floor. Landlord will re-configure layout. Signage opportunity available.
- Taux de location inscrit plus part proportionnelle des coûts de la consommation électrique
- Disposition du plan d’étage ouverte en général
- Partiellement construit comme Bureau standard
- Convient pour 44 à 139 personnes
| Espace | Taille | Terme | Taux de location | Utilisation de l’espace | État | Disponible |
| 1er étage, ste 102 | 1 060 pi² | 1-10 ans | Sur demande Sur demande Sur demande Sur demande | Bureau | construction complète | Maintenant |
| 1er étage, ste 110 | 3 343 pi² | Négociable | 22,18 $ CAD/pi²/an 1,85 $ CAD/pi²/mois 74 158 $ CAD/an 6 180 $ CAD/mois | Bureau | - | Maintenant |
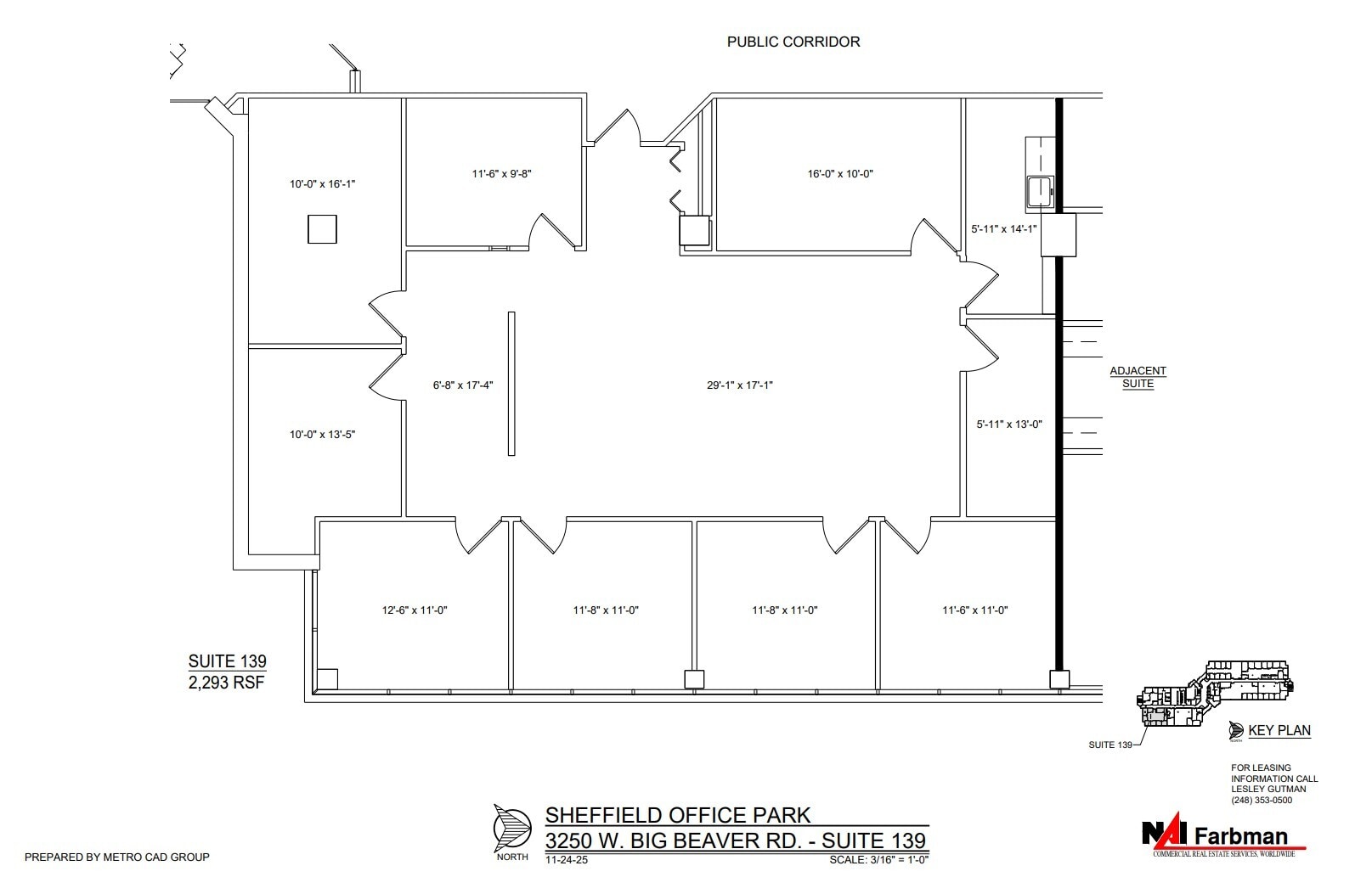
| 1er étage, ste 139 | 2 293 pi² | 1-10 ans | Sur demande Sur demande Sur demande Sur demande | Bureau | construction complète | Maintenant |
| 2e étage, ste 200 | 17 144 pi² | Négociable | 22,18 $ CAD/pi²/an 1,85 $ CAD/pi²/mois 380 306 $ CAD/an 31 692 $ CAD/mois | Bureau | construction complète | Maintenant |
| 3e étage, ste 300 | 1 950 pi² | 10 ans | 22,18 $ CAD/pi²/an 1,85 $ CAD/pi²/mois 43 257 $ CAD/an 3 605 $ CAD/mois | Bureau | construction complète | Maintenant |
| 3e étage, ste 327 | 2 392 pi² | Négociable | 22,18 $ CAD/pi²/an 1,85 $ CAD/pi²/mois 53 062 $ CAD/an 4 422 $ CAD/mois | Bureau | construction complète | Maintenant |
| 3e étage, ste 333 | 2 731 pi² | Négociable | 22,18 $ CAD/pi²/an 1,85 $ CAD/pi²/mois 60 582 $ CAD/an 5 048 $ CAD/mois | Bureau | construction complète | Maintenant |
| 4e étage, ste 400 | 17 348 pi² | Négociable | 22,18 $ CAD/pi²/an 1,85 $ CAD/pi²/mois 384 831 $ CAD/an 32 069 $ CAD/mois | Bureau | construction partielle | Maintenant |
3250 W Big Beaver Rd - 1er étage - ste 102
3250 W Big Beaver Rd - 1er étage - ste 110
3250 W Big Beaver Rd - 1er étage - ste 139
3250 W Big Beaver Rd - 2e étage - ste 200
3250 W Big Beaver Rd - 3e étage - ste 300
3250 W Big Beaver Rd - 3e étage - ste 327
3250 W Big Beaver Rd - 3e étage - ste 333
3250 W Big Beaver Rd - 4e étage - ste 400
- ESPACE
- TAILLE
- TERME
- TAUX DE LOCATION
- UTILISATION DE L’ESPACE
- ÉTAT
- DISPONIBLE
- Taux de location inscrit plus part proportionnelle des coûts de la consommation électrique
- Disposition du plan d’étage ouverte en général
- Partiellement construit comme Bureau standard
- Convient pour 6 à 19 personnes
Office Rate: $15.50 + E/Medical Rate: $20.50 +E.
- Taux de location inscrit plus part proportionnelle des coûts de la consommation électrique
- Disposition du plan d’étage ouverte en général
- Entièrement construit comme Bureau standard
- Convient pour 41 à 131 personnes
- Taux de location inscrit plus part proportionnelle des coûts de la consommation électrique
- Disposition du plan d’étage ouverte en général
- Climatisation centrale
- Entièrement construit comme Bureau standard
- Convient pour 7 à 20 personnes
Office Rate: $15.50 + E/Medical Rate: $20.50 +E.
- Taux de location inscrit plus part proportionnelle des coûts de la consommation électrique
- Disposition du plan d’étage ouverte en général
- Entièrement construit comme Bureau standard
- Convient pour 4 à 13 personnes
- Taux de location inscrit plus part proportionnelle des coûts de la consommation électrique
- Disposition du plan d’étage ouverte en général
- Entièrement construit comme Bureau standard
- Convient pour 6 à 18 personnes
- Taux de location inscrit plus part proportionnelle des coûts de la consommation électrique
- Disposition du plan d’étage ouverte en général
- Partiellement construit comme Bureau standard
- Convient pour 7 à 20 personnes
| Espace | Taille | Terme | Taux de location | Utilisation de l’espace | État | Disponible |
| 1er étage, ste 165 | 2 257 pi² | Négociable | 22,18 $ CAD/pi²/an 1,85 $ CAD/pi²/mois 50 067 $ CAD/an 4 172 $ CAD/mois | Bureau | construction partielle | Maintenant |
| 2e étage, ste 201 | 16 317 pi² | Négociable | 22,18 $ CAD/pi²/an 1,85 $ CAD/pi²/mois 361 961 $ CAD/an 30 163 $ CAD/mois | Bureau | construction complète | Maintenant |
| 3e étage, ste 305 | 2 405 pi² | Négociable | 22,18 $ CAD/pi²/an 1,85 $ CAD/pi²/mois 53 350 $ CAD/an 4 446 $ CAD/mois | Bureau | construction complète | Maintenant |
| 4e étage, ste 432 | 1 546 pi² | Négociable | 22,18 $ CAD/pi²/an 1,85 $ CAD/pi²/mois 34 295 $ CAD/an 2 858 $ CAD/mois | Bureau | construction complète | Maintenant |
| 4e étage, ste 455 | 2 220 pi² | Négociable | 22,18 $ CAD/pi²/an 1,85 $ CAD/pi²/mois 49 246 $ CAD/an 4 104 $ CAD/mois | Bureau | construction complète | Maintenant |
| 5e étage, ste 509 | 2 415 pi² | Négociable | 22,18 $ CAD/pi²/an 1,85 $ CAD/pi²/mois 53 572 $ CAD/an 4 464 $ CAD/mois | Bureau | construction partielle | Maintenant |
3290 W Big Beaver Rd - 1er étage - ste 165
3290 W Big Beaver Rd - 2e étage - ste 201
3290 W Big Beaver Rd - 3e étage - ste 305
3290 W Big Beaver Rd - 4e étage - ste 432
3290 W Big Beaver Rd - 4e étage - ste 455
3290 W Big Beaver Rd - 5e étage - ste 509
- ESPACE
- TAILLE
- TERME
- TAUX DE LOCATION
- UTILISATION DE L’ESPACE
- ÉTAT
- DISPONIBLE
- Le taux inscrit peut ne pas comprendre certains services publics, les services de bâtiment et les dépenses immobilières.
- Convient pour 11 à 36 personnes
302 and 310 can be combined for a total of 7,099 sf contigous
- Taux de location inscrit plus part proportionnelle des coûts de la consommation électrique
- Disposition du plan d’étage ouverte en général
- Climatisation centrale
- Entièrement construit comme Bureau standard
- Convient pour 10 à 31 personnes
- Le taux inscrit peut ne pas comprendre certains services publics, les services de bâtiment et les dépenses immobilières.
- Disposition du plan d’étage ouverte en général
- Entièrement construit comme Bureau standard
- Convient pour 19 à 59 personnes
- Le taux inscrit peut ne pas comprendre certains services publics, les services de bâtiment et les dépenses immobilières.
- Disposition du plan d’étage ouverte en général
- Entièrement construit comme Bureau standard
- Convient pour 55 à 176 personnes
| Espace | Taille | Terme | Taux de location | Utilisation de l’espace | État | Disponible |
| 3e étage, ste 301 | 4 381 pi² | Négociable | 22,88 $ CAD/pi²/an 1,91 $ CAD/pi²/mois 100 221 $ CAD/an 8 352 $ CAD/mois | Bureau | - | Maintenant |
| 3e étage, ste 302 | 3 799 pi² | Négociable | 22,18 $ CAD/pi²/an 1,85 $ CAD/pi²/mois 84 273 $ CAD/an 7 023 $ CAD/mois | Bureau | construction complète | Maintenant |
| 4e étage, ste 410 | 7 265 pi² | Négociable | 22,88 $ CAD/pi²/an 1,91 $ CAD/pi²/mois 166 196 $ CAD/an 13 850 $ CAD/mois | Bureau | construction complète | Maintenant |
| 4e étage, ste 450 | 21 920 pi² | Négociable | 22,88 $ CAD/pi²/an 1,91 $ CAD/pi²/mois 501 448 $ CAD/an 41 787 $ CAD/mois | Bureau | construction complète | Maintenant |
3310 W Big Beaver Rd - 3e étage - ste 301
3310 W Big Beaver Rd - 3e étage - ste 302
3310 W Big Beaver Rd - 4e étage - ste 410
3310 W Big Beaver Rd - 4e étage - ste 450
3250 W Big Beaver Rd - 1er étage - ste 102
| Taille | 1 060 pi² |
| Terme | 1-10 ans |
| Taux de location | Sur demande |
| Utilisation de l’espace | Bureau |
| État | construction complète |
| Disponible | Maintenant |
- Le taux inscrit peut ne pas comprendre certains services publics, les services de bâtiment et les dépenses immobilières.
- Entièrement construit comme Bureau standard
- Disposition du plan d’étage ouverte en général
- Convient pour 3 à 9 personnes
- Climatisation centrale
3250 W Big Beaver Rd - 1er étage - ste 110
| Taille | 3 343 pi² |
| Terme | Négociable |
| Taux de location | 22,18 $ CAD/pi²/an |
| Utilisation de l’espace | Bureau |
| État | - |
| Disponible | Maintenant |
- Taux de location inscrit plus part proportionnelle des coûts de la consommation électrique
- Convient pour 9 à 27 personnes
3250 W Big Beaver Rd - 1er étage - ste 139
| Taille | 2 293 pi² |
| Terme | 1-10 ans |
| Taux de location | Sur demande |
| Utilisation de l’espace | Bureau |
| État | construction complète |
| Disponible | Maintenant |
- Le taux inscrit peut ne pas comprendre certains services publics, les services de bâtiment et les dépenses immobilières.
- Entièrement construit comme Bureau standard
- Disposition du plan d’étage ouverte en général
- Convient pour 6 à 19 personnes
- Climatisation centrale
3250 W Big Beaver Rd - 2e étage - ste 200
| Taille | 17 144 pi² |
| Terme | Négociable |
| Taux de location | 22,18 $ CAD/pi²/an |
| Utilisation de l’espace | Bureau |
| État | construction complète |
| Disponible | Maintenant |
- Taux de location inscrit plus part proportionnelle des coûts de la consommation électrique
- Entièrement construit comme Bureau standard
- Disposition du plan d’étage ouverte en général
- Convient pour 43 à 138 personnes
3250 W Big Beaver Rd - 3e étage - ste 300
| Taille | 1 950 pi² |
| Terme | 10 ans |
| Taux de location | 22,18 $ CAD/pi²/an |
| Utilisation de l’espace | Bureau |
| État | construction complète |
| Disponible | Maintenant |
- Taux de location inscrit plus part proportionnelle des coûts de la consommation électrique
- Entièrement construit comme Bureau standard
- Disposition du plan d’étage ouverte en général
- Convient pour 5 à 16 personnes
- Climatisation centrale
3250 W Big Beaver Rd - 3e étage - ste 327
| Taille | 2 392 pi² |
| Terme | Négociable |
| Taux de location | 22,18 $ CAD/pi²/an |
| Utilisation de l’espace | Bureau |
| État | construction complète |
| Disponible | Maintenant |
- Taux de location inscrit plus part proportionnelle des coûts de la consommation électrique
- Entièrement construit comme Bureau standard
- Disposition du plan d’étage ouverte en général
- Convient pour 6 à 20 personnes
3250 W Big Beaver Rd - 3e étage - ste 333
| Taille | 2 731 pi² |
| Terme | Négociable |
| Taux de location | 22,18 $ CAD/pi²/an |
| Utilisation de l’espace | Bureau |
| État | construction complète |
| Disponible | Maintenant |
- Taux de location inscrit plus part proportionnelle des coûts de la consommation électrique
- Entièrement construit comme Bureau standard
- Disposition du plan d’étage ouverte en général
- Convient pour 7 à 22 personnes
3250 W Big Beaver Rd - 4e étage - ste 400
| Taille | 17 348 pi² |
| Terme | Négociable |
| Taux de location | 22,18 $ CAD/pi²/an |
| Utilisation de l’espace | Bureau |
| État | construction partielle |
| Disponible | Maintenant |
Great opportunity for tenant to occupy the entire north side of the floor. Landlord will re-configure layout. Signage opportunity available.
- Taux de location inscrit plus part proportionnelle des coûts de la consommation électrique
- Partiellement construit comme Bureau standard
- Disposition du plan d’étage ouverte en général
- Convient pour 44 à 139 personnes
3290 W Big Beaver Rd - 1er étage - ste 165
| Taille | 2 257 pi² |
| Terme | Négociable |
| Taux de location | 22,18 $ CAD/pi²/an |
| Utilisation de l’espace | Bureau |
| État | construction partielle |
| Disponible | Maintenant |
- Taux de location inscrit plus part proportionnelle des coûts de la consommation électrique
- Partiellement construit comme Bureau standard
- Disposition du plan d’étage ouverte en général
- Convient pour 6 à 19 personnes
3290 W Big Beaver Rd - 2e étage - ste 201
| Taille | 16 317 pi² |
| Terme | Négociable |
| Taux de location | 22,18 $ CAD/pi²/an |
| Utilisation de l’espace | Bureau |
| État | construction complète |
| Disponible | Maintenant |
Office Rate: $15.50 + E/Medical Rate: $20.50 +E.
- Taux de location inscrit plus part proportionnelle des coûts de la consommation électrique
- Entièrement construit comme Bureau standard
- Disposition du plan d’étage ouverte en général
- Convient pour 41 à 131 personnes
3290 W Big Beaver Rd - 3e étage - ste 305
| Taille | 2 405 pi² |
| Terme | Négociable |
| Taux de location | 22,18 $ CAD/pi²/an |
| Utilisation de l’espace | Bureau |
| État | construction complète |
| Disponible | Maintenant |
- Taux de location inscrit plus part proportionnelle des coûts de la consommation électrique
- Entièrement construit comme Bureau standard
- Disposition du plan d’étage ouverte en général
- Convient pour 7 à 20 personnes
- Climatisation centrale
3290 W Big Beaver Rd - 4e étage - ste 432
| Taille | 1 546 pi² |
| Terme | Négociable |
| Taux de location | 22,18 $ CAD/pi²/an |
| Utilisation de l’espace | Bureau |
| État | construction complète |
| Disponible | Maintenant |
Office Rate: $15.50 + E/Medical Rate: $20.50 +E.
- Taux de location inscrit plus part proportionnelle des coûts de la consommation électrique
- Entièrement construit comme Bureau standard
- Disposition du plan d’étage ouverte en général
- Convient pour 4 à 13 personnes
3290 W Big Beaver Rd - 4e étage - ste 455
| Taille | 2 220 pi² |
| Terme | Négociable |
| Taux de location | 22,18 $ CAD/pi²/an |
| Utilisation de l’espace | Bureau |
| État | construction complète |
| Disponible | Maintenant |
- Taux de location inscrit plus part proportionnelle des coûts de la consommation électrique
- Entièrement construit comme Bureau standard
- Disposition du plan d’étage ouverte en général
- Convient pour 6 à 18 personnes
3290 W Big Beaver Rd - 5e étage - ste 509
| Taille | 2 415 pi² |
| Terme | Négociable |
| Taux de location | 22,18 $ CAD/pi²/an |
| Utilisation de l’espace | Bureau |
| État | construction partielle |
| Disponible | Maintenant |
- Taux de location inscrit plus part proportionnelle des coûts de la consommation électrique
- Partiellement construit comme Bureau standard
- Disposition du plan d’étage ouverte en général
- Convient pour 7 à 20 personnes
3310 W Big Beaver Rd - 3e étage - ste 301
| Taille | 4 381 pi² |
| Terme | Négociable |
| Taux de location | 22,88 $ CAD/pi²/an |
| Utilisation de l’espace | Bureau |
| État | - |
| Disponible | Maintenant |
- Le taux inscrit peut ne pas comprendre certains services publics, les services de bâtiment et les dépenses immobilières.
- Convient pour 11 à 36 personnes
3310 W Big Beaver Rd - 3e étage - ste 302
| Taille | 3 799 pi² |
| Terme | Négociable |
| Taux de location | 22,18 $ CAD/pi²/an |
| Utilisation de l’espace | Bureau |
| État | construction complète |
| Disponible | Maintenant |
302 and 310 can be combined for a total of 7,099 sf contigous
- Taux de location inscrit plus part proportionnelle des coûts de la consommation électrique
- Entièrement construit comme Bureau standard
- Disposition du plan d’étage ouverte en général
- Convient pour 10 à 31 personnes
- Climatisation centrale
3310 W Big Beaver Rd - 4e étage - ste 410
| Taille | 7 265 pi² |
| Terme | Négociable |
| Taux de location | 22,88 $ CAD/pi²/an |
| Utilisation de l’espace | Bureau |
| État | construction complète |
| Disponible | Maintenant |
- Le taux inscrit peut ne pas comprendre certains services publics, les services de bâtiment et les dépenses immobilières.
- Entièrement construit comme Bureau standard
- Disposition du plan d’étage ouverte en général
- Convient pour 19 à 59 personnes
3310 W Big Beaver Rd - 4e étage - ste 450
| Taille | 21 920 pi² |
| Terme | Négociable |
| Taux de location | 22,88 $ CAD/pi²/an |
| Utilisation de l’espace | Bureau |
| État | construction complète |
| Disponible | Maintenant |
- Le taux inscrit peut ne pas comprendre certains services publics, les services de bâtiment et les dépenses immobilières.
- Entièrement construit comme Bureau standard
- Disposition du plan d’étage ouverte en général
- Convient pour 55 à 176 personnes
SÉLECTIONNER DES LOCATAIRES À CETTE PROPRIÉTÉ
- 99One Staffing
- Il s'agit d'une agence de dotation et de recrutement située à Troy, au Michigan.
- Advisacare
- Les conseillers nationaux en soins de santé à domicile basés à Grand Rapids, au Michigan, ont été fondés en 1997.
- Argus Logistics
- Entreprise d'analyse commerciale et de logistique dont le siège social est situé à Troy, au Michigan.
- Bitron Marketing
- Agence de marketing locale fondée en l'an 2000.
- BizFlexIT, LLC
- Fournisseur de TI détenu et exploité localement axé sur les petites et moyennes entreprises
- Davison & Associates
- Cabinet comptable détenu et exploité localement à Troy depuis 1988
- Everest Title
- Services locaux d'établissement résidentiel à Troy, au Michigan, fondés en 2020.
- Global Enterprise Tech Resource
- Ils se concentrent sur le marché des fournisseurs automobiles de niveau 1 et sur les services de soutien.
- Somerset Gynecology & Obstetrics
- Clinique d'obstétrique et de gynécologie offrant un environnement chaleureux et bienveillant, exploitée localement à Troy, au Michigan.
APERÇU DU PARC
Sheffield Office Park aux 3250, 3290 et 3310 W Big Beaver Road offre un espace de bureau de premier choix avec des suites prêtes à emménager dans un magnifique cadre semblable à un parc. Entouré d'un aménagement paysager mature et de terrains extérieurs pittoresques, ce parc à bureaux de trois bâtiments totalise plus de 500 000 pieds carrés d'espace de classe A avec de nouveaux halls et des améliorations élégantes aux aires communes accentuées par des façades enveloppées de fenêtres. Les suites offrent jusqu'à 21 920 pieds carrés d'espace contigu. Les commodités comprennent une charcuterie moderne avec un espace Starbucks et un salon des locataires, un nouveau centre de conférence, un centre de conditionnement physique, un accès 24 heures sur 24, 7 jours sur 7, une sécurité après les heures normales, une gestion sur place dédiée et un parking abondant. Il existe des possibilités importantes de signalisation dans les bâtiments, en raison de l'exposition à la route Big Beaver, qui fait l'objet d'un trafic intense. Sheffield Office Park se trouve au cœur de Troy, entouré de communautés résidentielles prospères et d'options de magasinage et de restaurants de classe mondiale. Le navettage depuis Sheffield Office Park est un jeu d'enfant, avec l'Interstate 75 à quelques minutes seulement. L'aéroport métropolitain de Detroit et l'aéroport de Detroit City sont à moins d'une heure de route pour un déplacement pratique à l'extérieur de la ville. Lorsque les environnements de travail haut de gamme, la connectivité de premier ordre et la commodité sont essentiels, Sheffield Office Park est la destination idéale.
BROCHURE DU PARC
COMMODITÉS À PROXIMITÉ
RESTAURANTS |
|||
|---|---|---|---|
| Manhattan Deli & Grill | Américain | - | 0 Min. de marche |
| Sheffield Cafe | - | - | 5 Min. de marche |
| Beyond Juicery+Eatery | - | - | 14 Min. de marche |
| Chinatown | - | - | 14 Min. de marche |
| Shake Shack | Restauration rapide | $ | 14 Min. de marche |
| Greens & Grains Salad Company | Salade | - | 14 Min. de marche |
| Starbucks | Café | $ | 14 Min. de marche |
| California Pizza Kitchen | - | - | 14 Min. de marche |
| Haagen-dazs | - | - | 14 Min. de marche |
| J. Alexander's | Grilladerie | $$$ | 14 Min. de marche |
COMMERCE DE DÉTAIL |
||
|---|---|---|
| Allstate Insurance | Assurance | 10 Min. de marche |
| M.A.C | Produits de santé et de beauté | 14 Min. de marche |
| Peloton Interactive | Entraînement physique | 14 Min. de marche |
| ALDO | Chaussures | 14 Min. de marche |
| Warby Parker | Accessoires de lunettes | 14 Min. de marche |
| Chico's | Vêtements pour femmes | 14 Min. de marche |
| Hugo Boss | Vêtements unisexes | 14 Min. de marche |
| Pottery Barn | Accessoires pour la maison | 14 Min. de marche |
| The North Face | Vêtements unisexes | 14 Min. de marche |
HÔTELS |
|
|---|---|
| Home2 Suites by Hilton |
107 Pièces
7 route min.
|
| Marriott |
350 Pièces
7 route min.
|
| Holiday Inn Express |
64 Pièces
8 route min.
|
AGENT DE LOCATION
Lesley Gutman, Senior Vice President
Gutman a joué un rôle clé dans certaines des transactions immobilières commerciales les plus importantes de son marché. Cela comprend la location du parc Oakland Commons de 320 000 pieds carrés à Southfield, au Michigan ; du Sheffield Office Park de 500 000 pieds carrés à Troy, au Michigan ; du Riverside Center de 200 000 pieds carrés à Southfield ; du Michigan ; de 27777 pieds carrés Inkster à Farmington Hills, au Michigan ; de 370 000 pieds carrés. Cambridge Court à Auburn Hills, Michigan ; Westfield de 51 000 pieds carrés à Farmington Hills ; Brookfield de 100 000 pieds carrés à Farmington Hills et College Park Commons de 180 000 pieds carrés à Detroit.
À PROPOS DU PROPRIÉTAIRE
Présenté par
Sheffield | Troy, MI 48084
Hmm, il semble y avoir eu une erreur lors de l’envoi de votre message. Veuillez réessayer.
Merci! Votre message a été envoyé.
































