Votre courriel a été envoyé.
Oxford East 333-335 E 49th St 985 pi² d'espace disponible • Bureau/Médical • New York, NY 10017



Certaines informations ont été traduites automatiquement.
TOUS LES ESPACES DISPONIBLES(1)
Afficher les taux de location en
- ESPACE
- TAILLE
- TERME
- TAUX DE LOCATION
- UTILISATION DE L’ESPACE
- ÉTAT
- DISPONIBLE
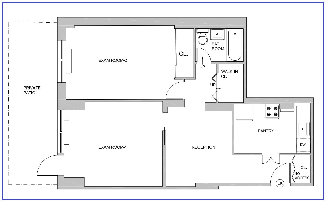
Discover an exceptional first-floor space on the Midtown East Side, ideal for a wide range of professional uses. • Versatile Options: Perfect for medical practices, therapy offices, holistic medicine, wellness centers, beauty services, high-end spas, or traditional office setups. Unique luxury uses such as tattoo artistry or hair studios are also welcome. • Welcoming Entry: A uniformed lobby attendant greets and directs visitors, ensuring a professional first impression. • Outstanding Features: o Full kitchen o Private bathroom with bathtub and shower o Two oversized rooms o Spacious waiting area o Private, cozy backyard retreat • Flexible Layout: Landlord open to modifications for long-term, qualified tenants. • Bright & Inviting: Large windows fill the space with abundant natural light. • This is a rare opportunity to secure a high-end, adaptable space in a prime Midtown East Side location. Broker Incentive: Tenant’s brokers receive 100% of the full commission at lease signing.
- Le taux inscrit peut ne pas comprendre certains services publics, les services de bâtiment et les dépenses immobilières.
- Convient pour 3 à 8 personnes
| Espace | Taille | Terme | Taux de location | Utilisation de l’espace | État | Disponible |
| Hall d’entrée, ste K | 985 pi² | 3-15 ans | 78,00 $ CAD/pi²/an 6,50 $ CAD/pi²/mois 76 828 $ CAD/an 6 402 $ CAD/mois | Bureau/Médical | - | 2025-12-18 |
Hall d’entrée, ste K
| Taille |
| 985 pi² |
| Terme |
| 3-15 ans |
| Taux de location |
| 78,00 $ CAD/pi²/an 6,50 $ CAD/pi²/mois 76 828 $ CAD/an 6 402 $ CAD/mois |
| Utilisation de l’espace |
| Bureau/Médical |
| État |
| - |
| Disponible |
| 2025-12-18 |
Hall d’entrée, ste K
| Taille | 985 pi² |
| Terme | 3-15 ans |
| Taux de location | 78,00 $ CAD/pi²/an |
| Utilisation de l’espace | Bureau/Médical |
| État | - |
| Disponible | 2025-12-18 |
Discover an exceptional first-floor space on the Midtown East Side, ideal for a wide range of professional uses. • Versatile Options: Perfect for medical practices, therapy offices, holistic medicine, wellness centers, beauty services, high-end spas, or traditional office setups. Unique luxury uses such as tattoo artistry or hair studios are also welcome. • Welcoming Entry: A uniformed lobby attendant greets and directs visitors, ensuring a professional first impression. • Outstanding Features: o Full kitchen o Private bathroom with bathtub and shower o Two oversized rooms o Spacious waiting area o Private, cozy backyard retreat • Flexible Layout: Landlord open to modifications for long-term, qualified tenants. • Bright & Inviting: Large windows fill the space with abundant natural light. • This is a rare opportunity to secure a high-end, adaptable space in a prime Midtown East Side location. Broker Incentive: Tenant’s brokers receive 100% of the full commission at lease signing.
- Le taux inscrit peut ne pas comprendre certains services publics, les services de bâtiment et les dépenses immobilières.
- Convient pour 3 à 8 personnes
FAITS SUR LA PROPRIÉTÉ
| Superficie totale disponible | 985 pi² | Style d’appartement | De hauteur moyenne |
| Nombre d’unités | 204 | Taille du bâtiment | 177 380 pi² |
| Type de propriété | Immeuble residentiel | Année de construction | 1965 |
| Sous-type de propriété | Appartement |
| Superficie totale disponible | 985 pi² |
| Nombre d’unités | 204 |
| Type de propriété | Immeuble residentiel |
| Sous-type de propriété | Appartement |
| Style d’appartement | De hauteur moyenne |
| Taille du bâtiment | 177 380 pi² |
| Année de construction | 1965 |
Présenté par
Oxford East | 333-335 E 49th St
Hmm, il semble y avoir eu une erreur lors de l’envoi de votre message. Veuillez réessayer.
Merci! Votre message a été envoyé.



