Votre courriel a été envoyé.
Civic Center Office Plaza 33300 5 Mile Rd 1 000–2 500 pi² d'espace disponible • Bureau • Livonia, MI 48154



Certaines informations ont été traduites automatiquement.
Faits saillants de la sous-location
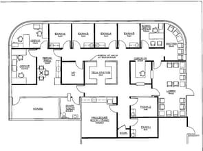
- Recently renovated first-floor medical suite with modern finishes and functional layout.
- Prominent location at the corner of Five Mile and Farmington Road with easy access to I-96 and I-275.
- Close proximity to major healthcare facilities including Trinity Health Livonia Hospital and Henry Ford Medical Center.
- Flexible square footage options from 1,000 to 2,500 SF for shared or co-working medical use.
- Ample surface parking with a ratio of 4.23 spaces per 1,000 SF.
- Immediate occupancy available under full gross lease terms.
Tous les espaces disponibles(1)
Afficher les taux de location en
- Espace
- Taille
- Terme
- Taux de location
- Utilisation de l’espace
- Aménagement
- Disponible
Rare medical shared /co-working sublease available. Recently renovated first floor medical suite, prominently located in main building lobby. Conveniently location with quick access to I-96 and I-275. Located within close proximity to Trinity Health Livonia Hospital, Henry Ford Medical Center - Livonia and Corewell Farmington Hills.
- Espace de sous-location disponible auprès du locataire actuel
- Entièrement construit comme Bureau standard
- Convient pour 3 à 20 personnes
- Aire de réception
- Salle de bains privée
- Medical Co-Work Space
- Fully Renovated Medical Office
- Le taux comprend les services publics, les services de bâtiment et les dépenses immobilières.
- Disposition du plan d’étage ouverte en général
- Air central et chauffage
- Salle d’impression/Photocopie
- Détecteur de fumée
- Flexible Square Footage Options
| Espace | Taille | Terme | Taux de location | Utilisation de l’espace | Aménagement | Disponible |
| 1er étage, ste 106 | 1 000 à 2 500 pi² | Négociable | 30,61 $ CAD/pi²/an 2,55 $ CAD/pi²/mois 76 529 $ CAD/an 6 377 $ CAD/mois | Bureau | construction complète | Maintenant |
1er étage, ste 106
| Taille |
| 1 000 à 2 500 pi² |
| Terme |
| Négociable |
| Taux de location |
| 30,61 $ CAD/pi²/an 2,55 $ CAD/pi²/mois 76 529 $ CAD/an 6 377 $ CAD/mois |
| Utilisation de l’espace |
| Bureau |
| Aménagement |
| construction complète |
| Disponible |
| Maintenant |
1er étage, ste 106
| Taille | 1 000 à 2 500 pi² |
| Terme | Négociable |
| Taux de location | 30,61 $ CAD/pi²/an |
| Utilisation de l’espace | Bureau |
| Aménagement | construction complète |
| Disponible | Maintenant |
Rare medical shared /co-working sublease available. Recently renovated first floor medical suite, prominently located in main building lobby. Conveniently location with quick access to I-96 and I-275. Located within close proximity to Trinity Health Livonia Hospital, Henry Ford Medical Center - Livonia and Corewell Farmington Hills.
- Espace de sous-location disponible auprès du locataire actuel
- Le taux comprend les services publics, les services de bâtiment et les dépenses immobilières.
- Entièrement construit comme Bureau standard
- Disposition du plan d’étage ouverte en général
- Convient pour 3 à 20 personnes
- Air central et chauffage
- Aire de réception
- Salle d’impression/Photocopie
- Salle de bains privée
- Détecteur de fumée
- Medical Co-Work Space
- Flexible Square Footage Options
- Fully Renovated Medical Office
Aperçu de la propriété
This recently renovated medical office building offers a rare sublease opportunity in a highly accessible Livonia location. The available space is a first-floor medical suite situated prominently near the main building lobby, providing excellent visibility and convenience for patients and staff. Flexible square footage options ranging from 1,000 to 2,500 square feet make this an ideal solution for medical professionals seeking a shared or co-working environment. The property features a modernized interior with updated finishes, multiple exam rooms, and a functional layout designed to support a variety of medical practices. Located at the corner of Five Mile and Farmington Road, the building offers quick access to I-96 and I-275, ensuring strong regional connectivity. Ample surface parking is available at a ratio of 4.23 spaces per 1,000 square feet, accommodating both staff and patient needs.
- Atrium
- Ligne d'autobus
- Système de sécurité
- Affichage
- Entreposage sécurisé
- Climatisation
Faits sur la propriété
Sélectionner des locataires
- Étage
- Nom du locataire
- Secteur
- 1ᵉʳ
- Alleviate Acupuncture Wellness Clinic
- Soins de santé et assistance sociale
- 1ᵉʳ
- Consultants in Ophthalmic & Facial Plastic Surgery
- Soins de santé et assistance sociale
- 1ᵉʳ
- Fried & Associates Pc
- Services professionnels, scientifiques et techniques
- 2ᵉ
- Livonia Chamber Of Commerce
- Administration publique
- 2ᵉ
- Lmr & Associates Pllc
- Services professionnels, scientifiques et techniques
- 1ᵉʳ
- Meakin & Associates Inc
- Finance et assurances
- 2ᵉ
- Oakland Psychological
- Soins de santé et assistance sociale
- 2ᵉ
- Olympia Medical
- Soins de santé et assistance sociale
- Multiple
- Title One
- Services professionnels, scientifiques et techniques
- 1ᵉʳ
- Union Sorters of America
- Services professionnels, scientifiques et techniques
Présenté par
Civic Center Office Plaza | 33300 5 Mile Rd
Hmm, il semble y avoir eu une erreur lors de l’envoi de votre message. Veuillez réessayer.
Merci! Votre message a été envoyé.


