Votre courriel a été envoyé.
Certaines informations ont été traduites automatiquement.
Faits saillants du parc
- Prime Redwood City Location: Central access to major thoroughfares and public transit
- Surrounded by Amenities: Walkable to over 30 restaurants, retail stores, and automotive services, enhancing work-life balance.
- Prime Redwood City Location: Central access to major thoroughfares and public transit.
- Flexible Suite Sizes: Units range from ±1,713 SF to ±9,284 SF, with options to combine spaces for larger requirements.
- Call listing brokers for more information
- Call listing brokers for more information.
Faits sur le parc
| Superficie totale disponible | 17 229 pi² | Type de parc | Parc industriel |
| Max. contigu | 12 788 pi² |
| Superficie totale disponible | 17 229 pi² |
| Max. contigu | 12 788 pi² |
| Type de parc | Parc industriel |
Tous les espaces disponibles(5)
Afficher les taux de location en
- Espace
- Taille
- Terme
- Taux de location
- Utilisation de l’espace
- Aménagement
- Disponible
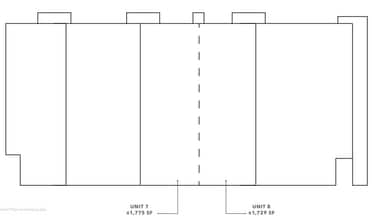
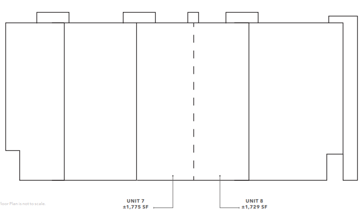
A first-floor unit with a practical layout, ideal for businesses seeking visibility and accessibility. Can be combined with Unit 8 or Unit 10 for larger requirements.
- Peut être associé à un ou plusieurs espaces supplémentaires pour obtenir jusqu’à 12 788 pi² d’espace adjacent.
- Call listing brokers for more information
Unit 8 offers a similar configuration to Unit 7, with the option to combine for expanded space. Can be combined with Unit 7 or Unit 10 for larger requirements.
- Peut être associé à un ou plusieurs espaces supplémentaires pour obtenir jusqu’à 12 788 pi² d’espace adjacent.
- Call listing brokers for more information
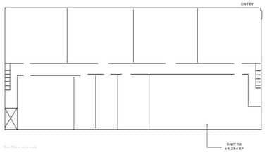
A substantial second-floor suite, perfect for those needing extensive open-plan space. Can be combined with Units 7 and 8 for a total of ±12,788 SF.
- Peut être associé à un ou plusieurs espaces supplémentaires pour obtenir jusqu’à 12 788 pi² d’espace adjacent.
- Call listing brokers for more information
| Espace | Taille | Terme | Taux de location | Utilisation de l’espace | Aménagement | Disponible |
| 1er étage - 7 | 1 775 pi² | Négociable | Sur demande Sur demande Sur demande Sur demande | Industriel | construction partielle | Maintenant |
| 1er étage - 8 | 1 729 pi² | Négociable | Sur demande Sur demande Sur demande Sur demande | Industriel | - | Maintenant |
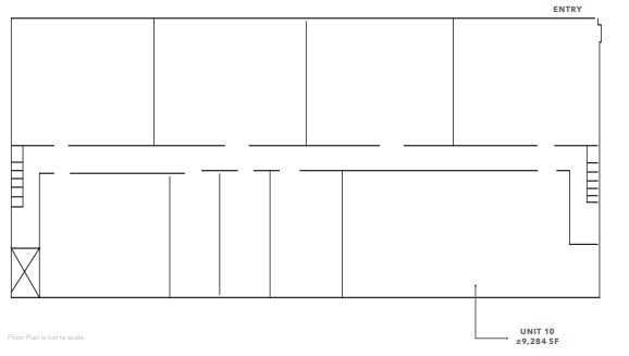
| 2e étage - 10 | 9 284 pi² | Négociable | Sur demande Sur demande Sur demande Sur demande | Industriel | construction partielle | Maintenant |
335 Convention Way - 1er étage - 7
335 Convention Way - 1er étage - 8
335 Convention Way - 2e étage - 10
- Espace
- Taille
- Terme
- Taux de location
- Utilisation de l’espace
- Aménagement
- Disponible
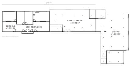
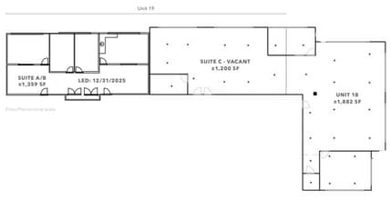
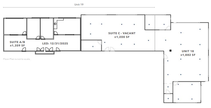
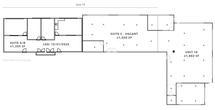
1,882 SF of Industrial/Office space available for lease
- Convient pour 5 à 16 personnes
- Call listing brokers for more information
Located on the second floor, this suite provides a generous open area suitable for collaborative work or flexible office configurations.
- Convient pour 7 à 21 personnes
- Call listing brokers for more information
- Bureaux partitionnés
| Espace | Taille | Terme | Taux de location | Utilisation de l’espace | Aménagement | Disponible |
| 2e étage, ste 18 | 1 882 pi² | Négociable | Sur demande Sur demande Sur demande Sur demande | Bureau | - | Maintenant |
| 2e étage, ste 19 | 2 559 pi² | Négociable | Sur demande Sur demande Sur demande Sur demande | Bureau | - | Maintenant |
260 Main St - 2e étage - ste 18
260 Main St - 2e étage - ste 19
335 Convention Way - 1er étage - 7
| Taille | 1 775 pi² |
| Terme | Négociable |
| Taux de location | Sur demande |
| Utilisation de l’espace | Industriel |
| Aménagement | construction partielle |
| Disponible | Maintenant |
A first-floor unit with a practical layout, ideal for businesses seeking visibility and accessibility. Can be combined with Unit 8 or Unit 10 for larger requirements.
- Peut être associé à un ou plusieurs espaces supplémentaires pour obtenir jusqu’à 12 788 pi² d’espace adjacent.
- Call listing brokers for more information
335 Convention Way - 1er étage - 8
| Taille | 1 729 pi² |
| Terme | Négociable |
| Taux de location | Sur demande |
| Utilisation de l’espace | Industriel |
| Aménagement | - |
| Disponible | Maintenant |
Unit 8 offers a similar configuration to Unit 7, with the option to combine for expanded space. Can be combined with Unit 7 or Unit 10 for larger requirements.
- Peut être associé à un ou plusieurs espaces supplémentaires pour obtenir jusqu’à 12 788 pi² d’espace adjacent.
- Call listing brokers for more information
335 Convention Way - 2e étage - 10
| Taille | 9 284 pi² |
| Terme | Négociable |
| Taux de location | Sur demande |
| Utilisation de l’espace | Industriel |
| Aménagement | construction partielle |
| Disponible | Maintenant |
A substantial second-floor suite, perfect for those needing extensive open-plan space. Can be combined with Units 7 and 8 for a total of ±12,788 SF.
- Peut être associé à un ou plusieurs espaces supplémentaires pour obtenir jusqu’à 12 788 pi² d’espace adjacent.
- Call listing brokers for more information
260 Main St - 2e étage - ste 18
| Taille | 1 882 pi² |
| Terme | Négociable |
| Taux de location | Sur demande |
| Utilisation de l’espace | Bureau |
| Aménagement | - |
| Disponible | Maintenant |
1,882 SF of Industrial/Office space available for lease
- Convient pour 5 à 16 personnes
- Call listing brokers for more information
260 Main St - 2e étage - ste 19
| Taille | 2 559 pi² |
| Terme | Négociable |
| Taux de location | Sur demande |
| Utilisation de l’espace | Bureau |
| Aménagement | - |
| Disponible | Maintenant |
Located on the second floor, this suite provides a generous open area suitable for collaborative work or flexible office configurations.
- Convient pour 7 à 21 personnes
- Bureaux partitionnés
- Call listing brokers for more information
Sélectionner des locataires à cette propriété
- Étage
- Nom du locataire
- Secteur
- 1ᵉʳ
- Ams Systems Inc
- Fabrication
- 1ᵉʳ
- California Consumer Lending
- Finance et assurances
- 2ᵉ
- Insurance By Castle
- Finance et assurances
- 2ᵉ
- Neo Horn
- Services professionnels, scientifiques et techniques
- 1ᵉʳ
- Open Canopy
- -
- 2ᵉ
- Peninsula Rsi Chiropractic Wellness Center
- Détaillant
- 1ᵉʳ
- Private Lender Link
- -
- 1ᵉʳ
- San Mateo County Firefighters IAFF Local 2400
- Administration publique
- 1ᵉʳ
- Studebaker's West
- Détaillant
- 2ᵉ
- Sumologic Inc.
- -
Aperçu du parc
Brugger Plaza propose une sélection de condos industriels et de bureaux à louer à Redwood City, CA, situés au 200 & 260 Main Street et au 335 & 345 Convention Way. La propriété est entourée d'un mélange dynamique d'aménagements, y compris des restaurants, des commerces de détail et des services automobiles, ce qui en fait un emplacement idéal pour les entreprises recherchant commodité et accessibilité.
Présenté par
Brugger Plaza | Redwood City, CA 94063
Hmm, il semble y avoir eu une erreur lors de l’envoi de votre message. Veuillez réessayer.
Merci! Votre message a été envoyé.














