Se Connecter/S’inscrire
Votre courriel a été envoyé.
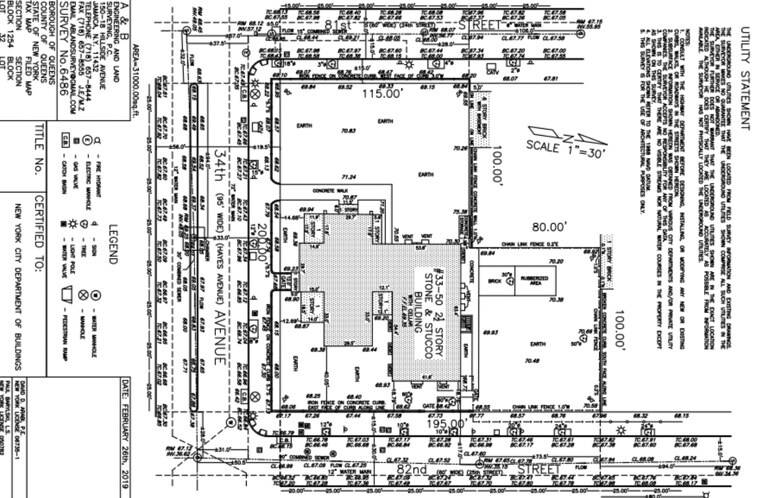
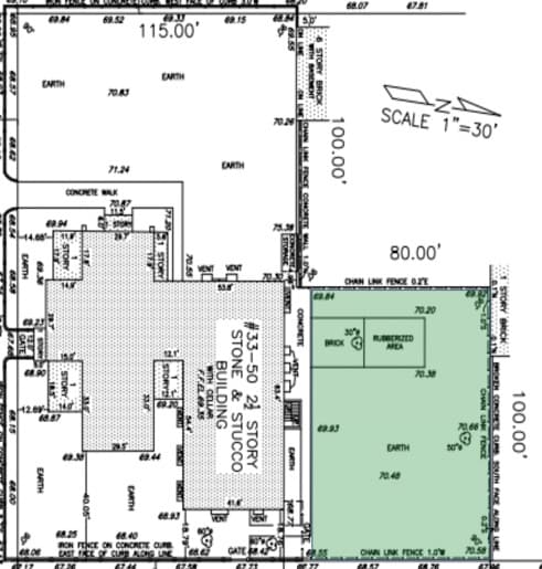
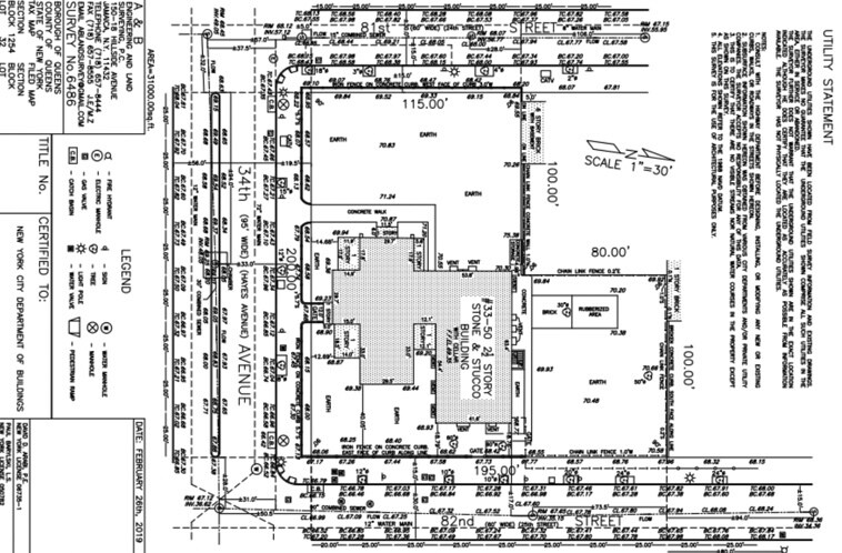
3350 82nd St - Jackson Heights Development Site Lot • Terrain commercial • 0,29 Acres • 8 068 840 $ CAD • Jackson Heights, NY 11372



Certaines informations ont été traduites automatiquement.
Résumé de l'annonce
Veuillez communiquer avec nous pour obtenir des renseignements détaillés sur la propriété
Faits sur la propriété
| Prix | 8 068 840 $ CAD | Sous-type de propriété | Terrain commercial |
| Type de vente | Investissement | Taille totale du lot | 0,29 AC |
| Nombre de lots | 1 | Zone de développement économique |
Oui
|
| Type de propriété | Terrain | ||
| Zonage | R7-1 - R7-1 | ||
| Prix | 8 068 840 $ CAD |
| Type de vente | Investissement |
| Nombre de lots | 1 |
| Type de propriété | Terrain |
| Sous-type de propriété | Terrain commercial |
| Taille totale du lot | 0,29 AC |
| Zone de développement économique |
Oui |
| Zonage | R7-1 - R7-1 |
1 Lot disponible
Lot
| Prix | 8 068 840 $ CAD | Taille du lot | 0,29 AC |
| Prix par AC | 28 118 343,28 $ CAD |
| Prix | 8 068 840 $ CAD |
| Prix par AC | 28 118 343,28 $ CAD |
| Taille du lot | 0,29 AC |
Lot SF : 8 000 Terrain vacant Zonage R7-1
1 1
Exceptionnellement praticable à pied
100/100
Moyennement facile d’accès en voiture
60/100
Transports en commun exceptionnels
100/100
Moyennement praticable en vélo
60/100
1 de 5
Vidéos
Visite extérieure 3D Matterport
Visite 3D Matterport
Photos
Vue depuis la rue
Rue
Carte
1 de 1
Présenté par
3350 82nd St - Jackson Heights Development Site
Vous êtes déjà membre? Connectez-vous
Hmm, il semble y avoir eu une erreur lors de l’envoi de votre message. Veuillez réessayer.
Merci! Votre message a été envoyé.
