Se Connecter/S’inscrire
Votre courriel a été envoyé.
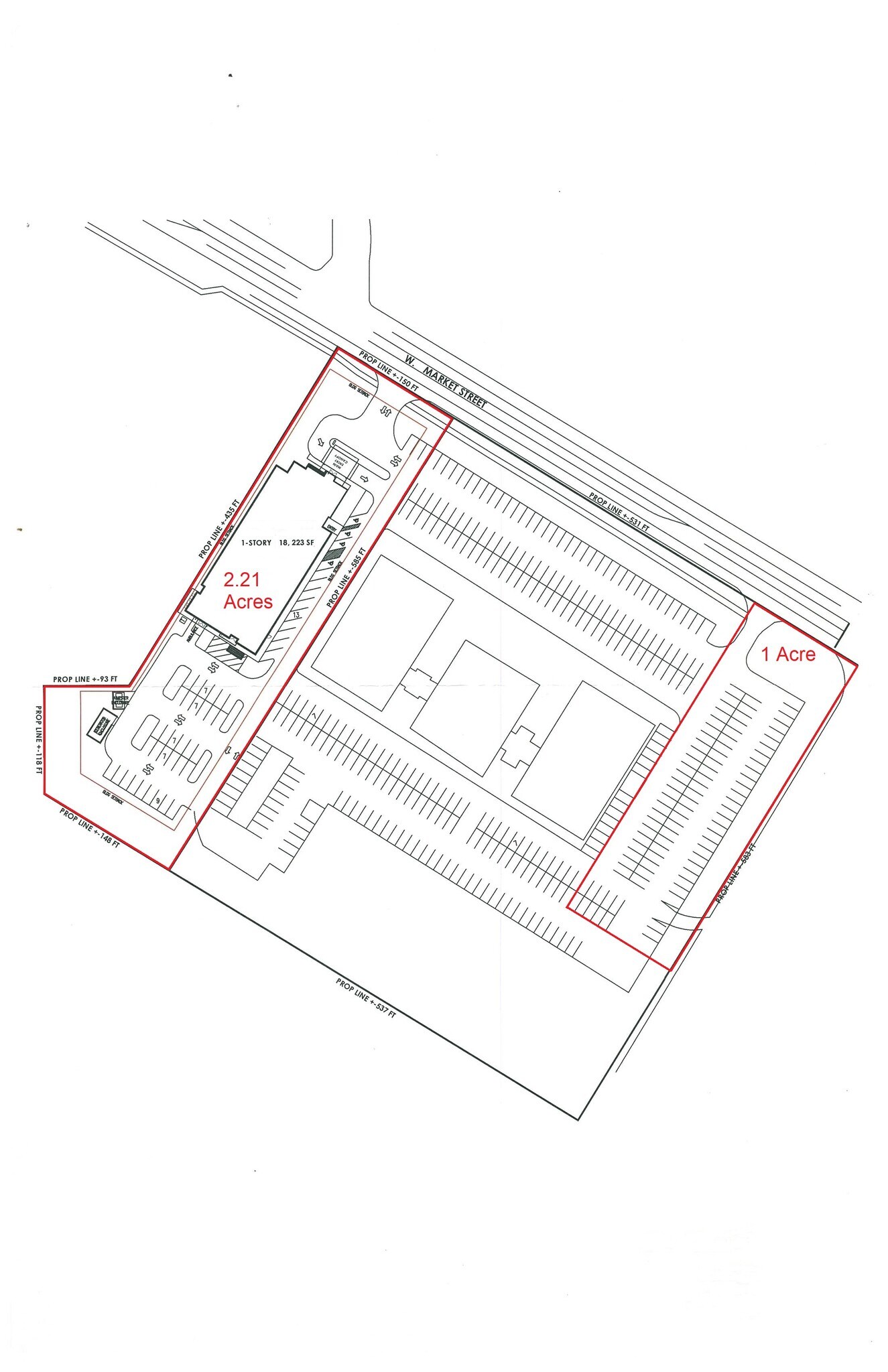
3350 W Market St Lots • Terrain commercial • 1-2,2 Acre • 4 102 890 $-5 128 613 $ CAD par lot • Fairlawn, OH 44333

Certaines informations ont été traduites automatiquement.
Faits saillants de l'investissement
- Situé sur la voie principale de Fairlawns, rue West Market. En face de l'entrée principale du centre commercial Summit (aire de restauration)
Résumé de l'annonce
Disponible à la location, à la vente ou à la construction d'un terrain en fonction de la location
Faits sur la propriété
2 Lots disponibles
Lot 1
| Prix | 4 102 890 $ CAD | Taille du lot | 2,20 AC |
| Prix par AC | 1 864 950,01 $ CAD |
| Prix | 4 102 890 $ CAD |
| Prix par AC | 1 864 950,01 $ CAD |
| Taille du lot | 2,20 AC |
Offert environ 2,12 acres pour la construction de bâtiments sur pied.
Lot 2
| Prix | 5 128 613 $ CAD | Taille du lot | 1,00 AC |
| Prix par AC | 5 128 612,52 $ CAD |
| Prix | 5 128 613 $ CAD |
| Prix par AC | 5 128 612,52 $ CAD |
| Taille du lot | 1,00 AC |
Site d'un acre au coin de la rue en face de l'entrée principale du centre commercial Summit
Description
Situé à l'entrée principale du centre commercial Summit. Sortie signalisée disponible
1 1
Impôts fonciers
| Numéro de lot | 09-02780 | Évaluation des bâtiments | 2 341 865 $ CAD |
| Évaluation du terrain | 745 994 $ CAD | Évaluation totale | 3 087 859 $ CAD |
Impôts fonciers
Numéro de lot
09-02780
Évaluation du terrain
745 994 $ CAD
Évaluation des bâtiments
2 341 865 $ CAD
Évaluation totale
3 087 859 $ CAD
1 de 2
Vidéos
Visite extérieure 3D Matterport
Visite 3D Matterport
Photos
Vue depuis la rue
Rue
Carte
1 de 1
Présenté par
3350 W Market St
Vous êtes déjà membre? Connectez-vous
Hmm, il semble y avoir eu une erreur lors de l’envoi de votre message. Veuillez réessayer.
Merci! Votre message a été envoyé.
Votre message a été envoyé !
Activez votre compte LoopNet dès maintenant pour suivre les propriétés, recevoir des alertes en temps réel, gagner du temps sur vos demandes futures et bien plus encore.
