Votre courriel a été envoyé.
3390 Colton Dr 5 880 pi² d'espace disponible • Bureau • Helena, MT 59602

Certaines informations ont été traduites automatiquement.
Tous les espaces disponibles(1)
Afficher les taux de location en
- Espace
- Taille
- Terme
- Taux de location
- Utilisation de l’espace
- Aménagement
- Disponible
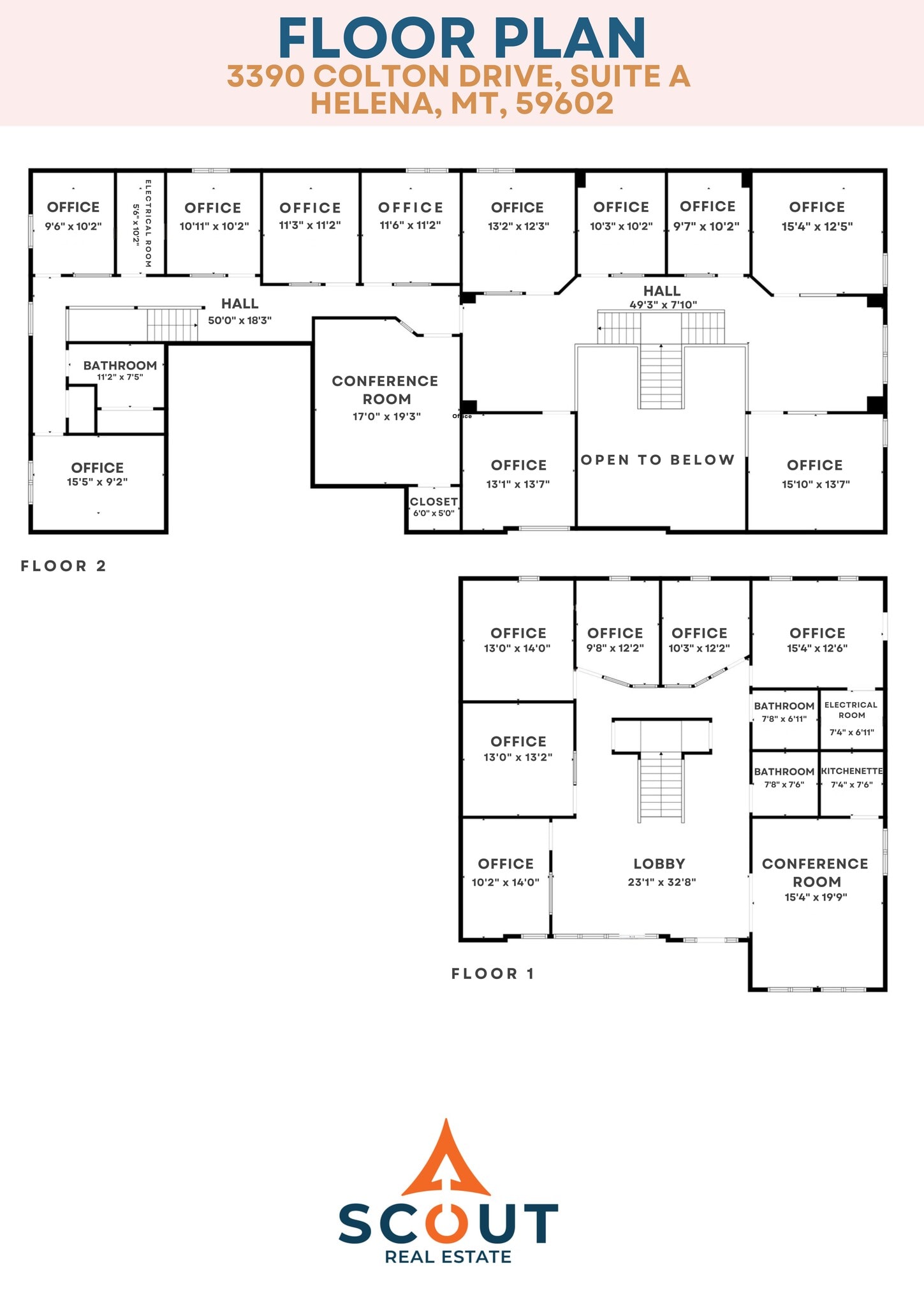
Modern 5,880 sqft office space for lease in Helena, perfectly suited for businesses seeking a professional environment with contemporary amenities. This property features sleek, updated finishes that create an inviting atmosphere, complemented by ample parking and a spacious layout that includes a welcoming lobby area and 17 private offices across 2 floors. The space is designed for collaboration and convenience, offering two conference rooms for meetings and a kitchenette for staff comfort.
- Le taux inscrit peut ne pas comprendre certains services publics, les services de bâtiment et les dépenses immobilières.
- Convient pour 15 à 48 personnes
- 2 salles de conférence
- Partiellement construit comme Bureau standard
- 17 bureaux privés
- Espace en excellent état
| Espace | Taille | Terme | Taux de location | Utilisation de l’espace | Aménagement | Disponible |
| 1er étage, ste A | 5 880 pi² | Négociable | 23,46 $ CAD/pi²/an 1,95 $ CAD/pi²/mois 137 935 $ CAD/an 11 495 $ CAD/mois | Bureau | construction partielle | Maintenant |
1er étage, ste A
| Taille |
| 5 880 pi² |
| Terme |
| Négociable |
| Taux de location |
| 23,46 $ CAD/pi²/an 1,95 $ CAD/pi²/mois 137 935 $ CAD/an 11 495 $ CAD/mois |
| Utilisation de l’espace |
| Bureau |
| Aménagement |
| construction partielle |
| Disponible |
| Maintenant |
1er étage, ste A
| Taille | 5 880 pi² |
| Terme | Négociable |
| Taux de location | 23,46 $ CAD/pi²/an |
| Utilisation de l’espace | Bureau |
| Aménagement | construction partielle |
| Disponible | Maintenant |
Modern 5,880 sqft office space for lease in Helena, perfectly suited for businesses seeking a professional environment with contemporary amenities. This property features sleek, updated finishes that create an inviting atmosphere, complemented by ample parking and a spacious layout that includes a welcoming lobby area and 17 private offices across 2 floors. The space is designed for collaboration and convenience, offering two conference rooms for meetings and a kitchenette for staff comfort.
- Le taux inscrit peut ne pas comprendre certains services publics, les services de bâtiment et les dépenses immobilières.
- Partiellement construit comme Bureau standard
- Convient pour 15 à 48 personnes
- 17 bureaux privés
- 2 salles de conférence
- Espace en excellent état
Faits sur la propriété
Présenté par
Scout Real Estate
3390 Colton Dr
Hmm, il semble y avoir eu une erreur lors de l’envoi de votre message. Veuillez réessayer.
Merci! Votre message a été envoyé.



