Votre courriel a été envoyé.
33939-33955 Harper Ave
Clinton Township, MI 48035
Flex Propriété À louer
·
9 216 pi²


Certaines informations ont été traduites automatiquement.
Faits saillants
- Conveniently located just ½ mile from I-94, providing excellent regional access
- Two 12’ x 12’ grade-level doors and one loading dock for efficient operations.
- Ample on-site parking in a professional campus setting.
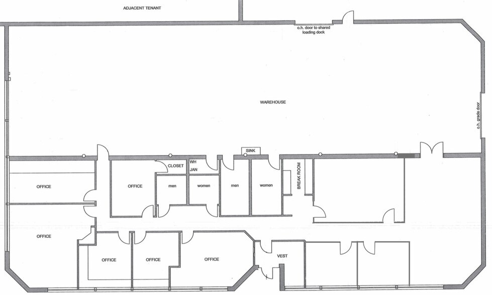
- 9,216 SF available with a balanced mix of office and factory space.
- Landlord has recently updated the interior to enhance functionality.
- Immediate occupancy with modified gross lease terms including taxes.
Caractéristiques
Aperçu de la propriété
This industrial facility offers a highly functional layout in a well-maintained campus setting along Harper Avenue in Clinton Township. The available 9,216 square feet includes an even split of office and factory space, providing flexibility for a range of operational needs. The property features two 12’ x 12’ grade-level doors, one loading dock, and a 14-foot ceiling height, ensuring efficient loading and distribution capabilities. Located just a half mile from I-94, the site provides excellent regional connectivity for businesses requiring quick access to major transportation routes. Ample on-site parking supports both office and industrial users, while recent interior updates by the landlord enhance the overall work environment. The building is equipped with HVAC throughout, metal halide lighting, and four restrooms, creating a comfortable and functional space for employees.
