Se Connecter/S’inscrire
Votre courriel a été envoyé.
34 Rue Blomet 1 259 pi² Commerce de détail Immeuble 75015 Paris 1 529 450 $ CAD (1 214,45 $ CAD/pi²)



Certaines informations ont été traduites automatiquement.
RÉSUMÉ DE L'ANNONCE
Quartier entre la rue Lecourbe et Vaugirard proche du Metro Volontaire.
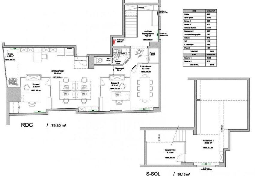
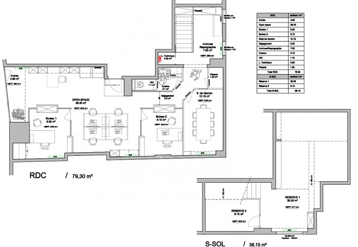
Un local commercial refait neuf en rez de chaussée trés bien aménagé. Un coin cuisine bureaux vitrés. Surface 79 m2 en rez-de-chaussée et 38m2 en sous sol à l'anglaise par escalier agréable ! (5.00 % honoraires TTC à la charge de l'acquéreur.)
Copropriété de 120 lots - dont 55 lots habitation. (Pas de procédure en cours).
Charges annuelles : 5684 euros.
Bien présenté par Agences de France par délégation.
Agences de France – SIREN : 899413603 – Titulaire de la carte T : 29012021000000009 non habilité à percevoir des fonds
Un local commercial refait neuf en rez de chaussée trés bien aménagé. Un coin cuisine bureaux vitrés. Surface 79 m2 en rez-de-chaussée et 38m2 en sous sol à l'anglaise par escalier agréable ! (5.00 % honoraires TTC à la charge de l'acquéreur.)
Copropriété de 120 lots - dont 55 lots habitation. (Pas de procédure en cours).
Charges annuelles : 5684 euros.
Bien présenté par Agences de France par délégation.
Agences de France – SIREN : 899413603 – Titulaire de la carte T : 29012021000000009 non habilité à percevoir des fonds
FAITS SUR LA PROPRIÉTÉ
Type de vente
Propriétaire utilisateur
Type de propriété
Commerce de détail
Sous-type de propriété
Commerce de détail
Taille du bâtiment
1 259 pi²
Classe d’immeuble
C
Année de construction
1965
Prix
1 529 450 $ CAD
Prix par pi²
1 214,45 $ CAD
Location
Unique
Hauteur du bâtiment
12 étages
Coefficient d’occupation des sols de l’immeuble
0,06
Taille du lot
0,45 AC
1 1
PRINCIPAUX DÉTAILLANTS À PROXIMITÉ
1 de 10
VIDÉOS
VISITE EXTÉRIEURE 3D MATTERPORT
VISITE 3D MATTERPORT
PHOTOS
VUE DEPUIS LA RUE
RUE
CARTE
1 de 1
Présenté par
Agences De France
34 Rue Blomet
Vous êtes déjà membre? Connectez-vous
Hmm, il semble y avoir eu une erreur lors de l’envoi de votre message. Veuillez réessayer.
Merci! Votre message a été envoyé.
