Se Connecter/S’inscrire
Votre courriel a été envoyé.
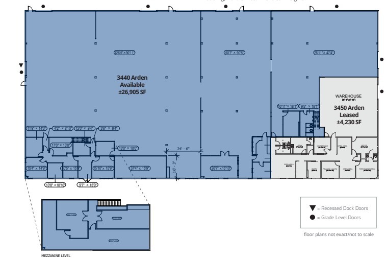
3440-3450 Arden Rd
Hayward, CA 94545
Industriel Propriété À vendre


Certaines informations ont été traduites automatiquement.
FAITS SAILLANTS DE L'INVESTISSEMENT
- Sprinklers
FAITS SUR LA PROPRIÉTÉ
| Type de vente | Investissement ou propriétaire utilisateur | Nombre d’étages | 1 |
| Type de propriété | Industriel | Année de construction | 1979 |
| Sous-type de propriété | Manufacture | Ratio de stationnement | 1,53/1 000 pi² |
| Classe d’immeuble | C | Effacer hauteur du plafond | 18’ |
| Taille du lot | 0,72 AC | Nbre de quais à portes élevées/de chargement | 3 |
| Aire du bâtiment louable | 31 295 pi² | Nbre d’entrées dans les portes/au niveau du sol | 2 |
| Zonage | IP - Industrie légère / Fabrication | ||
| Type de vente | Investissement ou propriétaire utilisateur |
| Type de propriété | Industriel |
| Sous-type de propriété | Manufacture |
| Classe d’immeuble | C |
| Taille du lot | 0,72 AC |
| Aire du bâtiment louable | 31 295 pi² |
| Nombre d’étages | 1 |
| Année de construction | 1979 |
| Ratio de stationnement | 1,53/1 000 pi² |
| Effacer hauteur du plafond | 18’ |
| Nbre de quais à portes élevées/de chargement | 3 |
| Nbre d’entrées dans les portes/au niveau du sol | 2 |
| Zonage | IP - Industrie légère / Fabrication |
COMMODITÉS
- Terrain clôturé
SERVICES PUBLICS
- Eau - Eau de ville
- Égout - Égout de la ville
Impôts fonciers
| Numéro de lot | 461-0016-036-00 | Évaluation des bâtiments | 3 667 128 $ CAD |
| Évaluation du terrain | 6 004 602 $ CAD | Évaluation totale | 9 671 730 $ CAD |
Impôts fonciers
Numéro de lot
461-0016-036-00
Évaluation du terrain
6 004 602 $ CAD
Évaluation des bâtiments
3 667 128 $ CAD
Évaluation totale
9 671 730 $ CAD
1 de 15
VIDÉOS
VISITE EXTÉRIEURE 3D MATTERPORT
VISITE 3D MATTERPORT
PHOTOS
VUE DEPUIS LA RUE
RUE
CARTE
