Votre courriel a été envoyé.
Certaines informations ont été traduites automatiquement.
Caractéristiques
Tous les espaces disponibles(1)
Afficher les taux de location en
- Espace
- Taille
- Terme
- Taux de location
- Utilisation de l’espace
- État
- Disponible
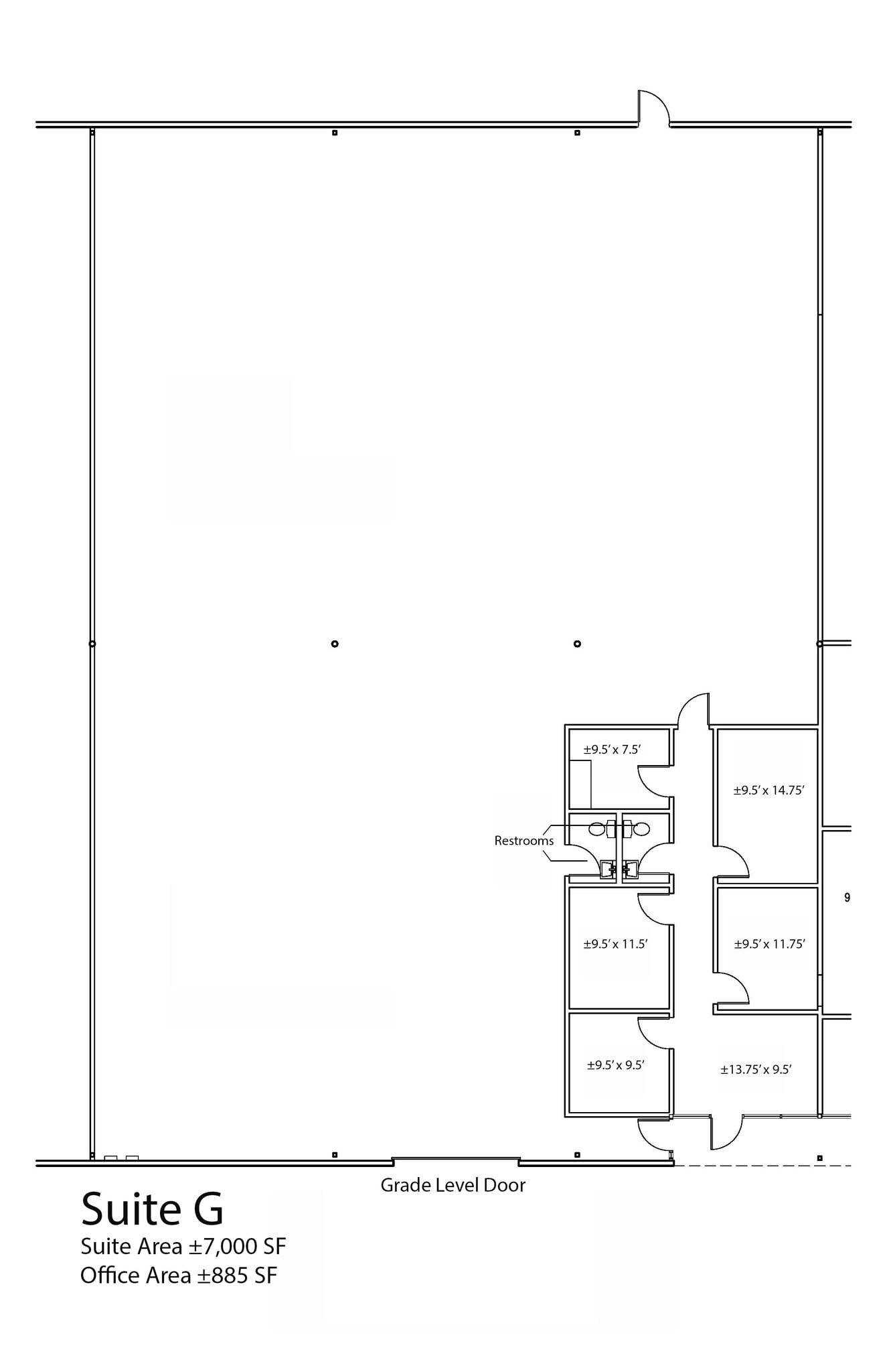
This functional industrial space offers a flexible sublease opportunity in a high-demand central Phoenix location with excellent access to I-10 and I-17. The suite delivers efficient usability with a balanced mix of warehouse and office, featuring a grade-level loading door and an 18-foot clear height that supports a wide range of operational needs. IND PK zoning within the City of Phoenix provides versatility for light industrial, distribution, service, and production users seeking immediate operational capability. Positioned along West Lewis Avenue near North 35th Avenue, the property benefits from ease of circulation, established industrial surroundings, and close proximity to major transportation corridors. The sublease runs through April 2028, offering medium-term stability with the option to pursue a direct long-term agreement with the landlord. This makes the offering ideal for users who want plug-and-play space today with the flexibility to secure future tenancy in a strategic infill location.
- Espace de sous-location disponible auprès du locataire actuel
- Comprend 885 pi² d’espace de bureau dédié
- Option for direct long-term deal
- Central Phoenix infill location
- IND PK zoning versatility
- Le taux inscrit peut ne pas comprendre certains services publics, les services de bâtiment et les dépenses immobilières.
- 1 accès plain-pied
- Grade-level loading door
- Quick access to I-10 and I-17
| Espace | Taille | Terme | Taux de location | Utilisation de l’espace | État | Disponible |
| 1er étage - G | 7 000 pi² | Avr. 2028 | 18,07 $ CAD/pi²/an 1,51 $ CAD/pi²/mois 126 471 $ CAD/an 10 539 $ CAD/mois | Industriel | construction complète | Maintenant |
1er étage - G
| Taille |
| 7 000 pi² |
| Terme |
| Avr. 2028 |
| Taux de location |
| 18,07 $ CAD/pi²/an 1,51 $ CAD/pi²/mois 126 471 $ CAD/an 10 539 $ CAD/mois |
| Utilisation de l’espace |
| Industriel |
| État |
| construction complète |
| Disponible |
| Maintenant |
1er étage - G
| Taille | 7 000 pi² |
| Terme | Avr. 2028 |
| Taux de location | 18,07 $ CAD/pi²/an |
| Utilisation de l’espace | Industriel |
| État | construction complète |
| Disponible | Maintenant |
This functional industrial space offers a flexible sublease opportunity in a high-demand central Phoenix location with excellent access to I-10 and I-17. The suite delivers efficient usability with a balanced mix of warehouse and office, featuring a grade-level loading door and an 18-foot clear height that supports a wide range of operational needs. IND PK zoning within the City of Phoenix provides versatility for light industrial, distribution, service, and production users seeking immediate operational capability. Positioned along West Lewis Avenue near North 35th Avenue, the property benefits from ease of circulation, established industrial surroundings, and close proximity to major transportation corridors. The sublease runs through April 2028, offering medium-term stability with the option to pursue a direct long-term agreement with the landlord. This makes the offering ideal for users who want plug-and-play space today with the flexibility to secure future tenancy in a strategic infill location.
- Espace de sous-location disponible auprès du locataire actuel
- Le taux inscrit peut ne pas comprendre certains services publics, les services de bâtiment et les dépenses immobilières.
- Comprend 885 pi² d’espace de bureau dédié
- 1 accès plain-pied
- Option for direct long-term deal
- Grade-level loading door
- Central Phoenix infill location
- Quick access to I-10 and I-17
- IND PK zoning versatility
Faits sur l’installation entrepôt
Sélectionner des locataires
- Étage
- Nom du locataire
- 1ᵉʳ
- Showcase Shutters
Présenté par
West | 3440 W Lewis Ave
Hmm, il semble y avoir eu une erreur lors de l’envoi de votre message. Veuillez réessayer.
Merci! Votre message a été envoyé.






