Votre courriel a été envoyé.
3450 Uptown Blvd 1 676–6 285 pi² d'espace disponible • Bureau • Victoria, BC V8Z 0B9



Certaines informations ont été traduites automatiquement.
Tous les espaces disponibles(2)
Afficher les taux de location en
- Espace
- Taille
- Terme
- Taux de location
- Utilisation de l’espace
- Aménagement
- Disponible
Les locataires bénéficient d'un ratio de stationnement généreux, ainsi que d'un stationnement pour visiteurs en abondance (jusqu'à 4 heures gratuites) dans ce quartier urbain de style village en plein air. Idéalement situé à proximité du centre-ville de Victoria au sud, de l'aéroport de Victoria et du terminal de BC Ferries au nord. Le sentier Galloping Goose, qui relie les communautés de l'ouest à Victoria, passe à côté de la propriété sur le côté nord, et de nombreuses lignes de bus desservent la propriété, ce qui est pratique pour les navetteurs. Les détaillants sur place incluent Whole Foods, Best Buy, Starbucks, Brown's Social House, Noodle Box, Fitness World, Shopper's Drug Mart, Walmart et bien d'autres, faisant d'Uptown une destination unique pour les locataires de bureaux, leurs clients et visiteurs.
- Le taux de location ne comprend pas les services publics, les services de bâtiment ou les dépenses immobilières.
- Air central et chauffage
- Possibilités de signalisation extérieure
- Blocage sécurisé des bicyclettes et douches
- Disposition du plan d’étage ouverte en général
- Salle de bains privée
- Toilettes accessibles aux extrémités nord et sud
- Chargeur rapide pour voiture électrique
Les locataires bénéficient d'un ratio de stationnement généreux, ainsi que d'un vaste stationnement pour visiteurs (jusqu'à 4 heures gratuites) dans ce quartier urbain de style village en plein air. Idéalement situé à proximité du centre-ville de Victoria au sud, de l'aéroport de Victoria et du terminal de BC Ferries au nord. Le sentier Galloping Goose, qui relie les communautés de l'ouest à Victoria, longe la propriété à l'extrémité nord, et de nombreuses lignes de bus desservent la propriété, ce qui est pratique pour les navetteurs. Les détaillants sur place incluent Whole Foods, Best Buy, Starbucks, Brown's Social House, Noodle Box, Fitness World, Shopper's Drug Mart, Walmart et bien d'autres, faisant d'Uptown une destination unique pour les locataires de bureaux, leurs clients et visiteurs.
- Le taux de location ne comprend pas les services publics, les services de bâtiment ou les dépenses immobilières.
- Air central et chauffage
- Possibilités de signalisation extérieure
- Blocage sécurisé des bicyclettes et douches
- Disposition du plan d’étage ouverte en général
- Salle de bains privée
- Toilettes accessibles aux extrémités nord et sud
- Chargeur rapide pour voiture électrique
| Espace | Taille | Terme | Taux de location | Utilisation de l’espace | Aménagement | Disponible |
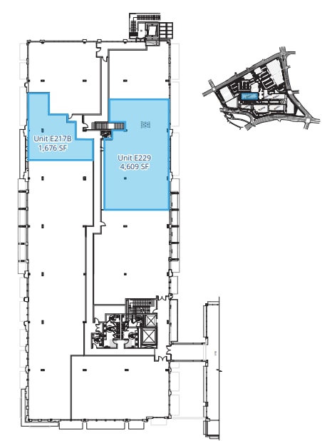
| 1er étage, ste E217B | 1 676 pi² | 1-10 ans | 34,00 $ CAD/pi²/an 2,83 $ CAD/pi²/mois 56 984 $ CAD/an 4 749 $ CAD/mois | Bureau | espace cloisonné | Maintenant |
| 1er étage, ste E229 | 4 609 pi² | 1-10 ans | 34,00 $ CAD/pi²/an 2,83 $ CAD/pi²/mois 156 706 $ CAD/an 13 059 $ CAD/mois | Bureau | espace cloisonné | Maintenant |
1er étage, ste E217B
| Taille |
| 1 676 pi² |
| Terme |
| 1-10 ans |
| Taux de location |
| 34,00 $ CAD/pi²/an 2,83 $ CAD/pi²/mois 56 984 $ CAD/an 4 749 $ CAD/mois |
| Utilisation de l’espace |
| Bureau |
| Aménagement |
| espace cloisonné |
| Disponible |
| Maintenant |
1er étage, ste E229
| Taille |
| 4 609 pi² |
| Terme |
| 1-10 ans |
| Taux de location |
| 34,00 $ CAD/pi²/an 2,83 $ CAD/pi²/mois 156 706 $ CAD/an 13 059 $ CAD/mois |
| Utilisation de l’espace |
| Bureau |
| Aménagement |
| espace cloisonné |
| Disponible |
| Maintenant |
1er étage, ste E217B
| Taille | 1 676 pi² |
| Terme | 1-10 ans |
| Taux de location | 34,00 $ CAD/pi²/an |
| Utilisation de l’espace | Bureau |
| Aménagement | espace cloisonné |
| Disponible | Maintenant |
Les locataires bénéficient d'un ratio de stationnement généreux, ainsi que d'un stationnement pour visiteurs en abondance (jusqu'à 4 heures gratuites) dans ce quartier urbain de style village en plein air. Idéalement situé à proximité du centre-ville de Victoria au sud, de l'aéroport de Victoria et du terminal de BC Ferries au nord. Le sentier Galloping Goose, qui relie les communautés de l'ouest à Victoria, passe à côté de la propriété sur le côté nord, et de nombreuses lignes de bus desservent la propriété, ce qui est pratique pour les navetteurs. Les détaillants sur place incluent Whole Foods, Best Buy, Starbucks, Brown's Social House, Noodle Box, Fitness World, Shopper's Drug Mart, Walmart et bien d'autres, faisant d'Uptown une destination unique pour les locataires de bureaux, leurs clients et visiteurs.
- Le taux de location ne comprend pas les services publics, les services de bâtiment ou les dépenses immobilières.
- Disposition du plan d’étage ouverte en général
- Air central et chauffage
- Salle de bains privée
- Possibilités de signalisation extérieure
- Toilettes accessibles aux extrémités nord et sud
- Blocage sécurisé des bicyclettes et douches
- Chargeur rapide pour voiture électrique
1er étage, ste E229
| Taille | 4 609 pi² |
| Terme | 1-10 ans |
| Taux de location | 34,00 $ CAD/pi²/an |
| Utilisation de l’espace | Bureau |
| Aménagement | espace cloisonné |
| Disponible | Maintenant |
Les locataires bénéficient d'un ratio de stationnement généreux, ainsi que d'un vaste stationnement pour visiteurs (jusqu'à 4 heures gratuites) dans ce quartier urbain de style village en plein air. Idéalement situé à proximité du centre-ville de Victoria au sud, de l'aéroport de Victoria et du terminal de BC Ferries au nord. Le sentier Galloping Goose, qui relie les communautés de l'ouest à Victoria, longe la propriété à l'extrémité nord, et de nombreuses lignes de bus desservent la propriété, ce qui est pratique pour les navetteurs. Les détaillants sur place incluent Whole Foods, Best Buy, Starbucks, Brown's Social House, Noodle Box, Fitness World, Shopper's Drug Mart, Walmart et bien d'autres, faisant d'Uptown une destination unique pour les locataires de bureaux, leurs clients et visiteurs.
- Le taux de location ne comprend pas les services publics, les services de bâtiment ou les dépenses immobilières.
- Disposition du plan d’étage ouverte en général
- Air central et chauffage
- Salle de bains privée
- Possibilités de signalisation extérieure
- Toilettes accessibles aux extrémités nord et sud
- Blocage sécurisé des bicyclettes et douches
- Chargeur rapide pour voiture électrique
Caractéristiques et commodités
- Ligne d'autobus
- Affichage
- Climatisation
Faits sur la propriété
Sélectionner des locataires
- Étage
- Nom du locataire
- Secteur
- 1ᵉʳ
- Accenure
- -
- 4ᵉ
- BC Assessment
- Immobilier
- Multiple
- Best Buy
- Détaillant
- 3ᵉ
- Compugen Inc
- Services professionnels, scientifiques et techniques
- 1ᵉʳ
- Freedom Mobile
- Information
- 1ᵉʳ
- Good Earth Coffeehouse
- Hébergement et services alimentaires
- 1ᵉʳ
- Optiks International
- Détaillant
- Inconnu
- Regus
- Immobilier
- 1ᵉʳ
- Smile Esthetics
- Soins de santé et assistance sociale
- 1ᵉʳ
- Urban Barn
- Détaillant
Présenté par
3450 Uptown Blvd
Hmm, il semble y avoir eu une erreur lors de l’envoi de votre message. Veuillez réessayer.
Merci! Votre message a été envoyé.


