Votre courriel a été envoyé.
New 20,000 SF Flex Building 3456 Black and Decker Rd 20 000 pi² d'espace disponible • Flex • Hope Mills, NC 28348



Certaines informations ont été traduites automatiquement.
Faits saillants
- Espace flexible de 20 000 pieds carrés, adapté aux besoins
- Zonage M (P) dans le district Airport Overlay
- Achèvement prévu en 2026
- Près de l'aéroport régional de Fayetteville, autoroutes
Tous les espaces disponibles(1)
Afficher les taux de location en
- Espace
- Taille
- Terme
- Taux de location
- Utilisation de l’espace
- État
- Disponible
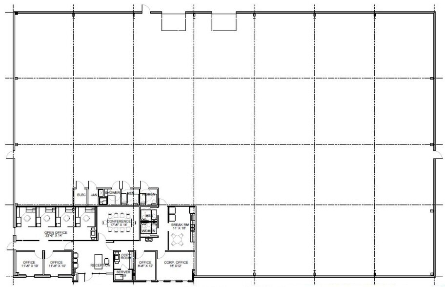
This 20,000-square-foot flex building, projected for completion in 2026, is available as a customizable build-to-suit space designed to meet the unique office and warehouse needs of its single tenant. The facility offers a versatile layout for light industrial use, with zoning classified as M(P) and located within the Airport Overlay district. Its design and location will serve businesses looking to optimize logistics and workspace efficiency near essential transportation routes and amenities. Positioned near the Fayetteville Regional Airport and less than two miles from key routes like Business 95/Hwy 301, Hwy 87, and I-95, the site ensures seamless regional and interstate connectivity, enhancing operational convenience for clients and suppliers alike. The surrounding area offers an appealing mix of convenience and accessibility. Employees will benefit from close proximity to a variety of retailers, including Walmart, a selection of popular dining options, and nearby residential neighborhoods, making commutes and day-to-day needs easily manageable. With a robust local labor force and an average household income of approximately $72,450 within a five-mile radius, the property is well-situated to attract a capable workforce while ensuring access to essential services. This strategic location fosters a productive work environment within a vibrant and growing community.
- Le taux de location ne comprend pas les services publics, les services de bâtiment ou les dépenses immobilières.
- Espace flexible de 20 000 pieds carrés, adapté aux besoins
- Zonage M (P) dans le district Airport Overlay
- Proximité des détaillants, des restaurants et des zones résidentielles
- Espace en excellent état
- Achèvement prévu en 2026
- Près de l'aéroport régional de Fayetteville, autoroutes
| Espace | Taille | Terme | Taux de location | Utilisation de l’espace | État | Disponible |
| 1er étage - 3456 | 20 000 pi² | 10-15 ans | 20,50 $ CAD/pi²/an 1,71 $ CAD/pi²/mois 410 040 $ CAD/an 34 170 $ CAD/mois | Flex | selon spécifications | Maintenant |
1er étage - 3456
| Taille |
| 20 000 pi² |
| Terme |
| 10-15 ans |
| Taux de location |
| 20,50 $ CAD/pi²/an 1,71 $ CAD/pi²/mois 410 040 $ CAD/an 34 170 $ CAD/mois |
| Utilisation de l’espace |
| Flex |
| État |
| selon spécifications |
| Disponible |
| Maintenant |
1er étage - 3456
| Taille | 20 000 pi² |
| Terme | 10-15 ans |
| Taux de location | 20,50 $ CAD/pi²/an |
| Utilisation de l’espace | Flex |
| État | selon spécifications |
| Disponible | Maintenant |
This 20,000-square-foot flex building, projected for completion in 2026, is available as a customizable build-to-suit space designed to meet the unique office and warehouse needs of its single tenant. The facility offers a versatile layout for light industrial use, with zoning classified as M(P) and located within the Airport Overlay district. Its design and location will serve businesses looking to optimize logistics and workspace efficiency near essential transportation routes and amenities. Positioned near the Fayetteville Regional Airport and less than two miles from key routes like Business 95/Hwy 301, Hwy 87, and I-95, the site ensures seamless regional and interstate connectivity, enhancing operational convenience for clients and suppliers alike. The surrounding area offers an appealing mix of convenience and accessibility. Employees will benefit from close proximity to a variety of retailers, including Walmart, a selection of popular dining options, and nearby residential neighborhoods, making commutes and day-to-day needs easily manageable. With a robust local labor force and an average household income of approximately $72,450 within a five-mile radius, the property is well-situated to attract a capable workforce while ensuring access to essential services. This strategic location fosters a productive work environment within a vibrant and growing community.
- Le taux de location ne comprend pas les services publics, les services de bâtiment ou les dépenses immobilières.
- Espace en excellent état
- Espace flexible de 20 000 pieds carrés, adapté aux besoins
- Achèvement prévu en 2026
- Zonage M (P) dans le district Airport Overlay
- Près de l'aéroport régional de Fayetteville, autoroutes
- Proximité des détaillants, des restaurants et des zones résidentielles
Aperçu de la propriété
Ce bâtiment flexible de 20 000 pieds carrés, dont l'achèvement est prévu en 2026, est disponible sous forme d'espace personnalisable construit sur mesure conçu pour répondre aux besoins uniques de son locataire unique en matière de bureaux et d'entrepôts. L'installation offre une disposition polyvalente pour une utilisation industrielle légère, avec un zonage classé M (P) et situé dans le district Airport Overlay. Sa conception et son emplacement serviront les entreprises qui cherchent à optimiser l'efficacité de la logistique et de l'espace de travail à proximité des voies de transport et des commodités essentielles. Situé près de l'aéroport régional de Fayetteville et à moins de deux milles des principales routes telles que les routes commerciales 95/Hwy 301, 87 et I-95, le site assure une connectivité régionale et interétatique transparente, améliorant ainsi la commodité opérationnelle pour les clients et les fournisseurs. Les environs offrent un mélange attrayant de commodité et d'accessibilité. Les employés bénéficieront de la proximité d'une variété de détaillants, y compris Walmart, d'une sélection d'options de restauration populaires et de quartiers résidentiels à proximité, ce qui facilitera la gestion des déplacements et des besoins quotidiens. Avec une main-d'œuvre locale solide et un revenu moyen des ménages d'environ 72 450$ dans un rayon de cinq milles, la propriété est bien située pour attirer une main-d'œuvre compétente tout en assurant l'accès aux services essentiels. Cet emplacement stratégique favorise un environnement de travail productif au sein d'une communauté dynamique et en pleine croissance.
Faits sur l’installation fabrication
Présenté par
New 20,000 SF Flex Building | 3456 Black and Decker Rd
Hmm, il semble y avoir eu une erreur lors de l’envoi de votre message. Veuillez réessayer.
Merci! Votre message a été envoyé.



