Votre courriel a été envoyé.
Stadium View 3465 Camino del Rio S 1 565–5 033 pi² d'espace disponible • Bureau • San Diego, CA 92108



Certaines informations ont été traduites automatiquement.
Faits saillants
- Propriétaire/Gestion de la propriété sur place
- Stationnement couvert et sécurisé Stationnement réservé disponible
- Bureaux doublés de fenêtres pour beaucoup de lumière naturelle
- Améliorations intérieures en cours. Aires communes récemment rénovées
- Visibilité sur l'autoroute I-8 et I-15 (254 980 VPD)
Tous les espaces disponibles(2)
Afficher les taux de location en
- Espace
- Taille
- Terme
- Taux de location
- Utilisation de l’espace
- Aménagement
- Disponible
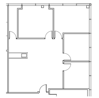
4 Private Offices, Reception, Break Room, Copy/Print Area, Storage Room, Conference Room, Open Office
- Taux de location inscrit plus part proportionnelle des coûts de la consommation électrique
- Disposition du plan d’étage ouverte en général
- 1 salle de conférence
- Partiellement construit comme Bureau standard
- 4 bureaux privés
- Aire de réception
$2.20/SF Gross + Electric NEW MOVE-IN READY SPEC FINISHES: Open Office, 3 Private Offices, Conference Room, Break Area, Storage Room
- Taux de location inscrit plus part proportionnelle des coûts de la consommation électrique
- Disposition du plan d’étage ouverte en général
- 1 salle de conférence
- Entièrement construit comme Bureau standard
- 3 bureaux privés
| Espace | Taille | Terme | Taux de location | Utilisation de l’espace | Aménagement | Disponible |
| 2e étage, ste 220 | 3 468 pi² | Négociable | 35,89 $ CAD/pi²/an 2,99 $ CAD/pi²/mois 124 469 $ CAD/an 10 372 $ CAD/mois | Bureau | construction partielle | Maintenant |
| 4e étage, ste 480 | 1 565 pi² | Négociable | 35,89 $ CAD/pi²/an 2,99 $ CAD/pi²/mois 56 169 $ CAD/an 4 681 $ CAD/mois | Bureau | construction complète | Maintenant |
2e étage, ste 220
| Taille |
| 3 468 pi² |
| Terme |
| Négociable |
| Taux de location |
| 35,89 $ CAD/pi²/an 2,99 $ CAD/pi²/mois 124 469 $ CAD/an 10 372 $ CAD/mois |
| Utilisation de l’espace |
| Bureau |
| Aménagement |
| construction partielle |
| Disponible |
| Maintenant |
4e étage, ste 480
| Taille |
| 1 565 pi² |
| Terme |
| Négociable |
| Taux de location |
| 35,89 $ CAD/pi²/an 2,99 $ CAD/pi²/mois 56 169 $ CAD/an 4 681 $ CAD/mois |
| Utilisation de l’espace |
| Bureau |
| Aménagement |
| construction complète |
| Disponible |
| Maintenant |
2e étage, ste 220
| Taille | 3 468 pi² |
| Terme | Négociable |
| Taux de location | 35,89 $ CAD/pi²/an |
| Utilisation de l’espace | Bureau |
| Aménagement | construction partielle |
| Disponible | Maintenant |
4 Private Offices, Reception, Break Room, Copy/Print Area, Storage Room, Conference Room, Open Office
- Taux de location inscrit plus part proportionnelle des coûts de la consommation électrique
- Partiellement construit comme Bureau standard
- Disposition du plan d’étage ouverte en général
- 4 bureaux privés
- 1 salle de conférence
- Aire de réception
4e étage, ste 480
| Taille | 1 565 pi² |
| Terme | Négociable |
| Taux de location | 35,89 $ CAD/pi²/an |
| Utilisation de l’espace | Bureau |
| Aménagement | construction complète |
| Disponible | Maintenant |
$2.20/SF Gross + Electric NEW MOVE-IN READY SPEC FINISHES: Open Office, 3 Private Offices, Conference Room, Break Area, Storage Room
- Taux de location inscrit plus part proportionnelle des coûts de la consommation électrique
- Entièrement construit comme Bureau standard
- Disposition du plan d’étage ouverte en général
- 3 bureaux privés
- 1 salle de conférence
Aperçu de la propriété
Propriétaire/Gestion de la propriété sur place Améliorations intérieures en cours Aires communes récemment rénovées Ascenseurs desservis (deux) Visibilité sur l'autoroute I-8 et I-15 (254 980 VPD) Signalisation sur l'autoroute disponible Stationnement couvert et sécurisé - Stationnement réservé disponible Bureaux doublés de fenêtres pour beaucoup de lumière naturelle
- Ligne d'autobus
- Gestionnaire d'immeuble sur place
- Affichage
- Lumière naturelle
Faits sur la propriété
Sélectionner des locataires
- Étage
- Nom du locataire
- Secteur
- 2ᵉ
- Kerch & Associates, Inc.
- Immobilier
Présenté par
Stadium View | 3465 Camino del Rio S
Hmm, il semble y avoir eu une erreur lors de l’envoi de votre message. Veuillez réessayer.
Merci! Votre message a été envoyé.





