Se Connecter/S’inscrire
Votre courriel a été envoyé.
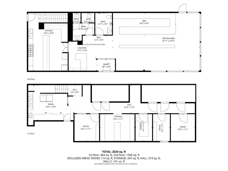
348 Black Rock Tpke 4 102 pi² Commerce de détail Immeuble Fairfield, CT 06825 2 450 526 $ CAD (597,40 $ CAD/pi²)



Certaines informations ont été traduites automatiquement.
Faits saillants de l'investissement
- Forte circulation diurne
- Plan d'étage ouvert
- Stationnement sur place
- Restaurant Entièrement Construit
Résumé de l'annonce
Restaurant Fairfield de premier ordre récemment rénové et idéal pour les utilisateurs propriétaires avec parking sur place. Entouré de marques emblématiques du Connecticut et de plus de 300 appartements de luxe haut de gamme. Emplacement du couvent jusqu'aux gares.
Faits sur la propriété
Type de vente
Investissement ou propriétaire utilisateur
Type de propriété
Commerce de détail
Sous-type de propriété
Taille du bâtiment
4 102 pi²
Classe d’immeuble
B
Année de construction
1999
Prix
2 450 526 $ CAD
Prix par pi²
597,40 $ CAD
Location
Unique
Hauteur du bâtiment
1 étage
Coefficient d’occupation des sols de l’immeuble
0,38
Taille du lot
0,25 AC
Zonage
NB - Quartier d'affaires de proximité
Stationnement
25 places (9,38 places par 1 000 pi² loué)
Façade
330’ sur Black Rock Tpke
Assez praticable à pied
50/100
Exceptionnellement facile d’accès en voiture
100/100
Bons transports en commun
60/100
Plutôt praticable en vélo
40/100
Principaux détaillants à proximité
Impôts fonciers
| Numéro de lot | FAIR-000080-000000-000140 | Évaluation des bâtiments | 436 114 $ CAD |
| Évaluation du terrain | 512 078 $ CAD | Évaluation totale | 948 192 $ CAD |
Impôts fonciers
Numéro de lot
FAIR-000080-000000-000140
Évaluation du terrain
512 078 $ CAD
Évaluation des bâtiments
436 114 $ CAD
Évaluation totale
948 192 $ CAD
1 de 32
Vidéos
Visite extérieure 3D Matterport
Visite 3D Matterport
Photos
Vue depuis la rue
Rue
Carte
Présenté par
348 Black Rock Tpke
Vous êtes déjà membre? Connectez-vous
Hmm, il semble y avoir eu une erreur lors de l’envoi de votre message. Veuillez réessayer.
Merci! Votre message a été envoyé.
