Votre courriel a été envoyé.
2400 SF Jack C Hays Trl 3480 Jack C Hays Trl 2 400 pi² d'espace disponible • Bureau • 4 étoiles • Buda, TX 78610



Certaines informations ont été traduites automatiquement.
Tous les espaces disponibles(1)
Afficher les taux de location en
- Espace
- Taille
- Terme
- Taux de location
- Utilisation de l’espace
- Aménagement
- Disponible
- 6 bureaux privés
| Espace | Taille | Terme | Taux de location | Utilisation de l’espace | Aménagement | Disponible |
| 1er étage | 2 400 pi² | Négociable | 26,42 $ CAD/pi²/an 2,20 $ CAD/pi²/mois 63 409 $ CAD/an 5 284 $ CAD/mois | Bureau | - | Maintenant |
1er étage
| Taille |
| 2 400 pi² |
| Terme |
| Négociable |
| Taux de location |
| 26,42 $ CAD/pi²/an 2,20 $ CAD/pi²/mois 63 409 $ CAD/an 5 284 $ CAD/mois |
| Utilisation de l’espace |
| Bureau |
| Aménagement |
| - |
| Disponible |
| Maintenant |
1er étage
| Taille | 2 400 pi² |
| Terme | Négociable |
| Taux de location | 26,42 $ CAD/pi²/an |
| Utilisation de l’espace | Bureau |
| Aménagement | - |
| Disponible | Maintenant |
- 6 bureaux privés
Aperçu de la propriété
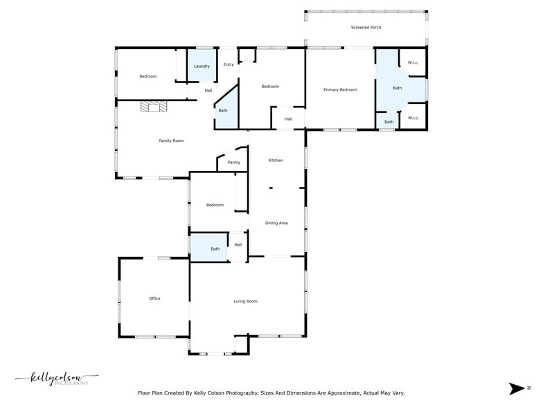
Site de bureau/commercial de 2 400 pi² avec grande visibilité et fort achalandage le long de FM 2770 à Buda. Emplacement idéal pour un bureau, une clinique de thérapie ou un commerce de détail. Enseigne disponible sur FM 2770. Facilement accessible depuis tout Buda ou Kyle. Comprend 8 pièces, 2,5 chambres, une configuration bien adaptée à divers usages de bureau ou de commerce. Planchers en bois franc, grande véranda arrière parfaite pour organiser des événements, cuisine complète, réservoir de propane, poulailler.
Faits sur la propriété
Présenté par
2400 SF Jack C Hays Trl | 3480 Jack C Hays Trl
Hmm, il semble y avoir eu une erreur lors de l’envoi de votre message. Veuillez réessayer.
Merci! Votre message a été envoyé.
