Votre courriel a été envoyé.
Certaines informations ont été traduites automatiquement.
Faits saillants du parc
- Tous les nouveaux finis des aires communes — revêtement de sol, peinture, revêtements muraux, éclairage et œuvres d'art
- Walkable downtown location with nearby dining, hotels and services
- Flexible professional layouts including move-in-ready and spec suite options
- Améliorations du paysage extérieur
- Free on-site parking providing uncommon convenience in the civic center
Faits sur le parc
| Superficie totale disponible | 14 382 pi² | Type de parc | Parc de bureaux |
| Superficie totale disponible | 14 382 pi² |
| Type de parc | Parc de bureaux |
Tous les espaces disponibles(4)
Afficher les taux de location en
- Espace
- Taille
- Terme
- Taux de location
- Utilisation de l’espace
- Aménagement
- Disponible
Brand-new spec suite featuring two private offices, an open work area, and a dedicated copy/IT space. Ideal for small teams seeking a modern, efficient layout.
- Le taux comprend les services publics, les services de bâtiment et les dépenses immobilières.
- Convient pour 5 à 16 personnes
- Espace nécessitant des rénovations
- Détecteur de fumée
- Open collaborative work area
- Disposition du plan d’étage ouverte
- Plafonds finis: 10’
- Air central et chauffage
- Two private offices included
- Newly built spec suite
Functional layout with five private offices, a conference room, and a breakroom. Perfect for professional users requiring a mix of private and collaborative space.
- Le taux comprend les services publics, les services de bâtiment et les dépenses immobilières.
- Convient pour 6 à 17 personnes
- 1 salle de conférence
- Dedicated conference room
- Entièrement construit comme Bureau standard
- 5 bureaux privés
- Five private offices
- Convenient breakroom space
Spacious suite offering five private offices, a conference room, breakroom, and open area for flexible workspace needs. Designed for growing teams.
- Le taux comprend les services publics, les services de bâtiment et les dépenses immobilières.
- Convient pour 6 à 19 personnes
- Salles de conférence
- Large open work area
- Entièrement construit comme Bureau standard
- 5 bureaux privés
- Five private offices
- Breakroom and conference room
| Espace | Taille | Terme | Taux de location | Utilisation de l’espace | Aménagement | Disponible |
| 2e étage, ste 203 | 940 pi² | Négociable | 42,98 $ CAD/pi²/an 3,58 $ CAD/pi²/mois 40 399 $ CAD/an 3 367 $ CAD/mois | Bureau | selon spécifications | Maintenant |
| 2e étage, ste 210 | 2 100 pi² | 1-5 ans | 41,33 $ CAD/pi²/an 3,44 $ CAD/pi²/mois 86 783 $ CAD/an 7 232 $ CAD/mois | Bureau | construction complète | Maintenant |
| 3e étage, ste 310 | 2 371 pi² | Négociable | 41,33 $ CAD/pi²/an 3,44 $ CAD/pi²/mois 97 982 $ CAD/an 8 165 $ CAD/mois | Bureau | construction complète | Maintenant |
3550 Vine St - 2e étage - ste 203
3550 Vine St - 2e étage - ste 210
3550 Vine St - 3e étage - ste 310
- Espace
- Taille
- Terme
- Taux de location
- Utilisation de l’espace
- Aménagement
- Disponible
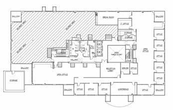
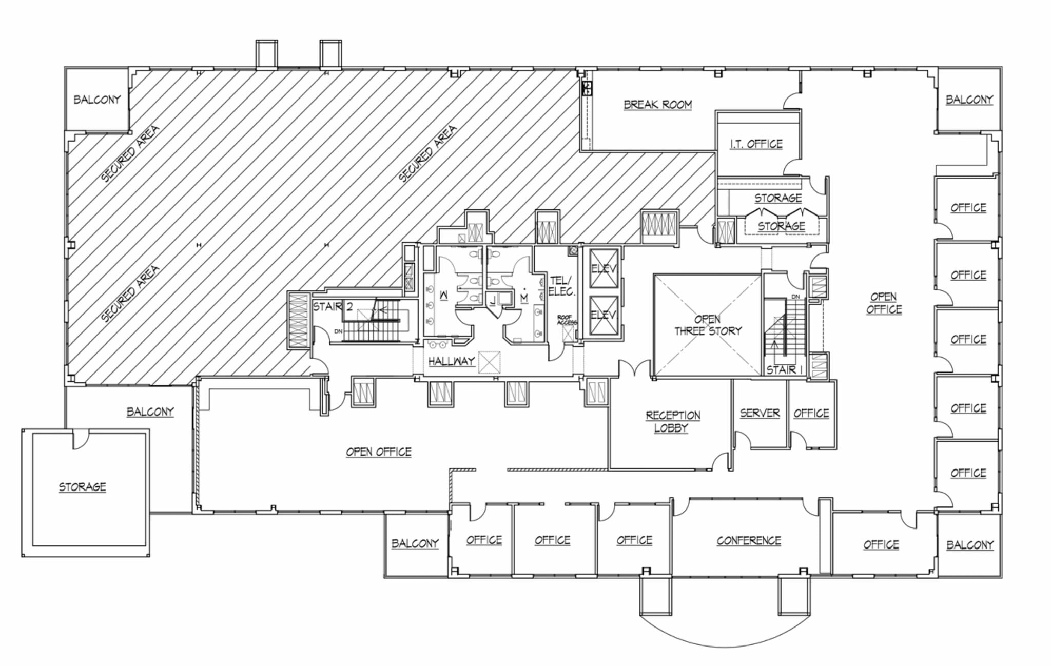
Multiple Offices, Open Offices, Reception, Breakroom, Conference Room, Balconies
- Le taux comprend les services publics, les services de bâtiment et les dépenses immobilières.
- Disposition intensive du bureau
- Salles de conférence
- Entièrement construit comme Bureau standard
- Convient pour 23 à 72 personnes
- Aire de réception
| Espace | Taille | Terme | Taux de location | Utilisation de l’espace | Aménagement | Disponible |
| 3e étage, ste 300 | 8 971 pi² | 1-5 ans | 40,50 $ CAD/pi²/an 3,37 $ CAD/pi²/mois 363 312 $ CAD/an 30 276 $ CAD/mois | Bureau | construction complète | Maintenant |
3480 Vine St - 3e étage - ste 300
3550 Vine St - 2e étage - ste 203
| Taille | 940 pi² |
| Terme | Négociable |
| Taux de location | 42,98 $ CAD/pi²/an |
| Utilisation de l’espace | Bureau |
| Aménagement | selon spécifications |
| Disponible | Maintenant |
Brand-new spec suite featuring two private offices, an open work area, and a dedicated copy/IT space. Ideal for small teams seeking a modern, efficient layout.
- Le taux comprend les services publics, les services de bâtiment et les dépenses immobilières.
- Disposition du plan d’étage ouverte
- Convient pour 5 à 16 personnes
- Plafonds finis: 10’
- Espace nécessitant des rénovations
- Air central et chauffage
- Détecteur de fumée
- Two private offices included
- Open collaborative work area
- Newly built spec suite
3550 Vine St - 2e étage - ste 210
| Taille | 2 100 pi² |
| Terme | 1-5 ans |
| Taux de location | 41,33 $ CAD/pi²/an |
| Utilisation de l’espace | Bureau |
| Aménagement | construction complète |
| Disponible | Maintenant |
Functional layout with five private offices, a conference room, and a breakroom. Perfect for professional users requiring a mix of private and collaborative space.
- Le taux comprend les services publics, les services de bâtiment et les dépenses immobilières.
- Entièrement construit comme Bureau standard
- Convient pour 6 à 17 personnes
- 5 bureaux privés
- 1 salle de conférence
- Five private offices
- Dedicated conference room
- Convenient breakroom space
3550 Vine St - 3e étage - ste 310
| Taille | 2 371 pi² |
| Terme | Négociable |
| Taux de location | 41,33 $ CAD/pi²/an |
| Utilisation de l’espace | Bureau |
| Aménagement | construction complète |
| Disponible | Maintenant |
Spacious suite offering five private offices, a conference room, breakroom, and open area for flexible workspace needs. Designed for growing teams.
- Le taux comprend les services publics, les services de bâtiment et les dépenses immobilières.
- Entièrement construit comme Bureau standard
- Convient pour 6 à 19 personnes
- 5 bureaux privés
- Salles de conférence
- Five private offices
- Large open work area
- Breakroom and conference room
3480 Vine St - 3e étage - ste 300
| Taille | 8 971 pi² |
| Terme | 1-5 ans |
| Taux de location | 40,50 $ CAD/pi²/an |
| Utilisation de l’espace | Bureau |
| Aménagement | construction complète |
| Disponible | Maintenant |
Multiple Offices, Open Offices, Reception, Breakroom, Conference Room, Balconies
- Le taux comprend les services publics, les services de bâtiment et les dépenses immobilières.
- Entièrement construit comme Bureau standard
- Disposition intensive du bureau
- Convient pour 23 à 72 personnes
- Salles de conférence
- Aire de réception
Aperçu du parc
Riverside Gateway est un projet de bureau de classe A de 90 154 pieds carrés comprenant deux (2) immeubles de bureaux professionnels de 3 étages, ±45 000 pieds carrés. Les bâtiments se vantent un hall d'entrée de l'atrium de deux étages, des finitions attrayantes et des plaques de plancher flexibles. Les bâtiments sont : équipé de systèmes de CVC et de sécurité à la fine pointe de la technologie. Riverside Gateway est situé à côté de la bretelle d'accès et de sortie de l'autoroute 91. visibilité à l'échangeur de l'autoroute 60/91/215, offrant des déplacements directs à destination et en provenance Comtés de Los Angeles, d'Orange et de San Diego. Riverside Gateway est un projet de bureau de classe A de 90 154 pieds carrés comprenant deux (2) immeubles de bureaux professionnels de 3 étages et de ±45 000 pieds carrés. Les bâtiments sont dotés d'un hall d'entrée de l'atrium de 2 étages, de finitions attrayantes et de plaques de plancher flexibles. Les bâtiments sont équipés de systèmes de CVC et de systèmes de sécurité à la fine pointe de la technologie. Riverside Gateway est situé à côté de la bretelle d'accès à l'autoroute 91, avec une grande visibilité à l'échangeur de l'autoroute 60/91/215, offrant des navetteurs directs à destination et en provenance des comtés de Los Angeles, d'Orange et de San Diego. Riverside Gateway est situé dans le centre municipal du centre-ville de Riverside, à distance de marche de nombreux restaurants, commerces de détail, hôtels et services d'affaires. Le projet offre un stationnement en surface gratuit à un ratio de 4 56:1 000 - un avantage rare et souhaitable pour un bureau professionnel au centre-ville.
Présenté par
Riverside Gateway | Riverside, CA 92507
Hmm, il semble y avoir eu une erreur lors de l’envoi de votre message. Veuillez réessayer.
Merci! Votre message a été envoyé.










