Votre courriel a été envoyé.
Certaines informations ont été traduites automatiquement.
Faits saillants
- Security
- Private Yard
- Oversized Grade-Level Doors
- Security Patrols
- On-Site Manager
Caractéristiques
Tous les espaces disponibles(3)
Afficher les taux de location en
- Espace
- Taille
- Terme
- Taux de location
- Utilisation de l’espace
- Aménagement
- Disponible
Welcome to the Waterman Business Center, The best flex product in the Inland Empire. Join a High Quality, Professional Business Park for your business to grow or expand. Unique Features of the Project are: -Project has a gated parking court with private reserved parking spaces for you and your employees. Simply enter a unique access code and park your vehicle in your private area. This unit has room for 3 private spaces. -Your operating expenses include water usage, trash disposal, fire alarm monitoring, fire sprinkler inspections, and landscape maintenance. Part of a 12-building 200,000 sf master-planned business park that provides amenities like 3X per night security patrols that others don’t offer. -We can offer you fiber optic internet from either Frontier or Spectrum. Internet can be installed easily and quickly. - 1 Private Restroom with one located in the office area and the second located in the warehouse/flex area. - Fully insulated (R19) ceiling at rear of the space to keep you and your products cool and one over-sized Grade-Level Doors 12 ft. Wide by 14 ft. High. Clear Height: 13.5-16.5 Feet with fire sprinklers. -You may have 24/7 Access to your space to work any hours of your choosing. -We are parked 4:1000 and ensure you and your employees, and customers have ample space to park including spaces right in front of your door. -Owned and managed by Seventh Street Development who offices at the project. We are already at the project if you ever have questions or need assistance. We also provide a hands-on approach to help you get your business license in the business-friendly City of San Bernardino.
- Le taux inscrit peut ne pas comprendre certains services publics, les services de bâtiment et les dépenses immobilières.
- Connectivité Wi-Fi
- Hauts plafonds
- 1 accès plain-pied
- Entreposage sécurisé
- Cour
Welcome to the Waterman Business Center, The best flex product in the Inland Empire. Join a High Quality, Professional Business Park for your business to grow or expand. Video of Units: https://youtu.be/nWzFAmtkHS0 Unique Features of the Project are: -Project has a gated parking court with private reserved parking spaces for you and your employees. Simply enter a unique access code and park your vehicle in your private area. This unit has room for 3 private spaces. -Your operating expenses include water usage, trash disposal, fire alarm monitoring, fire sprinkler inspections, and landscape maintenance. Part of a 12-building 200,000 sf master-planned business park that provides amenities like 3X per night security patrols that others don’t offer. -Air-Conditioned Office Space with Luxury Vinyl Plank Flooring and Coffee Bar with Disposal. -We can offer you fiber optic internet from either Frontier or Spectrum. Internet can be installed easily and quickly. - 2 Private Restrooms with one located in the office area and the second located in the warehouse/flex area. - Fully insulated (R19) ceiling at rear of the space to keep you and your products cool and an over-sized Grade-Level Door 12 ft. Wide by 14 ft. High. Clear Height: 13.5-16.5 Feet with fire sprinklers. - Modern LED lighting throughout space to save energy. -You may have 24/7 Access to your space to work any hours of your choosing. -We are parked 4:1000 and ensure you and your employees, and customers have ample space to park including spaces right in front of your door. -Your new unit includes signage rights over your door to provide a professional image to any guests to your space. -Owned and managed by Seventh Street Development who offices at the project. We are already at the project if you ever have questions or need assistance. We also provide a hands-on approach to help you get your business license in the business-friendly City of San Bernardino.
- Le taux inscrit peut ne pas comprendre certains services publics, les services de bâtiment et les dépenses immobilières.
- Espace en excellent état
- Climatisation centrale
- Clé en main
- CVCA disponible après les heures de travail
- Comprend 781 pi² d’espace de bureau dédié
- 1 accès plain-pied
- Aire de réception
- Cour
Welcome to the Waterman Business Center, The best flex product in the Inland Empire. Join a High Quality, Professional Business Park for your business to grow or expand. -This is a unique find with Air-Conditioned Warehouse Space in addition to Air-Conditioned Office. Stay cool in the hot Inland Empire Summers with a 5-ton HVAC Unit in the rear of the space to keep you cool year-round. -Project has a gated parking court with private reserved parking spaces for you and your employees. Simply enter a unique access code and park your vehicle in your private area. This unit has room for 3 private spaces. -Your operating expenses include water usage, trash disposal, fire alarm monitoring, fire sprinkler inspections, and landscape maintenance. Part of a 12-building 200,000 sf master-planned business park that provides amenities like 3X per night security patrols that others don’t offer. -Air-Conditioned Office Space with Luxury Vinyl Plank Flooring and Coffee Bar with Disposal. -We can offer you fiber optic internet from either Frontier or Spectrum. Internet can be installed easily and quickly. - 2 Private Restrooms with one located in the office area and the second located in the warehouse/flex area. - Fully insulated (R19) ceiling at rear of the space to keep you and your products cool and an over-sized Grade-Level Door 12 ft. Wide by 14 ft. High. Clear Height: 13.5-16.5 Feet with fire sprinklers. - Modern LED lighting throughout space to save energy. -You may have 24/7 Access to your space to work any hours of your choosing. -We are parked 4:1000 and ensure you and your employees, and customers have ample space to park including spaces right in front of your door. -Your new unit includes signage rights over your door to provide a professional image to any guests to your space. -Owned and managed by Seventh Street Development who offices at the project. We are already at the project if you ever have questions or need assistance. We also provide a hands-on approach to help you get your business license in the business-friendly City of San Bernardino.
- Le taux inscrit peut ne pas comprendre certains services publics, les services de bâtiment et les dépenses immobilières.
- Espace en excellent état
- Climatisation centrale
- Connectivité Wi-Fi
- Cour
- Comprend 843 pi² d’espace de bureau dédié
- 1 accès plain-pied
- Aire de réception
- Clé en main
- CVCA disponible après les heures de travail
| Espace | Taille | Terme | Taux de location | Utilisation de l’espace | Aménagement | Disponible |
| 1er étage - 104W | 1 405 pi² | 3-5 ans | 27,27 $ CAD/pi²/an 2,27 $ CAD/pi²/mois 38 321 $ CAD/an 3 193 $ CAD/mois | Flex | espace cloisonné | Maintenant |
| 1er étage - B110 | 2 129 pi² | 3-5 ans | 27,77 $ CAD/pi²/an 2,31 $ CAD/pi²/mois 59 123 $ CAD/an 4 927 $ CAD/mois | Flex | construction complète | Maintenant |
| 1er étage - B210 | 2 068 pi² | 3-5 ans | 30,08 $ CAD/pi²/an 2,51 $ CAD/pi²/mois 62 215 $ CAD/an 5 185 $ CAD/mois | Flex | construction partielle | Maintenant |
1er étage - 104W
| Taille |
| 1 405 pi² |
| Terme |
| 3-5 ans |
| Taux de location |
| 27,27 $ CAD/pi²/an 2,27 $ CAD/pi²/mois 38 321 $ CAD/an 3 193 $ CAD/mois |
| Utilisation de l’espace |
| Flex |
| Aménagement |
| espace cloisonné |
| Disponible |
| Maintenant |
1er étage - B110
| Taille |
| 2 129 pi² |
| Terme |
| 3-5 ans |
| Taux de location |
| 27,77 $ CAD/pi²/an 2,31 $ CAD/pi²/mois 59 123 $ CAD/an 4 927 $ CAD/mois |
| Utilisation de l’espace |
| Flex |
| Aménagement |
| construction complète |
| Disponible |
| Maintenant |
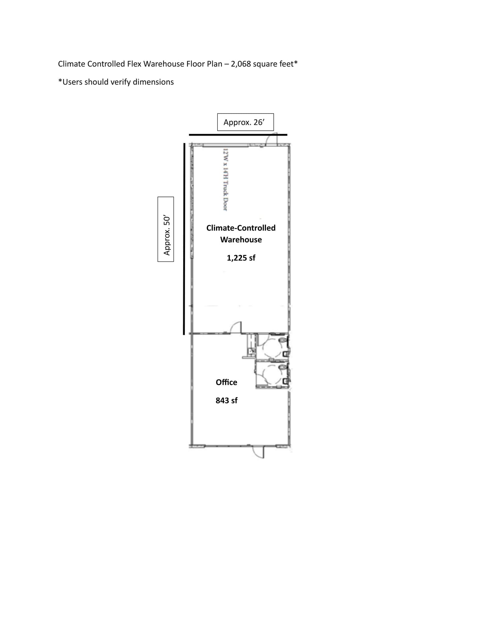
1er étage - B210
| Taille |
| 2 068 pi² |
| Terme |
| 3-5 ans |
| Taux de location |
| 30,08 $ CAD/pi²/an 2,51 $ CAD/pi²/mois 62 215 $ CAD/an 5 185 $ CAD/mois |
| Utilisation de l’espace |
| Flex |
| Aménagement |
| construction partielle |
| Disponible |
| Maintenant |
1er étage - 104W
| Taille | 1 405 pi² |
| Terme | 3-5 ans |
| Taux de location | 27,27 $ CAD/pi²/an |
| Utilisation de l’espace | Flex |
| Aménagement | espace cloisonné |
| Disponible | Maintenant |
Welcome to the Waterman Business Center, The best flex product in the Inland Empire. Join a High Quality, Professional Business Park for your business to grow or expand. Unique Features of the Project are: -Project has a gated parking court with private reserved parking spaces for you and your employees. Simply enter a unique access code and park your vehicle in your private area. This unit has room for 3 private spaces. -Your operating expenses include water usage, trash disposal, fire alarm monitoring, fire sprinkler inspections, and landscape maintenance. Part of a 12-building 200,000 sf master-planned business park that provides amenities like 3X per night security patrols that others don’t offer. -We can offer you fiber optic internet from either Frontier or Spectrum. Internet can be installed easily and quickly. - 1 Private Restroom with one located in the office area and the second located in the warehouse/flex area. - Fully insulated (R19) ceiling at rear of the space to keep you and your products cool and one over-sized Grade-Level Doors 12 ft. Wide by 14 ft. High. Clear Height: 13.5-16.5 Feet with fire sprinklers. -You may have 24/7 Access to your space to work any hours of your choosing. -We are parked 4:1000 and ensure you and your employees, and customers have ample space to park including spaces right in front of your door. -Owned and managed by Seventh Street Development who offices at the project. We are already at the project if you ever have questions or need assistance. We also provide a hands-on approach to help you get your business license in the business-friendly City of San Bernardino.
- Le taux inscrit peut ne pas comprendre certains services publics, les services de bâtiment et les dépenses immobilières.
- 1 accès plain-pied
- Connectivité Wi-Fi
- Entreposage sécurisé
- Hauts plafonds
- Cour
1er étage - B110
| Taille | 2 129 pi² |
| Terme | 3-5 ans |
| Taux de location | 27,77 $ CAD/pi²/an |
| Utilisation de l’espace | Flex |
| Aménagement | construction complète |
| Disponible | Maintenant |
Welcome to the Waterman Business Center, The best flex product in the Inland Empire. Join a High Quality, Professional Business Park for your business to grow or expand. Video of Units: https://youtu.be/nWzFAmtkHS0 Unique Features of the Project are: -Project has a gated parking court with private reserved parking spaces for you and your employees. Simply enter a unique access code and park your vehicle in your private area. This unit has room for 3 private spaces. -Your operating expenses include water usage, trash disposal, fire alarm monitoring, fire sprinkler inspections, and landscape maintenance. Part of a 12-building 200,000 sf master-planned business park that provides amenities like 3X per night security patrols that others don’t offer. -Air-Conditioned Office Space with Luxury Vinyl Plank Flooring and Coffee Bar with Disposal. -We can offer you fiber optic internet from either Frontier or Spectrum. Internet can be installed easily and quickly. - 2 Private Restrooms with one located in the office area and the second located in the warehouse/flex area. - Fully insulated (R19) ceiling at rear of the space to keep you and your products cool and an over-sized Grade-Level Door 12 ft. Wide by 14 ft. High. Clear Height: 13.5-16.5 Feet with fire sprinklers. - Modern LED lighting throughout space to save energy. -You may have 24/7 Access to your space to work any hours of your choosing. -We are parked 4:1000 and ensure you and your employees, and customers have ample space to park including spaces right in front of your door. -Your new unit includes signage rights over your door to provide a professional image to any guests to your space. -Owned and managed by Seventh Street Development who offices at the project. We are already at the project if you ever have questions or need assistance. We also provide a hands-on approach to help you get your business license in the business-friendly City of San Bernardino.
- Le taux inscrit peut ne pas comprendre certains services publics, les services de bâtiment et les dépenses immobilières.
- Comprend 781 pi² d’espace de bureau dédié
- Espace en excellent état
- 1 accès plain-pied
- Climatisation centrale
- Aire de réception
- Clé en main
- Cour
- CVCA disponible après les heures de travail
1er étage - B210
| Taille | 2 068 pi² |
| Terme | 3-5 ans |
| Taux de location | 30,08 $ CAD/pi²/an |
| Utilisation de l’espace | Flex |
| Aménagement | construction partielle |
| Disponible | Maintenant |
Welcome to the Waterman Business Center, The best flex product in the Inland Empire. Join a High Quality, Professional Business Park for your business to grow or expand. -This is a unique find with Air-Conditioned Warehouse Space in addition to Air-Conditioned Office. Stay cool in the hot Inland Empire Summers with a 5-ton HVAC Unit in the rear of the space to keep you cool year-round. -Project has a gated parking court with private reserved parking spaces for you and your employees. Simply enter a unique access code and park your vehicle in your private area. This unit has room for 3 private spaces. -Your operating expenses include water usage, trash disposal, fire alarm monitoring, fire sprinkler inspections, and landscape maintenance. Part of a 12-building 200,000 sf master-planned business park that provides amenities like 3X per night security patrols that others don’t offer. -Air-Conditioned Office Space with Luxury Vinyl Plank Flooring and Coffee Bar with Disposal. -We can offer you fiber optic internet from either Frontier or Spectrum. Internet can be installed easily and quickly. - 2 Private Restrooms with one located in the office area and the second located in the warehouse/flex area. - Fully insulated (R19) ceiling at rear of the space to keep you and your products cool and an over-sized Grade-Level Door 12 ft. Wide by 14 ft. High. Clear Height: 13.5-16.5 Feet with fire sprinklers. - Modern LED lighting throughout space to save energy. -You may have 24/7 Access to your space to work any hours of your choosing. -We are parked 4:1000 and ensure you and your employees, and customers have ample space to park including spaces right in front of your door. -Your new unit includes signage rights over your door to provide a professional image to any guests to your space. -Owned and managed by Seventh Street Development who offices at the project. We are already at the project if you ever have questions or need assistance. We also provide a hands-on approach to help you get your business license in the business-friendly City of San Bernardino.
- Le taux inscrit peut ne pas comprendre certains services publics, les services de bâtiment et les dépenses immobilières.
- Comprend 843 pi² d’espace de bureau dédié
- Espace en excellent état
- 1 accès plain-pied
- Climatisation centrale
- Aire de réception
- Connectivité Wi-Fi
- Clé en main
- Cour
- CVCA disponible après les heures de travail
Aperçu de la propriété
100 % d'espace contrôlé par le climat pour certaines unités. Waterman Business Center - Flex Suites À LOUER - Aucune utilisation liée au cannabis permise WATERMAN BUSINESS CENTER ! Parc d'affaires en haute image situé dans une zone d'opportunités qualifiées à la frontière de San Bernardino et Loma Linda, à moins d'un mille du Loma Linda University Medical Center. Le projet offre une façade de l'avenue Waterman (25 000 trafic quotidien moyen) avec un accès direct aux autoroutes I-10 (0,4 milles) et I-215 (2 milles). Loma Linda University Health Care, Amber Pharmacy, Avid Physical Therapy et le Dr James Jesse DDS sont locataires. Les locataires du centre d'affaires Waterman peuvent utiliser l'adresse du bureau de poste de Loma Linda ou de San Bernardino. Les commodités comprennent une entrée en pierre superposée attrayante, un accès Internet à fibre optique FIOS, des patrouilles de sécurité nocturnes et un stationnement jusqu'à 4:1 directement devant votre unité. Les suites prêtes à emménager sont de 2 200 pc et plus et comprennent deux toilettes privées et un café-bar. * Projet facile à localiser qui fait face à l'avenue Waterman juste au sud de l'autoroute I-10 * Accès direct à l'autoroute I-10 (0,4 mille) et I-215 (2 milles) * Près des commodités de Hospitality Lane * Moins d'un mille du centre médical de l'Université Loma Linda * Adresse du bureau de poste de Loma Linda ou San Bernardino
Faits sur la propriété
Présenté par
Bldg B | 350 E Commercial Rd
Hmm, il semble y avoir eu une erreur lors de l’envoi de votre message. Veuillez réessayer.
Merci! Votre message a été envoyé.










