Votre courriel a été envoyé.
Retail Redevelopment 3503 Bridge St NW 1 200–4 400 pi² d'espace disponible • Commerce de détail • Saint Francis, MN 55070



Certaines informations ont été traduites automatiquement.
Faits saillants
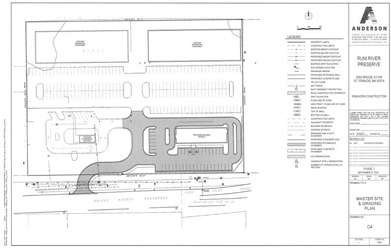
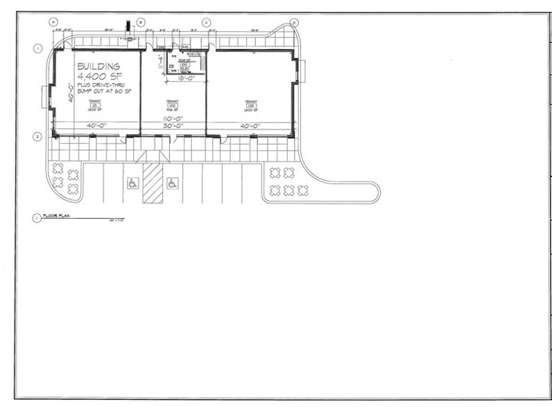
- Nouveau développement de commerces de détail totalisant 4 400 pieds 2 situé en face de l'école secondaire St. Francis sur la rue Bridge.
- Visibilité, circulation piétonnière et données démographiques fantastiques
- Capable d'entraînement pour chaque extrémité
- Roulement du personnel locataire vers avril 2025
- Le ou les locataires peuvent prendre 1 200 SF jusqu'à 4 400 SF
- Signalisation du monument, accès bidirectionnel complet à la rue Bridge
Disponibilité de l’espace (1)
Afficher les taux de location en
- Espace
- Taille
- Terme
- Taux de location
- Type de loyer
| Espace | Taille | Terme | Taux de location | Type de loyer | ||
| 1er étage | 1 200 à 4 400 pi² | Négociable | Sur demande Sur demande Sur demande Sur demande | À déterminer |
1er étage
Prime retail space available at a roundabout with 4,400 square feet, featuring two end caps with drive-thru capabilities. Located directly across from St. Francis High School, this corner location offers strong visibility with pylon and building signage. Ideal for businesses seeking high traffic and easy access.
- Espace embout très recherché
- Espace en excellent état
- Roulement du personnel locataire vers avril 2025
- Capable d'entraînement pour chaque extrémité
- Signalisation du monument, accès bidirectionnel complet à Bridge St
Types de loyers
Le type et le montant du loyer que le locataire (preneur) est tenu de payer au propriétaire (bailleur) sur la durée du bail sont négociés avant la signature du bail par les deux parties. Le type de loyer varie selon les services fournis. Par exemple, le prix d’un loyer hypernet est habituellement inférieur à celui d’un bail à service complet puisque le locataire est tenu d’assumer des dépenses additionnelles par rapport au loyer de base. Contactez le courtier inscripteur pour tout connaître sur les frais connexes et additionnels associés à chaque type de loyer.
1. Service complet: Un taux de location qui comprend des services standards liés à l’immeuble fournis par le propriétaire dans le cadre d’une location annuelle de base.
2. Loyer supernet: Le locataire paie seulement deux des frais de l’immeuble. Le propriétaire et le locataire déterminent ces frais spécifiques avant la signature du bail.
3. Loyer hypernet: Un bail en vertu duquel le locataire est responsable de tous les frais liés à sa part proportionnelle d’occupation de l’immeuble.
4. Brut modifié: Le loyer brut modifié désigne un type général de taux de location dans lequel le locataire est habituellement responsable de sa part proportionnelle d’un ou de plusieurs frais. C’est le propriétaire qui paie les frais restants. Considérez les structures tarifaires courantes suivantes applicables aux loyers bruts modifiés: 4. Plus les services: Un type de bail brut modifié suivant lequel le locataire est responsable de sa part proportionnelle des coûts des services publics, en plus du loyer. 4. Plus le nettoyage: Un type de bail brut modifié suivant lequel le locataire est responsable de sa part proportionnelle des coûts de nettoyage, en plus du loyer. 4. Plus l'électricité: Un type de bail brut modifié suivant lequel le locataire est responsable de sa part proportionnelle des coûts d’électricité, en plus du loyer. 4. Plus l’électricité et le nettoyage: Un type de bail brut modifié dans lequel le locataire est responsable de sa part proportionnelle des coûts d’électricité et de nettoyage, en plus du loyer. 4. Plus les services publics et le nettoyage: Un type de bail brut modifié dans lequel le locataire est responsable de sa part proportionnelle des coûts des services publics et de nettoyage, en plus du loyer. 4. Bail industriel brut: Un type de bail brut modifié dans lequel le locataire paie un ou plusieurs des frais, en plus du loyer. Le propriétaire et le locataire déterminent ces frais spécifiques avant la signature du bail.
5. L’électricité est à la charge du locataire: Le propriétaire paie pour tous les services et le locataire est responsable de sa propre utilisation de l’éclairage et des prises électriques dans l’espace qu’il occupe.
6. Négociable ou sur demande: Cette option est utilisée lorsque le contact de location ne précise pas le type de loyer ou de service.
7. À déterminer: À déterminer ; utilisé pour les immeubles dont le type de services ou de loyer n’est pas connu, souvent quand l’immeuble n’est pas encore construit.
Faits sur la propriété
| Superficie totale disponible | 4 400 pi² | Superficie commerciale brute | 4 400 pi² |
| Min. divisible | 1 200 pi² | Année de construction | 2027 |
| Type de propriété | Commerce de détail | État de la construction | Proposé |
| Sous-type de propriété | Bien à usage mixte |
| Superficie totale disponible | 4 400 pi² |
| Min. divisible | 1 200 pi² |
| Type de propriété | Commerce de détail |
| Sous-type de propriété | Bien à usage mixte |
| Superficie commerciale brute | 4 400 pi² |
| Année de construction | 2027 |
| État de la construction | Proposé |
À propos de la propriété
Introduction d'une occasion de réaménagement commercial de premier ordre comprenant 4 400 pieds carrés d'espace nouvellement construit situé directement en face de l'école secondaire St. Francis, sur la rue Bridge. Avec un roulement de locataires prévu en avril 2025, cette propriété bénéficie d'une visibilité fantastique et d'une circulation piétonnante, soutenues par des données démographiques impressionnantes. Les locataires peuvent occuper des espaces allant de 1 200 à 4 400 pieds carrés, et des capacités de transmission sont disponibles pour chaque extrémité. Profitez de la forte circulation de plus de 10 000 véhicules par jour et profitez de la signalisation des monuments bien en vue avec un accès bidirectionnel complet à Bridge Street. Ne manquez pas cette occasion exceptionnelle !
Principaux détaillants à proximité
Présenté par
Retail Redevelopment | 3503 Bridge St NW
Hmm, il semble y avoir eu une erreur lors de l’envoi de votre message. Veuillez réessayer.
Merci! Votre message a été envoyé.



