Se Connecter/S’inscrire
Votre courriel a été envoyé.
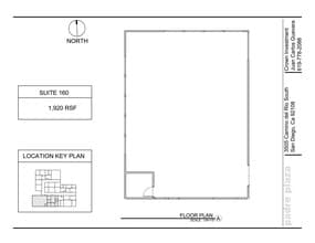
Padre Plaza 3505 Camino del Rio S 900 pi² d'espace disponible • Bureau • San Diego, CA 92108



Certaines informations ont été traduites automatiquement.
Tous les espaces disponibles(1)
Afficher les taux de location en
- Espace
- Taille
- Terme
- Taux de location
- Utilisation de l’espace
- Aménagement
- Disponible
This office is 900 rentable square feet at $2.00 per square foot. This is a full service lease with electricity and common area expenses included. Built to suit.
- Le taux comprend les services publics, les services de bâtiment et les dépenses immobilières.
- Disposition du plan d’étage ouverte en général
- Air central et chauffage
- Espace en coin
- Entièrement construit comme Bureau standard
- Espace en excellent état
- Vidéosurveillance
- Lumière naturelle
| Espace | Taille | Terme | Taux de location | Utilisation de l’espace | Aménagement | Disponible |
| 1er étage, ste 165 | 900 pi² | Négociable | 32,59 $ CAD/pi²/an 2,72 $ CAD/pi²/mois 29 333 $ CAD/an 2 444 $ CAD/mois | Bureau | construction complète | Maintenant |
1er étage, ste 165
| Taille |
| 900 pi² |
| Terme |
| Négociable |
| Taux de location |
| 32,59 $ CAD/pi²/an 2,72 $ CAD/pi²/mois 29 333 $ CAD/an 2 444 $ CAD/mois |
| Utilisation de l’espace |
| Bureau |
| Aménagement |
| construction complète |
| Disponible |
| Maintenant |
1 de 1
Vidéos
Visite extérieure 3D Matterport
Visite 3D Matterport
Photos
Vue depuis la rue
Rue
Carte
1er étage, ste 165
| Taille | 900 pi² |
| Terme | Négociable |
| Taux de location | 32,59 $ CAD/pi²/an |
| Utilisation de l’espace | Bureau |
| Aménagement | construction complète |
| Disponible | Maintenant |
This office is 900 rentable square feet at $2.00 per square foot. This is a full service lease with electricity and common area expenses included. Built to suit.
- Le taux comprend les services publics, les services de bâtiment et les dépenses immobilières.
- Entièrement construit comme Bureau standard
- Disposition du plan d’étage ouverte en général
- Espace en excellent état
- Air central et chauffage
- Vidéosurveillance
- Espace en coin
- Lumière naturelle
Caractéristiques et commodités
- Ligne d'autobus
- Cour
- Affichage
Faits sur la propriété
Type de bâtiment
Bureau
Année de construction/rénovation
1977/2003
Hauteur du bâtiment
3 étages
Taille du bâtiment
31 960 pi²
Classe d’immeuble
B
Superficie de plancher typique
10 655 pi²
Hauteur du plafond non finie
10’
Stationnement
54 places de stationnement surface
36 places de stationnement couvert
1 1
Assez praticable à pied
40/100
Exceptionnellement facile d’accès en voiture
100/100
Transports en commun relativement accessibles
40/100
Impraticable en vélo
10/100
1 de 5
Vidéos
Visite extérieure 3D Matterport
Visite 3D Matterport
Photos
Vue depuis la rue
Rue
Carte
1 de 1
Présenté par
Castle Investment Co. Inc.
Padre Plaza | 3505 Camino del Rio S
Vous êtes déjà membre? Connectez-vous
Hmm, il semble y avoir eu une erreur lors de l’envoi de votre message. Veuillez réessayer.
Merci! Votre message a été envoyé.


