Votre courriel a été envoyé.
Certaines informations ont été traduites automatiquement.
Faits saillants de la sous-location
- Sublease available through September 2028.
- 20-foot clear height with two dock-high doors and one ramped door.
- Functional layout with conference room, training room, and break room.
- Approximately 7,000 SF of office space within the suite.
- Excellent visibility along Miller Road with easy access to major highways.
Caractéristiques
Tous les espaces disponibles(1)
Afficher les taux de location en
- Espace
- Taille
- Terme
- Taux de location
- Utilisation de l’espace
- Aménagement
- Disponible
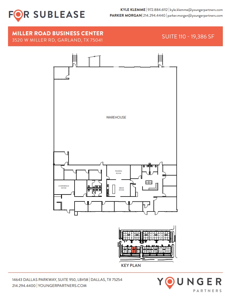
Miller Road Business Center offers a sublease opportunity for a well-configured industrial/flex space in Garland, Texas. The suite spans 19,386 SF and includes approximately 7,000 SF of office build-out, providing a balanced mix of administrative and operational areas. The warehouse features a 20-foot clear height, two dock-high doors, and one ramped door, ensuring efficient loading and distribution capabilities. The property benefits from prominent frontage along Miller Road, delivering strong visibility and convenient access to major thoroughfares, including I-635 and other key Dallas-area routes. This location supports seamless connectivity to the greater Dallas-Fort Worth metroplex, making it an attractive option for businesses seeking a functional and accessible facility. The sublease runs through September 2028, offering long-term stability for occupiers.
- Espace de sous-location disponible auprès du locataire actuel
- Comprend 7 000 pi² d’espace de bureau dédié
- Espace en excellent état
- Le taux de location ne comprend pas les services publics, les services de bâtiment ou les dépenses immobilières.
- 1 accès plain-pied
- 2 quais de chargement
| Espace | Taille | Terme | Taux de location | Utilisation de l’espace | Aménagement | Disponible |
| 1er étage - 110 | 19 386 pi² | Sept. 2028 | 13,77 $ CAD/pi²/an 1,15 $ CAD/pi²/mois 266 854 $ CAD/an 22 238 $ CAD/mois | Industriel | - | 30 jours |
1er étage - 110
| Taille |
| 19 386 pi² |
| Terme |
| Sept. 2028 |
| Taux de location |
| 13,77 $ CAD/pi²/an 1,15 $ CAD/pi²/mois 266 854 $ CAD/an 22 238 $ CAD/mois |
| Utilisation de l’espace |
| Industriel |
| Aménagement |
| - |
| Disponible |
| 30 jours |
1er étage - 110
| Taille | 19 386 pi² |
| Terme | Sept. 2028 |
| Taux de location | 13,77 $ CAD/pi²/an |
| Utilisation de l’espace | Industriel |
| Aménagement | - |
| Disponible | 30 jours |
Miller Road Business Center offers a sublease opportunity for a well-configured industrial/flex space in Garland, Texas. The suite spans 19,386 SF and includes approximately 7,000 SF of office build-out, providing a balanced mix of administrative and operational areas. The warehouse features a 20-foot clear height, two dock-high doors, and one ramped door, ensuring efficient loading and distribution capabilities. The property benefits from prominent frontage along Miller Road, delivering strong visibility and convenient access to major thoroughfares, including I-635 and other key Dallas-area routes. This location supports seamless connectivity to the greater Dallas-Fort Worth metroplex, making it an attractive option for businesses seeking a functional and accessible facility. The sublease runs through September 2028, offering long-term stability for occupiers.
- Espace de sous-location disponible auprès du locataire actuel
- Le taux de location ne comprend pas les services publics, les services de bâtiment ou les dépenses immobilières.
- Comprend 7 000 pi² d’espace de bureau dédié
- 1 accès plain-pied
- Espace en excellent état
- 2 quais de chargement
Aperçu de la propriété
The property is located at 3520 W Miller Road in Garland, Texas, within proximity to major Dallas-area transportation routes, including I-635. The site offers a combination of office and warehouse space with dock-high and ramped loading options. The surrounding area includes a mix of industrial and commercial uses, with convenient access to regional thoroughfares.
Faits sur l’installation distribution
Sélectionner des locataires
- Étage
- Nom du locataire
- Secteur
- 1ᵉʳ
- Fissco Supply HVAC
- Grossiste
- 1ᵉʳ
- Reece Plumbing
- Grossiste
- 1ᵉʳ
- Timberlake & Dickson, Inc.
- Construction
Présenté par
Building 1 | 3520 W Miller Rd
Hmm, il semble y avoir eu une erreur lors de l’envoi de votre message. Veuillez réessayer.
Merci! Votre message a été envoyé.






