Votre courriel a été envoyé.
3528 Boulevard of the Allies 1 200 pi² d'espace disponible • Commerce de détail • Pittsburgh, PA 15213


Certaines informations ont été traduites automatiquement.
FAITS SAILLANTS
- Heavy Foot Traffic
- Plenty of Parking Spaces
- Move-in Ready
- Tons of Natural Light
- Main Road in College Town
TOUS LES ESPACES DISPONIBLES(1)
Afficher les taux de location en
- ESPACE
- TAILLE
- TERME
- TAUX DE LOCATION
- UTILISATION DE L’ESPACE
- ÉTAT
- DISPONIBLE
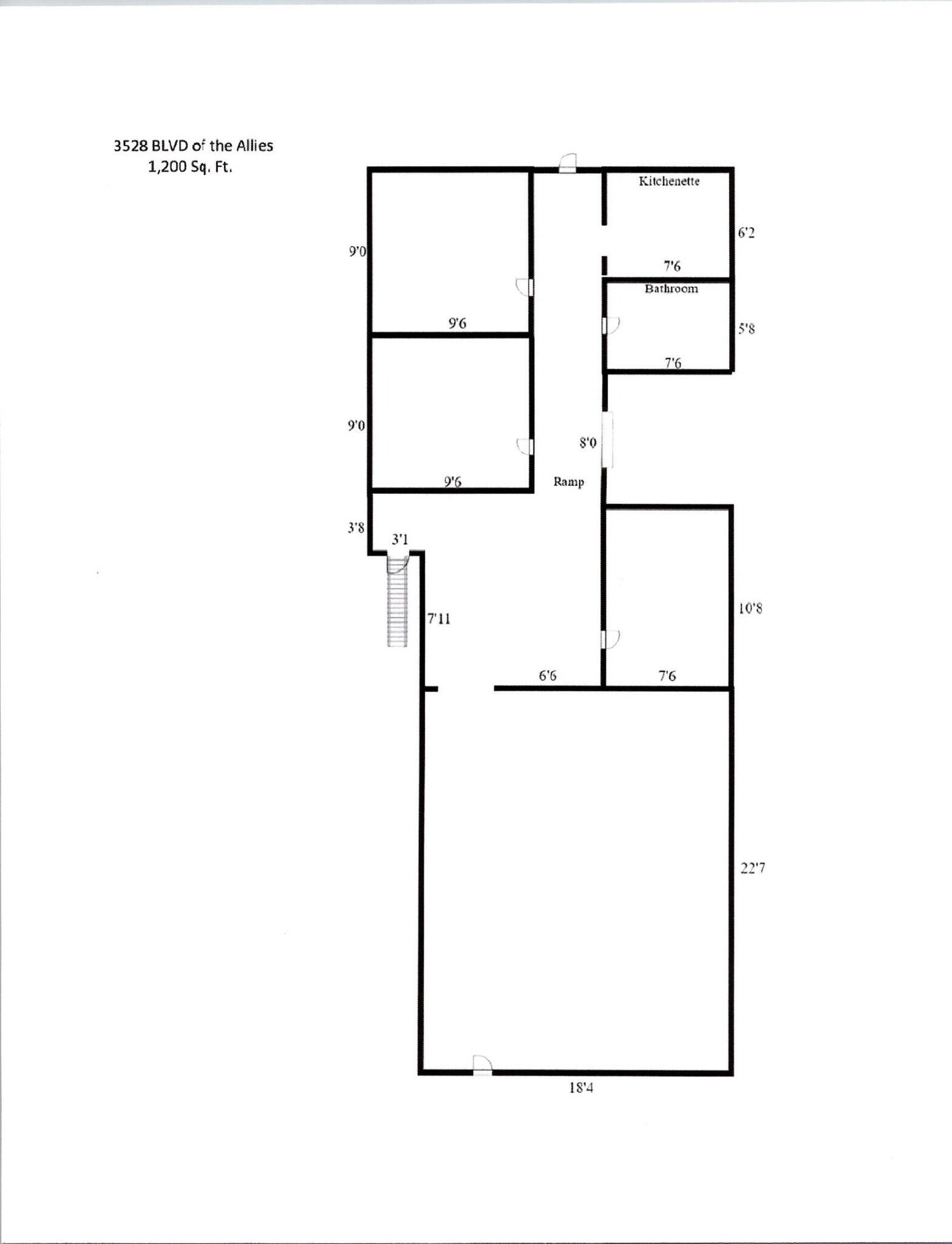
Monthly Rent: $1,800.00 + Utilities Available: Immediately Features: - First Floor Retail / Commercial Space with Parking - High Traffic Volume Area in a Walkable Neighborhood - Open Reception Area with Significant Natural Light - Front Office with Sliding Window to Reception Area - Two Large Back Offices - Plumbing in the First Office (Sink Only) - Small Kitchen at the End of the Hall - Well Lit Bathroom with Oversized Mirror - Basement Storage Location: - Situated on the BLVD of the Allies Near Bates St - Close to the University of Pittsburgh and Magee Women’s Hospital - Quick Access to 376, Minutes from Downtown Call today to Schedule a Tour!
- Le taux de location ne comprend pas les services publics, les services de bâtiment ou les dépenses immobilières.
- Espace embout très recherché
- Air central et chauffage
- Plafond suspendu
- Sous-sol
- Entièrement construit comme Bureau de services professionnels
- Espace en excellent état
- Salle de bains privée
- Éclairage d’urgence
| Espace | Taille | Terme | Taux de location | Utilisation de l’espace | État | Disponible |
| 1er étage | 1 200 pi² | Négociable | 24,92 $ CAD/pi²/an 2,08 $ CAD/pi²/mois 29 905 $ CAD/an 2 492 $ CAD/mois | Commerce de détail | construction complète | Maintenant |
1er étage
| Taille |
| 1 200 pi² |
| Terme |
| Négociable |
| Taux de location |
| 24,92 $ CAD/pi²/an 2,08 $ CAD/pi²/mois 29 905 $ CAD/an 2 492 $ CAD/mois |
| Utilisation de l’espace |
| Commerce de détail |
| État |
| construction complète |
| Disponible |
| Maintenant |
1er étage
| Taille | 1 200 pi² |
| Terme | Négociable |
| Taux de location | 24,92 $ CAD/pi²/an |
| Utilisation de l’espace | Commerce de détail |
| État | construction complète |
| Disponible | Maintenant |
Monthly Rent: $1,800.00 + Utilities Available: Immediately Features: - First Floor Retail / Commercial Space with Parking - High Traffic Volume Area in a Walkable Neighborhood - Open Reception Area with Significant Natural Light - Front Office with Sliding Window to Reception Area - Two Large Back Offices - Plumbing in the First Office (Sink Only) - Small Kitchen at the End of the Hall - Well Lit Bathroom with Oversized Mirror - Basement Storage Location: - Situated on the BLVD of the Allies Near Bates St - Close to the University of Pittsburgh and Magee Women’s Hospital - Quick Access to 376, Minutes from Downtown Call today to Schedule a Tour!
- Le taux de location ne comprend pas les services publics, les services de bâtiment ou les dépenses immobilières.
- Entièrement construit comme Bureau de services professionnels
- Espace embout très recherché
- Espace en excellent état
- Air central et chauffage
- Salle de bains privée
- Plafond suspendu
- Éclairage d’urgence
- Sous-sol
PLAN DE SITE
SÉLECTIONNER DES LOCATAIRES
- ÉTAGE
- NOM DU LOCATAIRE
- SECTEUR
- 2ᵉ
- Priority Healthcare Inc
- Soins de santé et assistance sociale
FAITS SUR LA PROPRIÉTÉ
APERÇU DE LA PROPRIÉTÉ
Former Nail Salon on the Bustling Boulevard of the Allies and Bates St. Fantastic Central Oakland Location Near PITT, CMU, Duquesne & MORE! Turn this Move-In Ready Business into your New Store Front!
- Accès 24 heures
- Affichage
- Accessible aux fauteuils roulants
- Climatisation
PRINCIPAUX DÉTAILLANTS À PROXIMITÉ
Présenté par
3528 Boulevard of the Allies
Hmm, il semble y avoir eu une erreur lors de l’envoi de votre message. Veuillez réessayer.
Merci! Votre message a été envoyé.



