Votre courriel a été envoyé.
3540 N Belt W - Suite A - 2,716 SF Office Building Available Unité de condo • Bureau • 2 716 pi² • À vendre 165 472 $ CAD • Belleville, IL 62226



Certaines informations ont été traduites automatiquement.
RÉSUMÉ DE L'ANNONCE
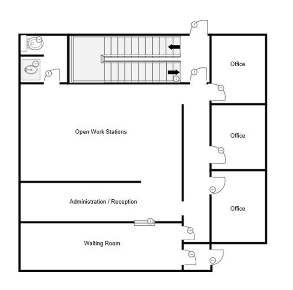
Bureau d'avocats de 2 716 pi² disponible à la vente. Comprend trois bureaux spacieux, une salle d'attente, une zone administrative et des postes de travail ouverts. Des salles de bain sont situées à la fois au niveau principal et au niveau inférieur. Le niveau inférieur dispose de deux bureaux non finis, d'un espace de rangement supplémentaire et d'une salle de repos. Idéalement situé près de N Belt West, dans un emplacement très visible sur une artère principale.
FAITS SUR LA PROPRIÉTÉ
| Taille totale du bâtiment | 8 619 pi² | Superficie de plancher typique | 2 300 pi² |
| Type de propriété | Bureau (Condo) | Année de construction | 1984 |
| Sous-type de propriété | Médical | Taille du lot | 0,05 AC |
| Classe d’immeuble | C | Ratio de stationnement | 14,57/1 000 pi² |
| Planchers | 1 | ||
| Zonage | C-1 - Entreprise commerciale | ||
| Taille totale du bâtiment | 8 619 pi² |
| Type de propriété | Bureau (Condo) |
| Sous-type de propriété | Médical |
| Classe d’immeuble | C |
| Planchers | 1 |
| Superficie de plancher typique | 2 300 pi² |
| Année de construction | 1984 |
| Taille du lot | 0,05 AC |
| Ratio de stationnement | 14,57/1 000 pi² |
| Zonage | C-1 - Entreprise commerciale |
COMMODITÉS
- Restaurant
1 UNITÉ DISPONIBLE
Unité A
| Taille de l’unité | 2 716 pi² | Utilisation du condo | Bureau |
| Prix | 165 472 $ CAD | Type de vente | Investissement ou propriétaire utilisateur |
| Prix par pi² | 60,92 $ CAD | Nbre d’espaces de stationnement | 10 |
| Taille de l’unité | 2 716 pi² |
| Prix | 165 472 $ CAD |
| Prix par pi² | 60,92 $ CAD |
| Utilisation du condo | Bureau |
| Type de vente | Investissement ou propriétaire utilisateur |
| Nbre d’espaces de stationnement | 10 |
DESCRIPTION
2,716 SF former law office available for sale. Three spacious offices with a waiting room, administration area, and open work stations. Restrooms are located on both main level and lower level. Lower level has two unfinished offices, with additional storage and a breakroom.
NOTES SUR LA VENTE
Conveniently located off N Belt West in a high visibility location on main thoroughfare.
Présenté par
3540 N Belt W - Suite A - 2,716 SF Office Building Available
Hmm, il semble y avoir eu une erreur lors de l’envoi de votre message. Veuillez réessayer.
Merci! Votre message a été envoyé.
