Se Connecter/S’inscrire
Votre courriel a été envoyé.
3555 Gantz Rd
Grove City, OH 43123
Industriel Propriété À louer
·
44 385 pi²


Certaines informations ont été traduites automatiquement.
Faits saillants
- Built in 2018 with 15-year 100% tax abatement
- ESFR Sprinkler System
Caractéristiques
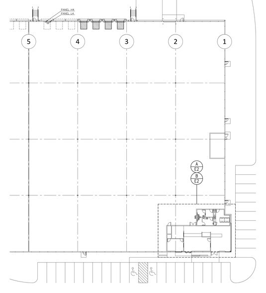
Hauteur libre
30’
Espacement des colonnes
48’ x 50’
Baies d’entrée
2
Places de stationnement standard
150
Aperçu de la propriété
Built in 2018 with 15-year 100% tax abatement Available: 44,385 SF Estimated OpEx for 2025: $0.85 psf Clear Height: 30' White TPO Roof- Southpark Roof Warranty Expires January 20, 2033 ESFR Sprinkler System
Faits sur l’installation Entrepôt
Taille du bâtiment
223 750 pi²
Taille du lot
10,62 AC
Année de construction
2018
Construction
Béton renforcé
Eau
Eau de ville
Égout
Égout de la ville
Chauffage
Gaz
Gaz
Naturel
Alimentation électrique
Ampères: 200 Volts: 277-480 Phase: 3
Zonage
Industrial
1 de 8
Vidéos
Visite extérieure 3D Matterport
Visite 3D Matterport
Photos
Vue depuis la rue
Rue
Carte
