Votre courriel a été envoyé.
Charles Center South 36 S Charles St 581–68 101 pi² d'espace disponible • 4 étoiles • Baltimore, MD 21201



Certaines informations ont été traduites automatiquement.
Faits saillants
- Mises à niveau récentes avec un nouveau hall d'entrée et un nouveau centre de conférences.
- Accès gratuit au centre de remise en forme de l'édifice.
- Droits de signalisation pour la première fois pour les locataires à étages multiples.
Tous les espaces disponibles(14)
Afficher les taux de location en
- Espace
- Taille
- Terme
- Taux de location
- Utilisation de l’espace
- Aménagement
- Disponible
36 S. Charles is one of downtown Baltimore’s iconic office buildings situated in the heart of the city’s business district. Totaling nearly 310,000 sf, the building offers unrivaled tenant amenities. Our conference center offers a large board room, multiple meeting rooms, and a modern high-end tenant lounge to provide a more flexible work environment for our tenants.
- Entièrement construit comme Bureau standard
- 1 bureau privé
- 1 poste de travail
- Salle de bains privée
- Disposition du plan d’étage ouverte en général
- 1 salle de conférence
- Air central et chauffage
36 S. Charles is one of downtown Baltimore’s iconic office buildings situated in the heart of the city’s business district. Totaling nearly 310,000 sf, the building offers unrivaled tenant amenities. Our conference center offers a large board room, multiple meeting rooms, and a modern high-end tenant lounge to provide a more flexible work environment for our tenants.
- Disposition du plan d’étage ouverte
36 S. Charles is one of downtown Baltimore’s iconic office buildings situated in the heart of the city’s business district. Totaling nearly 310,000 sf, the building offers unrivaled tenant amenities. Our conference center offers a large board room, multiple meeting rooms, and a modern high-end tenant lounge to provide a more flexible work environment for our tenants.
- Entièrement construit comme Bureau standard
- 1 salle de conférence
- Air central et chauffage
- 1 bureau privé
- 1 poste de travail
- Salle de bains privée
36 S. Charles is one of downtown Baltimore’s iconic office buildings situated in the heart of the city’s business district. Totaling nearly 310,000 sf, the building offers unrivaled tenant amenities. Our conference center offers a large board room, multiple meeting rooms, and a modern high-end tenant lounge to provide a more flexible work environment for our tenants.
- Disposition du plan d’étage ouverte
36 S. Charles is one of downtown Baltimore’s iconic office buildings situated in the heart of the city’s business district. Totaling nearly 310,000 sf, the building offers unrivaled tenant amenities. Our conference center offers a large board room, multiple meeting rooms, and a modern high-end tenant lounge to provide a more flexible work environment for our tenants.
- Entièrement construit comme Bureau standard
- 1 bureau privé
- 1 poste de travail
- Salle de bains privée
- Disposition du plan d’étage ouverte en général
- 1 salle de conférence
- Air central et chauffage
36 S. Charles is one of downtown Baltimore’s iconic office buildings situated in the heart of the city’s business district. Totaling nearly 310,000 sf, the building offers unrivaled tenant amenities. Our conference center offers a large board room, multiple meeting rooms, and a modern high-end tenant lounge to provide a more flexible work environment for our tenants.
- Disposition du plan d’étage ouverte
36 S. Charles is one of downtown Baltimore’s iconic office buildings situated in the heart of the city’s business district. Totaling nearly 310,000 sf, the building offers unrivaled tenant amenities. Our conference center offers a large board room, multiple meeting rooms, and a modern high-end tenant lounge to provide a more flexible work environment for our tenants.
- Entièrement construit comme Bureau standard
- 1 salle de conférence
- Peut être associé à un ou plusieurs espaces supplémentaires pour obtenir jusqu’à 18 828 pi² d’espace adjacent.
- Salle de bains privée
- 1 bureau privé
- 1 poste de travail
- Air central et chauffage
36 S. Charles is one of downtown Baltimore’s iconic office buildings situated in the heart of the city’s business district. Totaling nearly 310,000 sf, the building offers unrivaled tenant amenities. Our conference center offers a large board room, multiple meeting rooms, and a modern high-end tenant lounge to provide a more flexible work environment for our tenants.
- Entièrement construit comme Bureau standard
- 2 salles de conférence
- 7 bureaux privés
- Peut être associé à un ou plusieurs espaces supplémentaires pour obtenir jusqu’à 18 828 pi² d’espace adjacent.
36 S. Charles is one of downtown Baltimore’s iconic office buildings situated in the heart of the city’s business district. Totaling nearly 310,000 sf, the building offers unrivaled tenant amenities. Our conference center offers a large board room, multiple meeting rooms, and a modern high-end tenant lounge to provide a more flexible work environment for our tenants.
- Entièrement construit comme Bureau standard
- 1 salle de conférence
- Peut être associé à un ou plusieurs espaces supplémentaires pour obtenir jusqu’à 18 828 pi² d’espace adjacent.
- Salle de bains privée
- 1 bureau privé
- 1 poste de travail
- Air central et chauffage
36 S. Charles is one of downtown Baltimore’s iconic office buildings situated in the heart of the city’s business district. Totaling nearly 310,000 sf, the building offers unrivaled tenant amenities. Our conference center offers a large board room, multiple meeting rooms, and a modern high-end tenant lounge to provide a more flexible work environment for our tenants.
- Entièrement construit comme Bureau standard
- 1 bureau privé
- 1 poste de travail
- Salle de bains privée
- Disposition du plan d’étage ouverte
- 1 salle de conférence
- Air central et chauffage
36 S. Charles is one of downtown Baltimore’s iconic office buildings situated in the heart of the city’s business district. Totaling nearly 310,000 sf, the building offers unrivaled tenant amenities. Our conference center offers a large board room, multiple meeting rooms, and a modern high-end tenant lounge to provide a more flexible work environment for our tenants.
- Disposition du plan d’étage ouverte
36 S. Charles is one of downtown Baltimore’s iconic office buildings situated in the heart of the city’s business district. Totaling nearly 310,000 sf, the building offers unrivaled tenant amenities. Our conference center offers a large board room, multiple meeting rooms, and a modern high-end tenant lounge to provide a more flexible work environment for our tenants.
- Disposition du plan d’étage ouverte
36 S. Charles is one of downtown Baltimore’s iconic office buildings situated in the heart of the city’s business district. Totaling nearly 310,000 sf, the building offers unrivaled tenant amenities. Our conference center offers a large board room, multiple meeting rooms, and a modern high-end tenant lounge to provide a more flexible work environment for our tenants.
- Partiellement construit comme Bureau standard
- 1 salle de conférence
- Système de chauffage central
- 1 bureau privé
- 1 poste de travail
- Salle de bains privée
36 S. Charles is one of downtown Baltimore’s iconic office buildings situated in the heart of the city’s business district. Totaling nearly 310,000 sf, the building offers unrivaled tenant amenities. Our conference center offers a large board room, multiple meeting rooms, and a modern high-end tenant lounge to provide a more flexible work environment for our tenants.
- Entièrement construit comme Bureau standard
- 1 salle de conférence
- 6 bureaux privés
| Espace | Taille | Terme | Taux de location | Utilisation de l’espace | Aménagement | Disponible |
| 1er étage, ste 101 | 1 753 pi² | Négociable | Sur demande Sur demande Sur demande Sur demande | Bureau/Commerce de détail | construction complète | Maintenant |
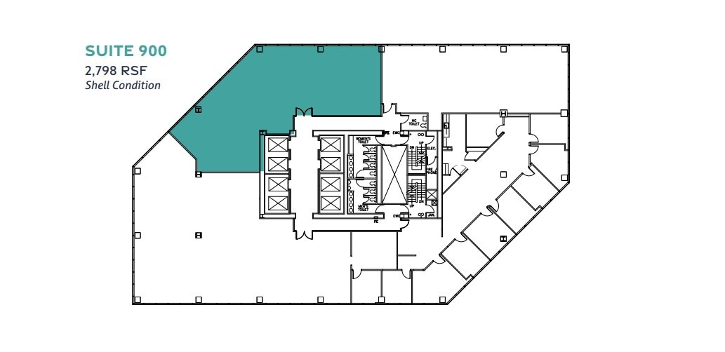
| 9e étage, ste 900 | 2 798 pi² | Négociable | Sur demande Sur demande Sur demande Sur demande | Bureau | espace cloisonné | Maintenant |
| 10e étage, ste 1000 | 13 058 pi² | Négociable | Sur demande Sur demande Sur demande Sur demande | Bureau | construction complète | Maintenant |
| 14e étage, ste 1400 | 6 151 pi² | Négociable | Sur demande Sur demande Sur demande Sur demande | Bureau | espace cloisonné | Maintenant |
| 14e étage, ste 1402 | 3 171 pi² | Négociable | Sur demande Sur demande Sur demande Sur demande | Bureau | construction complète | Maintenant |
| 14e étage, ste 1404A | 1 841 pi² | Négociable | Sur demande Sur demande Sur demande Sur demande | Bureau | espace cloisonné | Maintenant |
| 15e étage, ste 1510 | 3 005 pi² | Négociable | Sur demande Sur demande Sur demande Sur demande | Bureau | construction complète | Maintenant |
| 15e étage, ste 1530 | 2 971 pi² | Négociable | Sur demande Sur demande Sur demande Sur demande | Bureau | construction complète | Maintenant |
| 16e étage, ste 1600 | 12 852 pi² | Négociable | Sur demande Sur demande Sur demande Sur demande | Bureau | construction complète | Maintenant |
| 20e étage, ste 2001 | 1 395 pi² | Négociable | Sur demande Sur demande Sur demande Sur demande | Bureau | construction complète | Maintenant |
| 22e étage, ste 2200 | 6 662 pi² | Négociable | Sur demande Sur demande Sur demande Sur demande | Bureau | espace cloisonné | Maintenant |
| 22e étage, ste 2204 | 3 362 pi² | Négociable | Sur demande Sur demande Sur demande Sur demande | Bureau | espace cloisonné | Maintenant |
| 23e étage, ste 2301 | 581 à 6 801 pi² | Négociable | Sur demande Sur demande Sur demande Sur demande | Bureau | construction partielle | Maintenant |
| 23e étage, ste 2310 | 2 281 pi² | Négociable | Sur demande Sur demande Sur demande Sur demande | Bureau | construction complète | Maintenant |
1er étage, ste 101
| Taille |
| 1 753 pi² |
| Terme |
| Négociable |
| Taux de location |
| Sur demande Sur demande Sur demande Sur demande |
| Utilisation de l’espace |
| Bureau/Commerce de détail |
| Aménagement |
| construction complète |
| Disponible |
| Maintenant |
9e étage, ste 900
| Taille |
| 2 798 pi² |
| Terme |
| Négociable |
| Taux de location |
| Sur demande Sur demande Sur demande Sur demande |
| Utilisation de l’espace |
| Bureau |
| Aménagement |
| espace cloisonné |
| Disponible |
| Maintenant |
10e étage, ste 1000
| Taille |
| 13 058 pi² |
| Terme |
| Négociable |
| Taux de location |
| Sur demande Sur demande Sur demande Sur demande |
| Utilisation de l’espace |
| Bureau |
| Aménagement |
| construction complète |
| Disponible |
| Maintenant |
14e étage, ste 1400
| Taille |
| 6 151 pi² |
| Terme |
| Négociable |
| Taux de location |
| Sur demande Sur demande Sur demande Sur demande |
| Utilisation de l’espace |
| Bureau |
| Aménagement |
| espace cloisonné |
| Disponible |
| Maintenant |
14e étage, ste 1402
| Taille |
| 3 171 pi² |
| Terme |
| Négociable |
| Taux de location |
| Sur demande Sur demande Sur demande Sur demande |
| Utilisation de l’espace |
| Bureau |
| Aménagement |
| construction complète |
| Disponible |
| Maintenant |
14e étage, ste 1404A
| Taille |
| 1 841 pi² |
| Terme |
| Négociable |
| Taux de location |
| Sur demande Sur demande Sur demande Sur demande |
| Utilisation de l’espace |
| Bureau |
| Aménagement |
| espace cloisonné |
| Disponible |
| Maintenant |
15e étage, ste 1510
| Taille |
| 3 005 pi² |
| Terme |
| Négociable |
| Taux de location |
| Sur demande Sur demande Sur demande Sur demande |
| Utilisation de l’espace |
| Bureau |
| Aménagement |
| construction complète |
| Disponible |
| Maintenant |
15e étage, ste 1530
| Taille |
| 2 971 pi² |
| Terme |
| Négociable |
| Taux de location |
| Sur demande Sur demande Sur demande Sur demande |
| Utilisation de l’espace |
| Bureau |
| Aménagement |
| construction complète |
| Disponible |
| Maintenant |
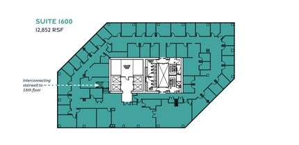
16e étage, ste 1600
| Taille |
| 12 852 pi² |
| Terme |
| Négociable |
| Taux de location |
| Sur demande Sur demande Sur demande Sur demande |
| Utilisation de l’espace |
| Bureau |
| Aménagement |
| construction complète |
| Disponible |
| Maintenant |
20e étage, ste 2001
| Taille |
| 1 395 pi² |
| Terme |
| Négociable |
| Taux de location |
| Sur demande Sur demande Sur demande Sur demande |
| Utilisation de l’espace |
| Bureau |
| Aménagement |
| construction complète |
| Disponible |
| Maintenant |
22e étage, ste 2200
| Taille |
| 6 662 pi² |
| Terme |
| Négociable |
| Taux de location |
| Sur demande Sur demande Sur demande Sur demande |
| Utilisation de l’espace |
| Bureau |
| Aménagement |
| espace cloisonné |
| Disponible |
| Maintenant |
22e étage, ste 2204
| Taille |
| 3 362 pi² |
| Terme |
| Négociable |
| Taux de location |
| Sur demande Sur demande Sur demande Sur demande |
| Utilisation de l’espace |
| Bureau |
| Aménagement |
| espace cloisonné |
| Disponible |
| Maintenant |
23e étage, ste 2301
| Taille |
| 581 à 6 801 pi² |
| Terme |
| Négociable |
| Taux de location |
| Sur demande Sur demande Sur demande Sur demande |
| Utilisation de l’espace |
| Bureau |
| Aménagement |
| construction partielle |
| Disponible |
| Maintenant |
23e étage, ste 2310
| Taille |
| 2 281 pi² |
| Terme |
| Négociable |
| Taux de location |
| Sur demande Sur demande Sur demande Sur demande |
| Utilisation de l’espace |
| Bureau |
| Aménagement |
| construction complète |
| Disponible |
| Maintenant |
1er étage, ste 101
| Taille | 1 753 pi² |
| Terme | Négociable |
| Taux de location | Sur demande |
| Utilisation de l’espace | Bureau/Commerce de détail |
| Aménagement | construction complète |
| Disponible | Maintenant |
36 S. Charles is one of downtown Baltimore’s iconic office buildings situated in the heart of the city’s business district. Totaling nearly 310,000 sf, the building offers unrivaled tenant amenities. Our conference center offers a large board room, multiple meeting rooms, and a modern high-end tenant lounge to provide a more flexible work environment for our tenants.
- Entièrement construit comme Bureau standard
- Disposition du plan d’étage ouverte en général
- 1 bureau privé
- 1 salle de conférence
- 1 poste de travail
- Air central et chauffage
- Salle de bains privée
9e étage, ste 900
| Taille | 2 798 pi² |
| Terme | Négociable |
| Taux de location | Sur demande |
| Utilisation de l’espace | Bureau |
| Aménagement | espace cloisonné |
| Disponible | Maintenant |
36 S. Charles is one of downtown Baltimore’s iconic office buildings situated in the heart of the city’s business district. Totaling nearly 310,000 sf, the building offers unrivaled tenant amenities. Our conference center offers a large board room, multiple meeting rooms, and a modern high-end tenant lounge to provide a more flexible work environment for our tenants.
- Disposition du plan d’étage ouverte
10e étage, ste 1000
| Taille | 13 058 pi² |
| Terme | Négociable |
| Taux de location | Sur demande |
| Utilisation de l’espace | Bureau |
| Aménagement | construction complète |
| Disponible | Maintenant |
36 S. Charles is one of downtown Baltimore’s iconic office buildings situated in the heart of the city’s business district. Totaling nearly 310,000 sf, the building offers unrivaled tenant amenities. Our conference center offers a large board room, multiple meeting rooms, and a modern high-end tenant lounge to provide a more flexible work environment for our tenants.
- Entièrement construit comme Bureau standard
- 1 bureau privé
- 1 salle de conférence
- 1 poste de travail
- Air central et chauffage
- Salle de bains privée
14e étage, ste 1400
| Taille | 6 151 pi² |
| Terme | Négociable |
| Taux de location | Sur demande |
| Utilisation de l’espace | Bureau |
| Aménagement | espace cloisonné |
| Disponible | Maintenant |
36 S. Charles is one of downtown Baltimore’s iconic office buildings situated in the heart of the city’s business district. Totaling nearly 310,000 sf, the building offers unrivaled tenant amenities. Our conference center offers a large board room, multiple meeting rooms, and a modern high-end tenant lounge to provide a more flexible work environment for our tenants.
- Disposition du plan d’étage ouverte
14e étage, ste 1402
| Taille | 3 171 pi² |
| Terme | Négociable |
| Taux de location | Sur demande |
| Utilisation de l’espace | Bureau |
| Aménagement | construction complète |
| Disponible | Maintenant |
36 S. Charles is one of downtown Baltimore’s iconic office buildings situated in the heart of the city’s business district. Totaling nearly 310,000 sf, the building offers unrivaled tenant amenities. Our conference center offers a large board room, multiple meeting rooms, and a modern high-end tenant lounge to provide a more flexible work environment for our tenants.
- Entièrement construit comme Bureau standard
- Disposition du plan d’étage ouverte en général
- 1 bureau privé
- 1 salle de conférence
- 1 poste de travail
- Air central et chauffage
- Salle de bains privée
14e étage, ste 1404A
| Taille | 1 841 pi² |
| Terme | Négociable |
| Taux de location | Sur demande |
| Utilisation de l’espace | Bureau |
| Aménagement | espace cloisonné |
| Disponible | Maintenant |
36 S. Charles is one of downtown Baltimore’s iconic office buildings situated in the heart of the city’s business district. Totaling nearly 310,000 sf, the building offers unrivaled tenant amenities. Our conference center offers a large board room, multiple meeting rooms, and a modern high-end tenant lounge to provide a more flexible work environment for our tenants.
- Disposition du plan d’étage ouverte
15e étage, ste 1510
| Taille | 3 005 pi² |
| Terme | Négociable |
| Taux de location | Sur demande |
| Utilisation de l’espace | Bureau |
| Aménagement | construction complète |
| Disponible | Maintenant |
36 S. Charles is one of downtown Baltimore’s iconic office buildings situated in the heart of the city’s business district. Totaling nearly 310,000 sf, the building offers unrivaled tenant amenities. Our conference center offers a large board room, multiple meeting rooms, and a modern high-end tenant lounge to provide a more flexible work environment for our tenants.
- Entièrement construit comme Bureau standard
- 1 bureau privé
- 1 salle de conférence
- 1 poste de travail
- Peut être associé à un ou plusieurs espaces supplémentaires pour obtenir jusqu’à 18 828 pi² d’espace adjacent.
- Air central et chauffage
- Salle de bains privée
15e étage, ste 1530
| Taille | 2 971 pi² |
| Terme | Négociable |
| Taux de location | Sur demande |
| Utilisation de l’espace | Bureau |
| Aménagement | construction complète |
| Disponible | Maintenant |
36 S. Charles is one of downtown Baltimore’s iconic office buildings situated in the heart of the city’s business district. Totaling nearly 310,000 sf, the building offers unrivaled tenant amenities. Our conference center offers a large board room, multiple meeting rooms, and a modern high-end tenant lounge to provide a more flexible work environment for our tenants.
- Entièrement construit comme Bureau standard
- 7 bureaux privés
- 2 salles de conférence
- Peut être associé à un ou plusieurs espaces supplémentaires pour obtenir jusqu’à 18 828 pi² d’espace adjacent.
16e étage, ste 1600
| Taille | 12 852 pi² |
| Terme | Négociable |
| Taux de location | Sur demande |
| Utilisation de l’espace | Bureau |
| Aménagement | construction complète |
| Disponible | Maintenant |
36 S. Charles is one of downtown Baltimore’s iconic office buildings situated in the heart of the city’s business district. Totaling nearly 310,000 sf, the building offers unrivaled tenant amenities. Our conference center offers a large board room, multiple meeting rooms, and a modern high-end tenant lounge to provide a more flexible work environment for our tenants.
- Entièrement construit comme Bureau standard
- 1 bureau privé
- 1 salle de conférence
- 1 poste de travail
- Peut être associé à un ou plusieurs espaces supplémentaires pour obtenir jusqu’à 18 828 pi² d’espace adjacent.
- Air central et chauffage
- Salle de bains privée
20e étage, ste 2001
| Taille | 1 395 pi² |
| Terme | Négociable |
| Taux de location | Sur demande |
| Utilisation de l’espace | Bureau |
| Aménagement | construction complète |
| Disponible | Maintenant |
36 S. Charles is one of downtown Baltimore’s iconic office buildings situated in the heart of the city’s business district. Totaling nearly 310,000 sf, the building offers unrivaled tenant amenities. Our conference center offers a large board room, multiple meeting rooms, and a modern high-end tenant lounge to provide a more flexible work environment for our tenants.
- Entièrement construit comme Bureau standard
- Disposition du plan d’étage ouverte
- 1 bureau privé
- 1 salle de conférence
- 1 poste de travail
- Air central et chauffage
- Salle de bains privée
22e étage, ste 2200
| Taille | 6 662 pi² |
| Terme | Négociable |
| Taux de location | Sur demande |
| Utilisation de l’espace | Bureau |
| Aménagement | espace cloisonné |
| Disponible | Maintenant |
36 S. Charles is one of downtown Baltimore’s iconic office buildings situated in the heart of the city’s business district. Totaling nearly 310,000 sf, the building offers unrivaled tenant amenities. Our conference center offers a large board room, multiple meeting rooms, and a modern high-end tenant lounge to provide a more flexible work environment for our tenants.
- Disposition du plan d’étage ouverte
22e étage, ste 2204
| Taille | 3 362 pi² |
| Terme | Négociable |
| Taux de location | Sur demande |
| Utilisation de l’espace | Bureau |
| Aménagement | espace cloisonné |
| Disponible | Maintenant |
36 S. Charles is one of downtown Baltimore’s iconic office buildings situated in the heart of the city’s business district. Totaling nearly 310,000 sf, the building offers unrivaled tenant amenities. Our conference center offers a large board room, multiple meeting rooms, and a modern high-end tenant lounge to provide a more flexible work environment for our tenants.
- Disposition du plan d’étage ouverte
23e étage, ste 2301
| Taille | 581 à 6 801 pi² |
| Terme | Négociable |
| Taux de location | Sur demande |
| Utilisation de l’espace | Bureau |
| Aménagement | construction partielle |
| Disponible | Maintenant |
36 S. Charles is one of downtown Baltimore’s iconic office buildings situated in the heart of the city’s business district. Totaling nearly 310,000 sf, the building offers unrivaled tenant amenities. Our conference center offers a large board room, multiple meeting rooms, and a modern high-end tenant lounge to provide a more flexible work environment for our tenants.
- Partiellement construit comme Bureau standard
- 1 bureau privé
- 1 salle de conférence
- 1 poste de travail
- Système de chauffage central
- Salle de bains privée
23e étage, ste 2310
| Taille | 2 281 pi² |
| Terme | Négociable |
| Taux de location | Sur demande |
| Utilisation de l’espace | Bureau |
| Aménagement | construction complète |
| Disponible | Maintenant |
36 S. Charles is one of downtown Baltimore’s iconic office buildings situated in the heart of the city’s business district. Totaling nearly 310,000 sf, the building offers unrivaled tenant amenities. Our conference center offers a large board room, multiple meeting rooms, and a modern high-end tenant lounge to provide a more flexible work environment for our tenants.
- Entièrement construit comme Bureau standard
- 6 bureaux privés
- 1 salle de conférence
Aperçu de la propriété
Scheer Partners est fier de présenter l'occasion de louer des bureaux au 36, rue S. Charles, l'un des immeubles de bureaux emblématiques du centre-ville de Baltimore situé au cœur du centre d'affaires de la ville. Totalisant près de 310 000 pieds carrés, l'immeuble offre toutes les commodités « à cocher » que les locataires recherchent, y compris un centre de conférence gratuit à service complet avec concierge, un centre de conditionnement physique gratuit sur place accessible aux locataires, deux cafés, un espace de stockage pour les locataires sur place et un parking sur place. Veuillez télécharger notre brochure pour plus d'informations. « Modernisation des ascenseurs « Café de charcuterie sur place « Centre de conditionnement physique sur place à service complet « Centre de conférence « Gestion immobilière sur place « Garage sur place et grand stationnement disponible dans les garages adjacents « Préposé (e) dans le hall 24 heures sur 24 « Service de conciergerie « L'immeuble bénéficie d'un excellent accès au transport multimodal « Situé dans les zones HUB et Enterprise
- Banque
- Ligne d'autobus
- Centre de conditionnement physique
- Service d'alimentation
- Gestionnaire d'immeuble sur place
- Climatisation
Faits sur la propriété
Présenté par
Charles Center South | 36 S Charles St
Hmm, il semble y avoir eu une erreur lors de l’envoi de votre message. Veuillez réessayer.
Merci! Votre message a été envoyé.


















