Votre courriel a été envoyé.
Office/Warehouse with Yard — For Lease 3698 E Marshall Ave 7 500 pi² d'espace disponible • Industriel • Longview, TX 75601



Certaines informations ont été traduites automatiquement.
Faits saillants
- Security fence and gate
- New LED lighting and electrical
- 7 overhead doors: (3) 10'x12'; (2) 20'x12'; (2) 10'x14'
- Pylon signage on Hwy 80
- Climate controlled workshop
- Full office restroom w/ shower, and shop restroom w/ shower
Caractéristiques
Tous les espaces disponibles(1)
Afficher les taux de location en
- Espace
- Taille
- Terme
- Taux de location
- Utilisation de l’espace
- Aménagement
- Disponible
This well-equipped property offers a functional blend of office and industrial space, fully secured with a fenced and gated yard for privacy and controlled access. Its flexible layout and prominent signage along a major thoroughfare make it ideal for service companies, distribution, fabrication, or trades requiring office, warehouse, and yard space.
- Le taux de location ne comprend pas les services publics, les services de bâtiment ou les dépenses immobilières.
- 7 accès plain-pied
- Air central et chauffage
- Entreposage sécurisé
- Cour
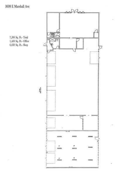
- Comprend 1 450 pi² d’espace de bureau dédié
- Espace en excellent état
- Salle de bains privée
- Douches
| Espace | Taille | Terme | Taux de location | Utilisation de l’espace | Aménagement | Disponible |
| 1er étage - 3698 | 7 500 pi² | Négociable | 11,72 $ CAD/pi²/an 0,98 $ CAD/pi²/mois 87 890 $ CAD/an 7 324 $ CAD/mois | Industriel | - | Maintenant |
1er étage - 3698
| Taille |
| 7 500 pi² |
| Terme |
| Négociable |
| Taux de location |
| 11,72 $ CAD/pi²/an 0,98 $ CAD/pi²/mois 87 890 $ CAD/an 7 324 $ CAD/mois |
| Utilisation de l’espace |
| Industriel |
| Aménagement |
| - |
| Disponible |
| Maintenant |
1er étage - 3698
| Taille | 7 500 pi² |
| Terme | Négociable |
| Taux de location | 11,72 $ CAD/pi²/an |
| Utilisation de l’espace | Industriel |
| Aménagement | - |
| Disponible | Maintenant |
This well-equipped property offers a functional blend of office and industrial space, fully secured with a fenced and gated yard for privacy and controlled access. Its flexible layout and prominent signage along a major thoroughfare make it ideal for service companies, distribution, fabrication, or trades requiring office, warehouse, and yard space.
- Le taux de location ne comprend pas les services publics, les services de bâtiment ou les dépenses immobilières.
- Comprend 1 450 pi² d’espace de bureau dédié
- 7 accès plain-pied
- Espace en excellent état
- Air central et chauffage
- Salle de bains privée
- Entreposage sécurisé
- Douches
- Cour
Aperçu de la propriété
Cette propriété bien équipée offre un mélange fonctionnel d'espace de bureau et industriel, entièrement sécurisée avec une cour clôturée et fermée pour assurer la confidentialité et un accès contrôlé. Sa disposition flexible et sa signalisation bien visible le long d'une artère principale en font un choix idéal pour les entreprises de services, la distribution, la fabrication ou les métiers nécessitant des espaces de bureau, d'entrepôt et de cour. Bureau : 1 450 pi² Entrepôt : 6 050 pi² Cour pavée et stabilisée d'environ 0,5 acre Salle de bain complète au bureau avec douche, et salle de bain dans l'atelier avec douche 7 portes basculantes : (3) 10'x12'; (2) 20'x12'; (2) 10'x14'
Faits sur l’installation entrepôt
Présenté par
Office/Warehouse with Yard — For Lease | 3698 E Marshall Ave
Hmm, il semble y avoir eu une erreur lors de l’envoi de votre message. Veuillez réessayer.
Merci! Votre message a été envoyé.
