Se Connecter/S’inscrire
Votre courriel a été envoyé.
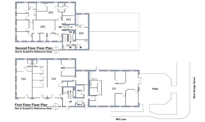
Bridge Street Fire House 37 W Bridge St 7 092 pi² 100% Loué Bureau Immeuble Dublin, OH 43017 5 432 830 $ CAD (766,05 $ CAD/pi²)



Certaines informations ont été traduites automatiquement.
Faits saillants de l'investissement
- Prime Old Dublin Location. Located in the heart of Dublin’s Old Dublin district. Within walking distance to Bridge Park and Riverview Village
- Over 100 public parking spaces immediately adjacent to the building to the south and east, providing convenient parking for tenants, clients & visitor
- Attractive income-producing investment opportunity. Pro Forma with market rents and a NNN structure exceed 6% cap rate
- 100% Occupied. The property is currently fully leased to seven tenants, providing immediate income and strong occupancy stability for an investor.
- Originally constructed in 1944 as the Dublin Firehouse, the building offers distinctive architectural character and authentic historic charm
Résumé de l'annonce
Positioned in the core of Historic Dublin, 37 W. Bridge Street offers a rare, fully leased multi-tenant asset with immediate income and clear upside. The combination of irreplaceable character, walkable location, and strong tenant mix makes this a highly marketable opportunity with both investor and owner-user appeal. ?
Highlights:
• 7,092 SF historic multi-tenant office/retail asset
• 100% occupied with 7 tenants providing in-place cash flow
• Pro forma supports 6%+ cap rate with NNN structure
• Prime walkable location between Old Dublin, Bridge Park, and Riverview Village
• Over 100 adjacent public parking spaces plus 500+ nearby
• Well-maintained with minimal near-term capital needs
• Strong owner-user flexibility with income in place
Highlights:
• 7,092 SF historic multi-tenant office/retail asset
• 100% occupied with 7 tenants providing in-place cash flow
• Pro forma supports 6%+ cap rate with NNN structure
• Prime walkable location between Old Dublin, Bridge Park, and Riverview Village
• Over 100 adjacent public parking spaces plus 500+ nearby
• Well-maintained with minimal near-term capital needs
• Strong owner-user flexibility with income in place
Bilan financier (Réel - 2025) Cliquez ici pour accéder à |
Annuel (CAD) | Annuel par pi² (CAD) |
|---|---|---|
| Revenu de location brut |
$99,999
|
$9.99
|
| Autres revenus |
-
|
-
|
| Perte due à l’inoccupation |
-
|
-
|
| Revenu brut effectif |
$99,999
|
$9.99
|
| Taxes |
$99,999
|
$9.99
|
| Dépenses d’exploitation |
$99,999
|
$9.99
|
| Total des dépenses |
$99,999
|
$9.99
|
| Revenu net d’exploitation |
$99,999
|
$9.99
|
Bilan financier (Réel - 2025) Cliquez ici pour accéder à
| Revenu de location brut (CAD) | |
|---|---|
| Annuel | $99,999 |
| Annuel par pi² | $9.99 |
| Autres revenus (CAD) | |
|---|---|
| Annuel | - |
| Annuel par pi² | - |
| Perte due à l’inoccupation (CAD) | |
|---|---|
| Annuel | - |
| Annuel par pi² | - |
| Revenu brut effectif (CAD) | |
|---|---|
| Annuel | $99,999 |
| Annuel par pi² | $9.99 |
| Taxes (CAD) | |
|---|---|
| Annuel | $99,999 |
| Annuel par pi² | $9.99 |
| Dépenses d’exploitation (CAD) | |
|---|---|
| Annuel | $99,999 |
| Annuel par pi² | $9.99 |
| Total des dépenses (CAD) | |
|---|---|
| Annuel | $99,999 |
| Annuel par pi² | $9.99 |
| Revenu net d’exploitation (CAD) | |
|---|---|
| Annuel | $99,999 |
| Annuel par pi² | $9.99 |
Faits sur la propriété
Type de vente
Investissement ou propriétaire utilisateur
Type de propriété
Taille du bâtiment
7 092 pi²
Classe d’immeuble
B
Année de construction/rénovation
1930/2021
Prix
5 432 830 $ CAD
Prix par pi²
766,05 $ CAD
Pourcentage loué
100%
Location
Multiples
Hauteur du bâtiment
2 étages
Superficie de plancher typique
3 546 pi²
Coefficient d’occupation des sols de l’immeuble
0,65
Taille du lot
0,25 AC
Zonage
HD-HC - The zoning for this property is Historic Core District. See Marketing Package for permitted uses.
Stationnement
3 places (0,42 places par 1 000 pi² loué)
Commodités
- Affichage
Assez practicable à pied
50/100
Exceptionnellement facile d'accès en voiture
100/100
Transports en commun limités
30/100
Assez praticable en vélo
30/100
Impôts fonciers
| Numéro de lot | 273-000088 | Évaluation totale | 321 805 $ CAD |
| Évaluation du terrain | 104 391 $ CAD | Impôts annuels | (1 $) CAD (0,00 $ CAD/pi²) |
| Évaluation des bâtiments | 217 415 $ CAD | Année d’imposition | 2025 |
Impôts fonciers
Numéro de lot
273-000088
Évaluation du terrain
104 391 $ CAD
Évaluation des bâtiments
217 415 $ CAD
Évaluation totale
321 805 $ CAD
Impôts annuels
(1 $) CAD (0,00 $ CAD/pi²)
Année d’imposition
2025
1 de 36
Vidéos
Visite extérieure 3D Matterport
Visite 3D Matterport
Photos
Vue depuis la rue
Rue
Carte
Présenté par
Bridge Street Fire House | 37 W Bridge St
Vous êtes déjà membre? Connectez-vous
Hmm, il semble y avoir eu une erreur lors de l’envoi de votre message. Veuillez réessayer.
Merci! Votre message a été envoyé.

