Votre courriel a été envoyé.
Certaines informations ont été traduites automatiquement.
Faits saillants du parc
- Une porte de chargement au niveau du sol de 12 pi x 12 pi
- IMMENSE promenade entre les bâtiments
- Alimentation triphasée de 100 A — 120/208 volts
- EXCELLENT ACCÈS PAR CAMION
Faits sur le parc
| Superficie totale disponible | 4 710 pi² | Type de parc | Parc industriel |
| Superficie totale disponible | 4 710 pi² |
| Type de parc | Parc industriel |
Tous les espaces disponibles(2)
Afficher les taux de location en
- Espace
- Taille
- Terme
- Taux de location
- Utilisation de l’espace
- Aménagement
- Disponible
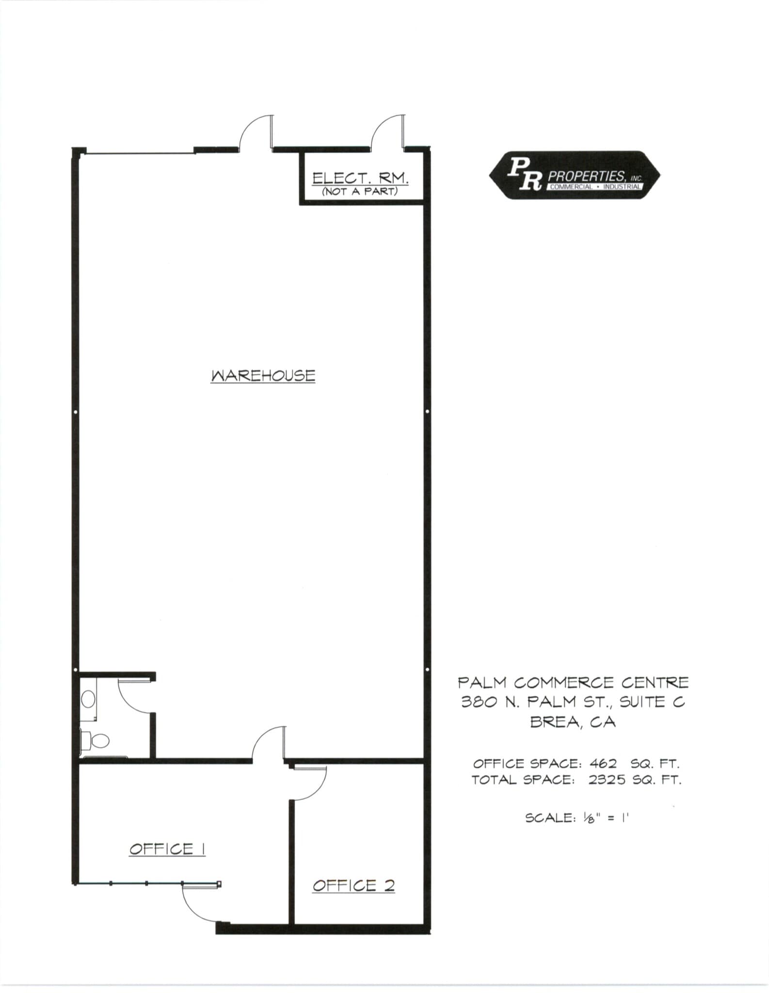
462 SF Office Includes Large Reception, 1 Private Office 1 Ground Level Door 100 Amps, 120/208 Volts, 3 Phase, 4 Wires No CAM Fee - Tenant Pays Water (Separately Metered) Extra Wide Drives Between Bldgs For Great Truck Access
- Le taux inscrit peut ne pas comprendre certains services publics, les services de bâtiment et les dépenses immobilières.
- 1 accès plain-pied
- Comprend 462 pi² d’espace de bureau dédié
| Espace | Taille | Terme | Taux de location | Utilisation de l’espace | Aménagement | Disponible |
| 1er étage - C | 2 325 pi² | 2-5 ans | 26,45 $ CAD/pi²/an 2,20 $ CAD/pi²/mois 61 492 $ CAD/an 5 124 $ CAD/mois | Industriel | - | Maintenant |
380 N Palm St - 1er étage - C
- Espace
- Taille
- Terme
- Taux de location
- Utilisation de l’espace
- Aménagement
- Disponible
651 sq. ft. office area includes a large reception and one office. Fire sprinklers. One ground level loading door. 100 amps of 120/208 volt 3-phase power. Extra wide drives allowing for excellent truck access.
- Le taux inscrit peut ne pas comprendre certains services publics, les services de bâtiment et les dépenses immobilières.
- Comprend 651 pi² d’espace de bureau dédié
| Espace | Taille | Terme | Taux de location | Utilisation de l’espace | Aménagement | Disponible |
| 1er étage - D | 2 385 pi² | 2-5 ans | 26,45 $ CAD/pi²/an 2,20 $ CAD/pi²/mois 63 078 $ CAD/an 5 257 $ CAD/mois | Industriel | construction complète | Maintenant |
330 N Palm St - 1er étage - D
380 N Palm St - 1er étage - C
| Taille | 2 325 pi² |
| Terme | 2-5 ans |
| Taux de location | 26,45 $ CAD/pi²/an |
| Utilisation de l’espace | Industriel |
| Aménagement | - |
| Disponible | Maintenant |
462 SF Office Includes Large Reception, 1 Private Office 1 Ground Level Door 100 Amps, 120/208 Volts, 3 Phase, 4 Wires No CAM Fee - Tenant Pays Water (Separately Metered) Extra Wide Drives Between Bldgs For Great Truck Access
- Le taux inscrit peut ne pas comprendre certains services publics, les services de bâtiment et les dépenses immobilières.
- Comprend 462 pi² d’espace de bureau dédié
- 1 accès plain-pied
330 N Palm St - 1er étage - D
| Taille | 2 385 pi² |
| Terme | 2-5 ans |
| Taux de location | 26,45 $ CAD/pi²/an |
| Utilisation de l’espace | Industriel |
| Aménagement | construction complète |
| Disponible | Maintenant |
651 sq. ft. office area includes a large reception and one office. Fire sprinklers. One ground level loading door. 100 amps of 120/208 volt 3-phase power. Extra wide drives allowing for excellent truck access.
- Le taux inscrit peut ne pas comprendre certains services publics, les services de bâtiment et les dépenses immobilières.
- Comprend 651 pi² d’espace de bureau dédié
Plan de site
Sélectionner des locataires à cette propriété
- Étage
- Nom du locataire
- Secteur
- 1ᵉʳ
- Component Solutions Inc
- Détaillant
- 1ᵉʳ
- Kure International Inc
- Détaillant
- 1ᵉʳ
- Performance Sweeping
- Construction
- 1ᵉʳ
- Premier Security
- Détaillant
- 1ᵉʳ
- Surflo
- Détaillant
- 1ᵉʳ
- Winten International, Inc.
- Détaillant
Aperçu du parc
Excellent débouché pour un locataire industriel !
Présenté par
Palm Commerce Centre | Brea, CA 92821
Hmm, il semble y avoir eu une erreur lors de l’envoi de votre message. Veuillez réessayer.
Merci! Votre message a été envoyé.









