Votre courriel a été envoyé.
370 US Highway 130 6 000–12 000 pi² d'espace disponible • Bureau/Commerce de détail • East Windsor, NJ 08520


Certaines informations ont été traduites automatiquement.
Faits saillants
- Located 0.6 miles from Route 133 with direct access to the New Jersey Turnpike at Exit 8
- Cross-access and shared easements connecting directly to East Windsor Town Center and East Windsor Village
- Significant retail synergy with over 5.7 million combined annual visits to adjacent centers
- Positioned within a high-income trade area serving East Windsor, Cranbury, Plainsboro, Robbinsville, Monroe, and West Windsor
- Immediate adjacency to national retailers including Panera Bread, Chase Bank, Target, Sprouts, TJ Maxx, CVS, Burlington, Dollar Tree, and others
- More than half of site visitors also patronize East Windsor Town Center on the same day
Disponibilité de l’espace (1)
Afficher les taux de location en
- Espace
- Taille
- Terme
- Taux de location
- Type de loyer
| Espace | Taille | Terme | Taux de location | Type de loyer | ||
| 1er étage | 6 000 à 12 000 pi² | Négociable | Sur demande Sur demande Sur demande Sur demande | À déterminer |
1er étage
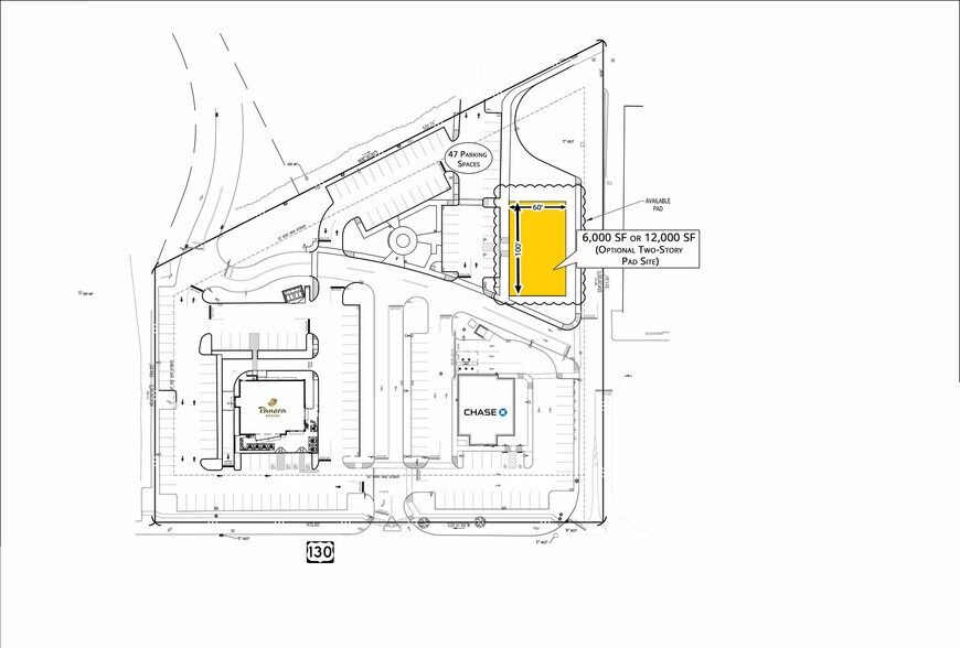
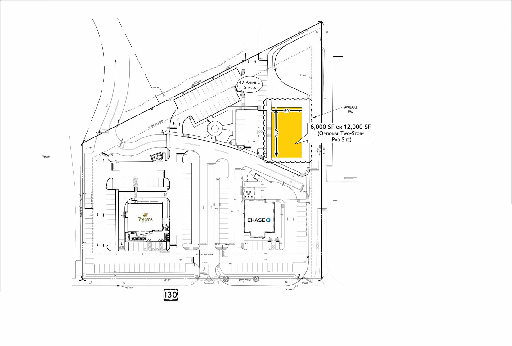
The subject pad site will include 6,000 SF-8,000 SF on the first floor, and there is an opportunity for a two-level building totaling 12,000 SF for a retail or office building.
- Prominent Route 130 frontage
- Strong daily traffic exposure
- Ample on-site parking provided
Types de loyers
Le type et le montant du loyer que le locataire (preneur) est tenu de payer au propriétaire (bailleur) sur la durée du bail sont négociés avant la signature du bail par les deux parties. Le type de loyer varie selon les services fournis. Par exemple, le prix d’un loyer hypernet est habituellement inférieur à celui d’un bail à service complet puisque le locataire est tenu d’assumer des dépenses additionnelles par rapport au loyer de base. Contactez le courtier inscripteur pour tout connaître sur les frais connexes et additionnels associés à chaque type de loyer.
1. Service complet: Un taux de location qui comprend des services standards liés à l’immeuble fournis par le propriétaire dans le cadre d’une location annuelle de base.
2. Loyer supernet: Le locataire paie seulement deux des frais de l’immeuble. Le propriétaire et le locataire déterminent ces frais spécifiques avant la signature du bail.
3. Loyer hypernet: Un bail en vertu duquel le locataire est responsable de tous les frais liés à sa part proportionnelle d’occupation de l’immeuble.
4. Brut modifié: Le loyer brut modifié désigne un type général de taux de location dans lequel le locataire est habituellement responsable de sa part proportionnelle d’un ou de plusieurs frais. C’est le propriétaire qui paie les frais restants. Considérez les structures tarifaires courantes suivantes applicables aux loyers bruts modifiés: 4. Plus les services: Un type de bail brut modifié suivant lequel le locataire est responsable de sa part proportionnelle des coûts des services publics, en plus du loyer. 4. Plus le nettoyage: Un type de bail brut modifié suivant lequel le locataire est responsable de sa part proportionnelle des coûts de nettoyage, en plus du loyer. 4. Plus l'électricité: Un type de bail brut modifié suivant lequel le locataire est responsable de sa part proportionnelle des coûts d’électricité, en plus du loyer. 4. Plus l’électricité et le nettoyage: Un type de bail brut modifié dans lequel le locataire est responsable de sa part proportionnelle des coûts d’électricité et de nettoyage, en plus du loyer. 4. Plus les services publics et le nettoyage: Un type de bail brut modifié dans lequel le locataire est responsable de sa part proportionnelle des coûts des services publics et de nettoyage, en plus du loyer. 4. Bail industriel brut: Un type de bail brut modifié dans lequel le locataire paie un ou plusieurs des frais, en plus du loyer. Le propriétaire et le locataire déterminent ces frais spécifiques avant la signature du bail.
5. L’électricité est à la charge du locataire: Le propriétaire paie pour tous les services et le locataire est responsable de sa propre utilisation de l’éclairage et des prises électriques dans l’espace qu’il occupe.
6. Négociable ou sur demande: Cette option est utilisée lorsque le contact de location ne précise pas le type de loyer ou de service.
7. À déterminer: À déterminer ; utilisé pour les immeubles dont le type de services ou de loyer n’est pas connu, souvent quand l’immeuble n’est pas encore construit.
Plan de site
Faits sur la propriété
| Superficie totale disponible | 12 000 pi² | Sous-type de propriété | Immeuble de commerce |
| Min. divisible | 6 000 pi² | Superficie commerciale brute | 12 000 pi² |
| Type de propriété | Commerce de détail | État de la construction | Proposé |
| Superficie totale disponible | 12 000 pi² |
| Min. divisible | 6 000 pi² |
| Type de propriété | Commerce de détail |
| Sous-type de propriété | Immeuble de commerce |
| Superficie commerciale brute | 12 000 pi² |
| État de la construction | Proposé |
À propos de la propriété
392 Route 130 in East Windsor, New Jersey presents a highly visible retail and office pad opportunity along one of Central New Jersey’s most heavily traveled commercial corridors. The site is strategically located on Route 130 South, less than one mile from the Route 133 bypass, which provides seamless connectivity to the New Jersey Turnpike at Exit 8. This location places the property within a dense, affluent trade area supported by strong household incomes and consistent daytime population activity. The property benefits from exceptional retail synergy, with direct cross-access and shared circulation into both East Windsor Town Center and East Windsor Village. These neighboring centers are anchored by a mix of national and regional tenants and collectively generate millions of annual visits, driving sustained consumer traffic throughout the day. The subject site captures this flow, with data indicating that a majority of visitors also shop adjacent centers during the same trip. The pad allows for a flexible building configuration, including the potential for a two-level retail or office structure. Proposed pylon signage along Route 130 further enhances visibility and brand presence. Highway Commercial zoning supports a wide range of permitted uses including retail, medical, professional offices, restaurants, financial institutions, and hospitality-oriented tenants, making the site well suited for both service-driven and experiential concepts. Surrounding development, strong traffic counts, and established national co-tenancy position 392 Route 130 as a compelling opportunity for tenants seeking long-term visibility and access within a proven suburban retail node
Principaux détaillants à proximité
Présenté par
370 US Highway 130
Hmm, il semble y avoir eu une erreur lors de l’envoi de votre message. Veuillez réessayer.
Merci! Votre message a été envoyé.


