Votre courriel a été envoyé.
3700 W Morse Ave 12 000–47 000 pi² d'espace disponible • Flex • Lincolnwood, IL 60712



Certaines informations ont été traduites automatiquement.
Caractéristiques
Tous les espaces disponibles(2)
Afficher les taux de location en
- Espace
- Taille
- Terme
- Taux de location
- Utilisation de l’espace
- Aménagement
- Disponible
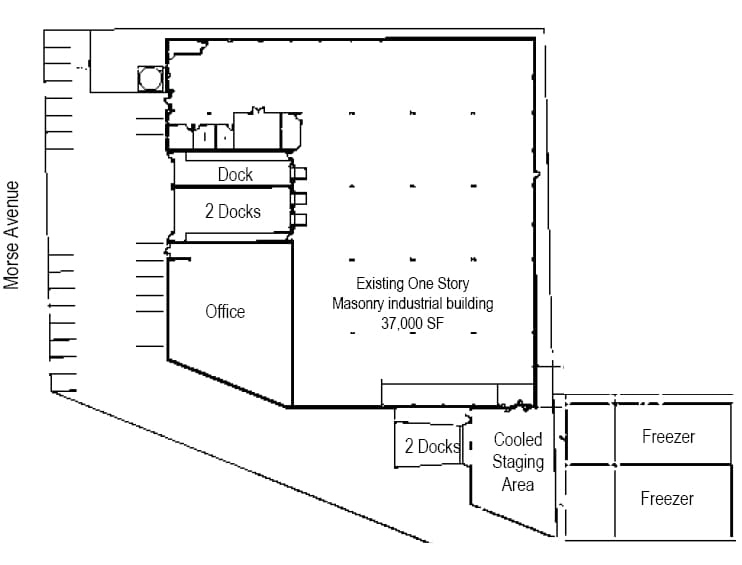
The property features an AIB superior rating, a linear flow and open-bay configuration, and modern. It is in a business friendly Lincolnwood location. The building is a brick/block production facility with an insulated panel freezer addition in 2000 and 2004. There is a 20' clear production area with a 30' clear freezer (fully racked, two deep, three high, with 600 pallet positions). There are six R-507 chillers (three each for the two freezer sections), with glycol protected floors, and a 37-degree refrigerated shipping vestibule. There are three enclosed truck docks with 8x10 overhead doors, pads, seals, and levelers; two external refrigerated shipping truck docks with 8x10 insulated doors, pads, seals, and levelers; and one 12x14 manual grade-level door, all with concrete aprons. There are two Champion air compressors (130 psi), with one refrigerated air dryer. Also epoxy floors (in the mixing and prep area), an explosion proof boiler room, air out-take wall units, an air make-up unit, gas-fired ceiling units, skylights, interior roof drains, and ceiling fans. There is a fenced foundation pad for bulk ingredient storage and internal distribution.
- Comprend 5 000 pi² d’espace de bureau dédié
- 1 accès plain-pied
- Air central et chauffage
- Chambres de congélation
- Éclairage encastré
- Installations WC abandonnées
- Salles de conférence
- Espace en excellent état
- 5 quais de chargement
- Salle de bains privée
- Plafond suspendu
- Toilettes communes
- Hauts plafonds
The building is a production facility with an insulated panel freezer addition in 2000 and 2004. There is a 20' clear production area with a 30' clear freezer (fully racked, two deep, three high, with 800 pallet positions). There are six R-507 chillers (three each for the two freezer sections), with glycol protected floors, and a 37-degree refrigerated shipping vestibule. Two external refrigerated shipping truck docks with 8x10 insulated doors, pads, seals, and levelers with concrete aprons.
- Espace en excellent état
- Plancher surélevé
- Espace en coin
- Chambres de congélation
- Hauts plafonds
- 10,00 SF Freezer Cooler space
| Espace | Taille | Terme | Taux de location | Utilisation de l’espace | Aménagement | Disponible |
| 1er étage - 101 | 35 000 pi² | 5 ans | Sur demande Sur demande Sur demande Sur demande | Flex | construction complète | 60 jours |
| 1er étage - 102 | 12 000 pi² | Négociable | Sur demande Sur demande Sur demande Sur demande | Flex | construction partielle | 30 jours |
1er étage - 101
| Taille |
| 35 000 pi² |
| Terme |
| 5 ans |
| Taux de location |
| Sur demande Sur demande Sur demande Sur demande |
| Utilisation de l’espace |
| Flex |
| Aménagement |
| construction complète |
| Disponible |
| 60 jours |
1er étage - 102
| Taille |
| 12 000 pi² |
| Terme |
| Négociable |
| Taux de location |
| Sur demande Sur demande Sur demande Sur demande |
| Utilisation de l’espace |
| Flex |
| Aménagement |
| construction partielle |
| Disponible |
| 30 jours |
1er étage - 101
| Taille | 35 000 pi² |
| Terme | 5 ans |
| Taux de location | Sur demande |
| Utilisation de l’espace | Flex |
| Aménagement | construction complète |
| Disponible | 60 jours |
The property features an AIB superior rating, a linear flow and open-bay configuration, and modern. It is in a business friendly Lincolnwood location. The building is a brick/block production facility with an insulated panel freezer addition in 2000 and 2004. There is a 20' clear production area with a 30' clear freezer (fully racked, two deep, three high, with 600 pallet positions). There are six R-507 chillers (three each for the two freezer sections), with glycol protected floors, and a 37-degree refrigerated shipping vestibule. There are three enclosed truck docks with 8x10 overhead doors, pads, seals, and levelers; two external refrigerated shipping truck docks with 8x10 insulated doors, pads, seals, and levelers; and one 12x14 manual grade-level door, all with concrete aprons. There are two Champion air compressors (130 psi), with one refrigerated air dryer. Also epoxy floors (in the mixing and prep area), an explosion proof boiler room, air out-take wall units, an air make-up unit, gas-fired ceiling units, skylights, interior roof drains, and ceiling fans. There is a fenced foundation pad for bulk ingredient storage and internal distribution.
- Comprend 5 000 pi² d’espace de bureau dédié
- Espace en excellent état
- 1 accès plain-pied
- 5 quais de chargement
- Air central et chauffage
- Salle de bains privée
- Chambres de congélation
- Plafond suspendu
- Éclairage encastré
- Toilettes communes
- Installations WC abandonnées
- Hauts plafonds
- Salles de conférence
1er étage - 102
| Taille | 12 000 pi² |
| Terme | Négociable |
| Taux de location | Sur demande |
| Utilisation de l’espace | Flex |
| Aménagement | construction partielle |
| Disponible | 30 jours |
The building is a production facility with an insulated panel freezer addition in 2000 and 2004. There is a 20' clear production area with a 30' clear freezer (fully racked, two deep, three high, with 800 pallet positions). There are six R-507 chillers (three each for the two freezer sections), with glycol protected floors, and a 37-degree refrigerated shipping vestibule. Two external refrigerated shipping truck docks with 8x10 insulated doors, pads, seals, and levelers with concrete aprons.
- Espace en excellent état
- Chambres de congélation
- Plancher surélevé
- Hauts plafonds
- Espace en coin
- 10,00 SF Freezer Cooler space
Aperçu de la propriété
La propriété bénéficie d'une cote supérieure AIB, d'une configuration à flux linéaire et à baies ouvertes, ainsi que de bureaux modernes sur deux étages. Elle est située dans un emplacement favorable aux affaires à Lincolnwood. Le propriétaire procédera à une mise à niveau complète des systèmes de protection contre les incendies et des alarmes pour se conformer aux normes actuelles. Le bâtiment est une installation de production en briques/blocs avec une extension de congélateur à panneaux isolés ajoutée en 2000 et 2004. Il comprend une zone de production avec une hauteur libre de 20 pieds et un congélateur avec une hauteur libre de 30 pieds (entièrement équipé de rayonnages, trois niveaux de profondeur, trois niveaux de hauteur, avec 800 emplacements de palettes). Il dispose de six refroidisseurs R-507 (trois pour chacune des deux sections de congélateur), de sols protégés au glycol et d'un vestibule d'expédition réfrigéré à 34 degrés. Les installations incluent trois quais de chargement fermés pour camions avec portes basculantes de 8x10, plates-formes, joints d'étanchéité et niveleurs; deux quais de chargement réfrigérés externes pour camions avec portes isolées de 8x10, plates-formes, joints d'étanchéité et niveleurs; et une porte manuelle de niveau au sol de 12x14, toutes avec des tabliers en béton. Il y a également deux compresseurs d'air Champion (130 psi) avec un sécheur d'air réfrigéré. Les sols en époxy (dans la zone de mélange et de préparation), une salle de chaudière antidéflagrante, des unités murales d'extraction d'air, une unité de compensation d'air, des unités de plafond à gaz, des puits de lumière, des drains de toit intérieurs et des ventilateurs de plafond font partie des caractéristiques. Enfin, la propriété comprend une dalle de fondation clôturée pour le stockage en vrac des ingrédients et leur distribution interne.
Faits sur l’installation fabrication
Présenté par
3700 W Morse Ave
Hmm, il semble y avoir eu une erreur lors de l’envoi de votre message. Veuillez réessayer.
Merci! Votre message a été envoyé.
