Votre courriel a été envoyé.
3745 Long Beach Blvd 405–4 509 pi² d'espace disponible • Bureau • Long Beach, CA 90807



Certaines informations ont été traduites automatiquement.
TOUS LES ESPACES DISPONIBLES(3)
Afficher les taux de location en
- ESPACE
- TAILLE
- TERME
- TAUX DE LOCATION
- UTILISATION DE L’ESPACE
- ÉTAT
- DISPONIBLE
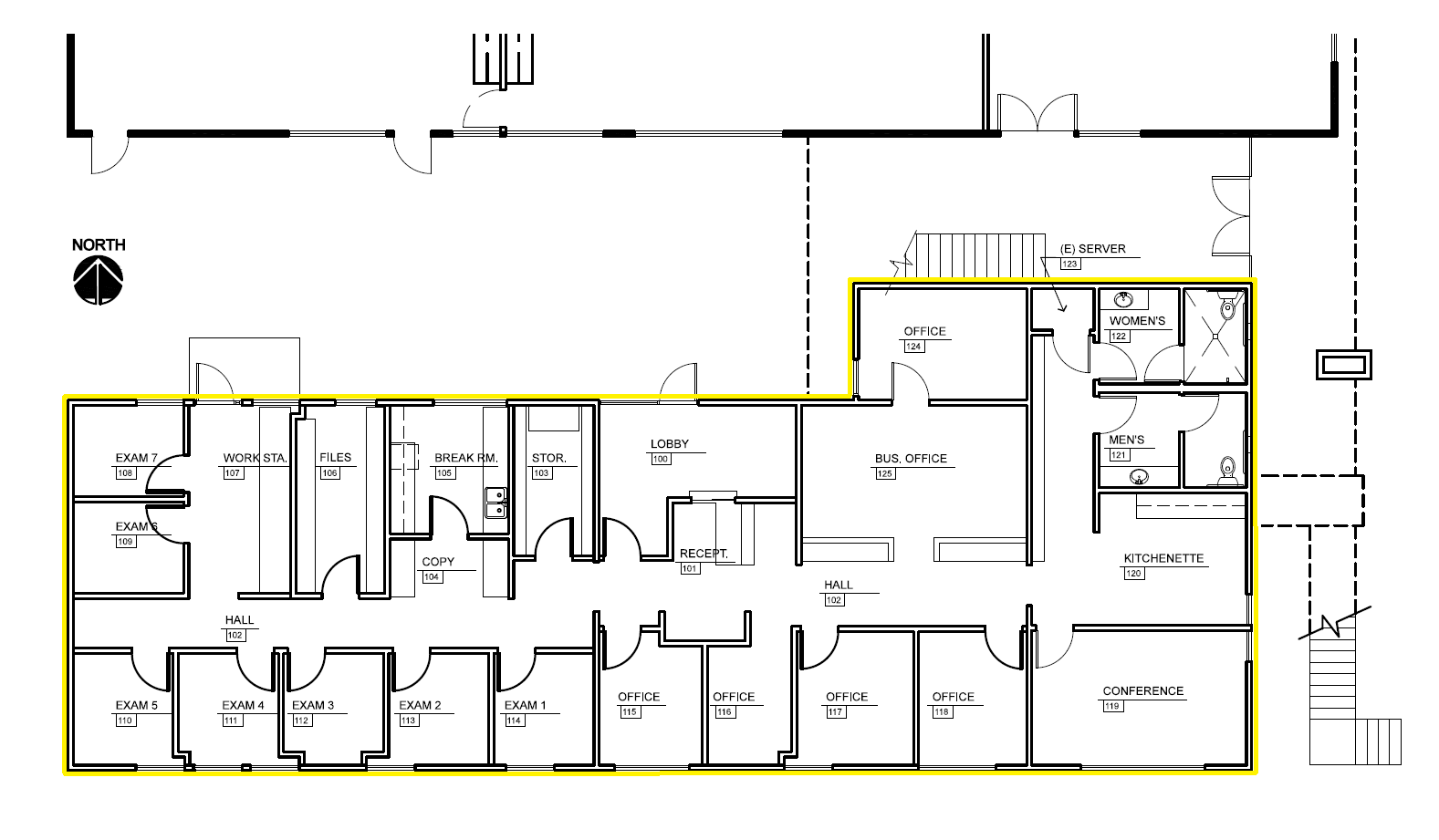
First floor 2nd generation suite directly off Long Beach Blvd. Approximately 11 offices/exam rooms + conference room, kitchenette, and 1 copy room/station. Currently the space is used for children's behavioral therapy. Photos to come.
- Le taux comprend les services publics, les services de bâtiment et les dépenses immobilières.
- 1 salle de conférence
- Aire de réception
- Espace en coin
- Accessible aux fauteuils roulants
- Entièrement construit comme Bureau de services professionnels
- Clé en main
- Salle de bains privée
- CVCA disponible après les heures de travail
SUMMER INCENTIVE - 1 month FREE with 24+ mo deal! 405 SF (standard office) for $1,113.75/mo Full Service Gross. *** Please note: no elevator in the building
- Le taux comprend les services publics, les services de bâtiment et les dépenses immobilières.
- Disposition du plan d’étage ouverte
- Espace en excellent état
- Complètement tapissé
- Plafond exposé
- Entièrement construit comme Bureau standard
- 1 bureau privé
- Climatisation centrale
- Espace en coin
SUMMER INCENTIVE - 1 month FREE with 24+ mo deal! 423 RSF for $1,163.25/mo Full Service Gross with kitchenette! **Note: No elevator on premises.
- Le taux comprend les services publics, les services de bâtiment et les dépenses immobilières.
- Disposition du plan d’étage ouverte en général
- 2 postes de travail
- Espace en excellent état
- Complètement tapissé
- Plafond exposé
- Plan ouvert
- Entièrement construit comme Bureau standard
- 1 bureau privé
- Plafonds finis: 11’
- Climatisation centrale
- Espace en coin
- CVCA disponible après les heures de travail
| Espace | Taille | Terme | Taux de location | Utilisation de l’espace | État | Disponible |
| 1er étage, ste 100 | 3 681 pi² | 1-5 ans | 49,84 $ CAD/pi²/an 4,15 $ CAD/pi²/mois 183 456 $ CAD/an 15 288 $ CAD/mois | Bureau | construction complète | 2026-04-01 |
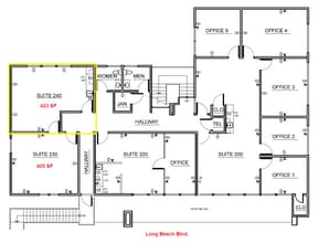
| 2e étage, ste 230 | 405 pi² | Négociable | 45,69 $ CAD/pi²/an 3,81 $ CAD/pi²/mois 18 503 $ CAD/an 1 542 $ CAD/mois | Bureau | construction complète | Maintenant |
| 2e étage, ste 240 | 423 pi² | 3-5 ans | 45,69 $ CAD/pi²/an 3,81 $ CAD/pi²/mois 19 325 $ CAD/an 1 610 $ CAD/mois | Bureau | construction complète | Maintenant |
1er étage, ste 100
| Taille |
| 3 681 pi² |
| Terme |
| 1-5 ans |
| Taux de location |
| 49,84 $ CAD/pi²/an 4,15 $ CAD/pi²/mois 183 456 $ CAD/an 15 288 $ CAD/mois |
| Utilisation de l’espace |
| Bureau |
| État |
| construction complète |
| Disponible |
| 2026-04-01 |
2e étage, ste 230
| Taille |
| 405 pi² |
| Terme |
| Négociable |
| Taux de location |
| 45,69 $ CAD/pi²/an 3,81 $ CAD/pi²/mois 18 503 $ CAD/an 1 542 $ CAD/mois |
| Utilisation de l’espace |
| Bureau |
| État |
| construction complète |
| Disponible |
| Maintenant |
2e étage, ste 240
| Taille |
| 423 pi² |
| Terme |
| 3-5 ans |
| Taux de location |
| 45,69 $ CAD/pi²/an 3,81 $ CAD/pi²/mois 19 325 $ CAD/an 1 610 $ CAD/mois |
| Utilisation de l’espace |
| Bureau |
| État |
| construction complète |
| Disponible |
| Maintenant |
1er étage, ste 100
| Taille | 3 681 pi² |
| Terme | 1-5 ans |
| Taux de location | 49,84 $ CAD/pi²/an |
| Utilisation de l’espace | Bureau |
| État | construction complète |
| Disponible | 2026-04-01 |
First floor 2nd generation suite directly off Long Beach Blvd. Approximately 11 offices/exam rooms + conference room, kitchenette, and 1 copy room/station. Currently the space is used for children's behavioral therapy. Photos to come.
- Le taux comprend les services publics, les services de bâtiment et les dépenses immobilières.
- Entièrement construit comme Bureau de services professionnels
- 1 salle de conférence
- Clé en main
- Aire de réception
- Salle de bains privée
- Espace en coin
- CVCA disponible après les heures de travail
- Accessible aux fauteuils roulants
2e étage, ste 230
| Taille | 405 pi² |
| Terme | Négociable |
| Taux de location | 45,69 $ CAD/pi²/an |
| Utilisation de l’espace | Bureau |
| État | construction complète |
| Disponible | Maintenant |
SUMMER INCENTIVE - 1 month FREE with 24+ mo deal! 405 SF (standard office) for $1,113.75/mo Full Service Gross. *** Please note: no elevator in the building
- Le taux comprend les services publics, les services de bâtiment et les dépenses immobilières.
- Entièrement construit comme Bureau standard
- Disposition du plan d’étage ouverte
- 1 bureau privé
- Espace en excellent état
- Climatisation centrale
- Complètement tapissé
- Espace en coin
- Plafond exposé
2e étage, ste 240
| Taille | 423 pi² |
| Terme | 3-5 ans |
| Taux de location | 45,69 $ CAD/pi²/an |
| Utilisation de l’espace | Bureau |
| État | construction complète |
| Disponible | Maintenant |
SUMMER INCENTIVE - 1 month FREE with 24+ mo deal! 423 RSF for $1,163.25/mo Full Service Gross with kitchenette! **Note: No elevator on premises.
- Le taux comprend les services publics, les services de bâtiment et les dépenses immobilières.
- Entièrement construit comme Bureau standard
- Disposition du plan d’étage ouverte en général
- 1 bureau privé
- 2 postes de travail
- Plafonds finis: 11’
- Espace en excellent état
- Climatisation centrale
- Complètement tapissé
- Espace en coin
- Plafond exposé
- CVCA disponible après les heures de travail
- Plan ouvert
FAITS SUR LA PROPRIÉTÉ
Présenté par
Tiffany Wang
3745 Long Beach Blvd
Hmm, il semble y avoir eu une erreur lors de l’envoi de votre message. Veuillez réessayer.
Merci! Votre message a été envoyé.








