Votre courriel a été envoyé.
Certaines informations ont été traduites automatiquement.
Faits saillants
- Endroit très recherché près de la route 16 et de la route I-95
- Quais de chargement et portes au volant
- Flexibility to customize space
- Potentiel d'une hauteur de dégagement de 50 pi ou plus
- Flexibilité pour personnaliser l'espace
Caractéristiques
Tous les espaces disponibles(1)
Afficher les taux de location en
- Espace
- Taille
- Terme
- Taux de location
- Utilisation de l’espace
- Aménagement
- Disponible
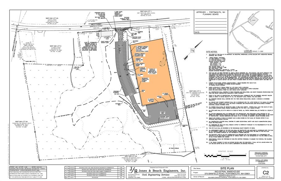
Located at 375 Banfield Road in Portsmouth, New Hampshire, this property offers a state-of-the-art solution for businesses seeking a customizable warehouse and distribution space. With conceptual plans for up to 75,000 square feet, the facility is designed to accommodate both operational efficiency and employee comfort. The layout includes a high-bay warehouse with 28-foot clear heights, ensuring ample vertical storage capacity for a variety of industrial and distribution needs. The property features four loading docks equipped with seals and levelers, as well as a convenient drive-in door for flexible access. Life safety systems are integrated throughout, and base lighting ensures a well-illuminated working environment. Additional specifications include municipal water, natural gas, Modine heat in the warehouse, and basic three-phase power, supporting a wide range of industrial operations. Beyond the warehouse, the site offers abundant on-site parking with more than 75 spaces, making it ideal for both employees and trailer storage. Zoned for industrial use, the location provides excellent connectivity—less than three miles from Route 1 and under four miles from I-95—facilitating smooth regional and interstate distribution. The property also includes plans for 5% air-conditioned office space, creating a balanced environment for administrative and operational functions.
- Le taux de location ne comprend pas les services publics, les services de bâtiment ou les dépenses immobilières.
- 4 quais de chargement
- Entreposage sécurisé
- 75± parking spaces
- Ample parking for trailers and cars
- 1 accès plain-pied
- Air central et chauffage
- 28’+ clear high-bay warehouse
- Modine heat in warehouse
- Less than 3 miles from Route 1
| Espace | Taille | Terme | Taux de location | Utilisation de l’espace | Aménagement | Disponible |
| 1er étage | 40 000 à 75 000 pi² | Négociable | 20,37 $ CAD/pi²/an 1,70 $ CAD/pi²/mois 1 527 750 $ CAD/an 127 313 $ CAD/mois | Industriel | construction complète | 2026-10-01 |
1er étage
| Taille |
| 40 000 à 75 000 pi² |
| Terme |
| Négociable |
| Taux de location |
| 20,37 $ CAD/pi²/an 1,70 $ CAD/pi²/mois 1 527 750 $ CAD/an 127 313 $ CAD/mois |
| Utilisation de l’espace |
| Industriel |
| Aménagement |
| construction complète |
| Disponible |
| 2026-10-01 |
1er étage
| Taille | 40 000 à 75 000 pi² |
| Terme | Négociable |
| Taux de location | 20,37 $ CAD/pi²/an |
| Utilisation de l’espace | Industriel |
| Aménagement | construction complète |
| Disponible | 2026-10-01 |
Located at 375 Banfield Road in Portsmouth, New Hampshire, this property offers a state-of-the-art solution for businesses seeking a customizable warehouse and distribution space. With conceptual plans for up to 75,000 square feet, the facility is designed to accommodate both operational efficiency and employee comfort. The layout includes a high-bay warehouse with 28-foot clear heights, ensuring ample vertical storage capacity for a variety of industrial and distribution needs. The property features four loading docks equipped with seals and levelers, as well as a convenient drive-in door for flexible access. Life safety systems are integrated throughout, and base lighting ensures a well-illuminated working environment. Additional specifications include municipal water, natural gas, Modine heat in the warehouse, and basic three-phase power, supporting a wide range of industrial operations. Beyond the warehouse, the site offers abundant on-site parking with more than 75 spaces, making it ideal for both employees and trailer storage. Zoned for industrial use, the location provides excellent connectivity—less than three miles from Route 1 and under four miles from I-95—facilitating smooth regional and interstate distribution. The property also includes plans for 5% air-conditioned office space, creating a balanced environment for administrative and operational functions.
- Le taux de location ne comprend pas les services publics, les services de bâtiment ou les dépenses immobilières.
- 1 accès plain-pied
- 4 quais de chargement
- Air central et chauffage
- Entreposage sécurisé
- 28’+ clear high-bay warehouse
- 75± parking spaces
- Modine heat in warehouse
- Ample parking for trailers and cars
- Less than 3 miles from Route 1
Aperçu de la propriété
Cet espace de distribution à la fine pointe de la technologie, conçu pour répondre aux besoins et à haute baie comprend des concepts pour un espace d'entreposage à hauteur de 75 000 ± SF. Cette installation peut accueillir 5 % de locaux à bureaux et un vaste entrepôt. Les plans comprennent également des quais de chargement munis de sceaux et de niveleurs, d'une porte d'entrée au volant, d'un éclairage de base de pls dans l'ensemble de l'entrepôt. L'installation offre également la possibilité d'un grand nombre de places de stationnement sur place et un emplacement pratique pour répondre aux besoins des employés et des clients.
Faits sur l’installation entrepôt
Présenté par
375 Banfield Rd
Hmm, il semble y avoir eu une erreur lors de l’envoi de votre message. Veuillez réessayer.
Merci! Votre message a été envoyé.



