Se Connecter/S’inscrire
Votre courriel a été envoyé.
375 Municipal Dr - Richardson Medical Park Unités de condo • Bureau/Médical • 2 179-2 551 pi² • À vendre 177 646 $-207 892 $ CAD par unité • Richardson, TX 75080



Certaines informations ont été traduites automatiquement.
Faits saillants de l'investissement
- Well Maintained Property with Mature Landscaping
- Covered Parking
- Condos Also Available For Lease $20/SF/yr Full Service
- Direct Access to Central Expressway
Salle de données Cliquez ici pour accéder à
2 Unités disponibles
Unité 132
| Taille de l’unité | 2 179 pi² | Utilisation du condo | Bureau/Médical |
| Prix | 177 646 $ CAD | Type de vente | Investissement ou propriétaire utilisateur |
| Prix par pi² | 81,53 $ CAD |
| Taille de l’unité | 2 179 pi² |
| Prix | 177 646 $ CAD |
| Prix par pi² | 81,53 $ CAD |
| Utilisation du condo | Bureau/Médical |
| Type de vente | Investissement ou propriétaire utilisateur |
Floor Plan
1 de 1
Vidéos
Visite extérieure 3D Matterport
Visite 3D Matterport
Photos
Vue depuis la rue
Rue
Carte
Unité 224
| Taille de l’unité | 2 551 pi² | Utilisation du condo | Bureau/Médical |
| Prix | 207 892 $ CAD | Type de vente | Investissement ou propriétaire utilisateur |
| Prix par pi² | 81,49 $ CAD |
| Taille de l’unité | 2 551 pi² |
| Prix | 207 892 $ CAD |
| Prix par pi² | 81,49 $ CAD |
| Utilisation du condo | Bureau/Médical |
| Type de vente | Investissement ou propriétaire utilisateur |
Description
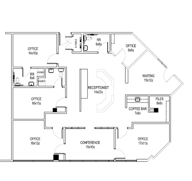
L'unité #224 mesure environ 2 551 pieds carrés et comprend une salle de réception/d'attente, 4 bureaux spacieux et une salle de conférence avec des fenêtres du sol au plafond, 2 grandes salles de travail avec 3-4 postes de travail chacun et un avec grand placard à dossiers, un café-bar avec réfrigérateur sous comptoir et des toilettes. Frais mensuels HOA en 2024 : 3 484$.
Notes sur la vente
Suited for Professional Office and Medical Office Use
Floor Plan
224 corner office
224 work area
1 de 3
Vidéos
Visite extérieure 3D Matterport
Visite 3D Matterport
Photos
Vue depuis la rue
Rue
Carte
Faits sur la propriété
Les caractéristiques et les équipements suivants s'appliquent à l'ensemble du bâtiment. Les détails relatifs aux unités de copropriété individuelles peuvent varier et figurent dans les informations concernant les unités ci-dessus.
| Taille totale du bâtiment | 48 963 pi² | Planchers | 2 |
| Type de propriété | Bureau | Superficie de plancher typique | 1 841 pi² |
| Sous-type de propriété | Médical | Année de construction | 1981 |
| Classe d’immeuble | C | Taille du lot | 4,01 AC |
| Zonage | Medical Office - Usage professionnel de bureau | ||
| Taille totale du bâtiment | 48 963 pi² |
| Type de propriété | Bureau |
| Sous-type de propriété | Médical |
| Classe d’immeuble | C |
| Planchers | 2 |
| Superficie de plancher typique | 1 841 pi² |
| Année de construction | 1981 |
| Taille du lot | 4,01 AC |
| Zonage | Medical Office - Usage professionnel de bureau |
Commodités
- Accès contrôlé
- Centre de conditionnement physique
- Climatisation
Assez praticable à pied
50/100
Exceptionnellement facile d’accès en voiture
100/100
Transports en commun limités
30/100
Plutôt praticable en vélo
50/100
1 de 59
Vidéos
Visite extérieure 3D Matterport
Visite 3D Matterport
Photos
Vue depuis la rue
Rue
Carte
Présenté par
375 Municipal Dr - Richardson Medical Park
Vous êtes déjà membre? Connectez-vous
Hmm, il semble y avoir eu une erreur lors de l’envoi de votre message. Veuillez réessayer.
Merci! Votre message a été envoyé.



